当前时间: 2026-01-05 21:20:03
分类:软件教程
评论(0)
本文最后更新于
2025-07-29,某些文章具有时效性,若有错误或已失效,请在下方
留言或联系
老夜。
这彩平插件,让我下班早了2小时





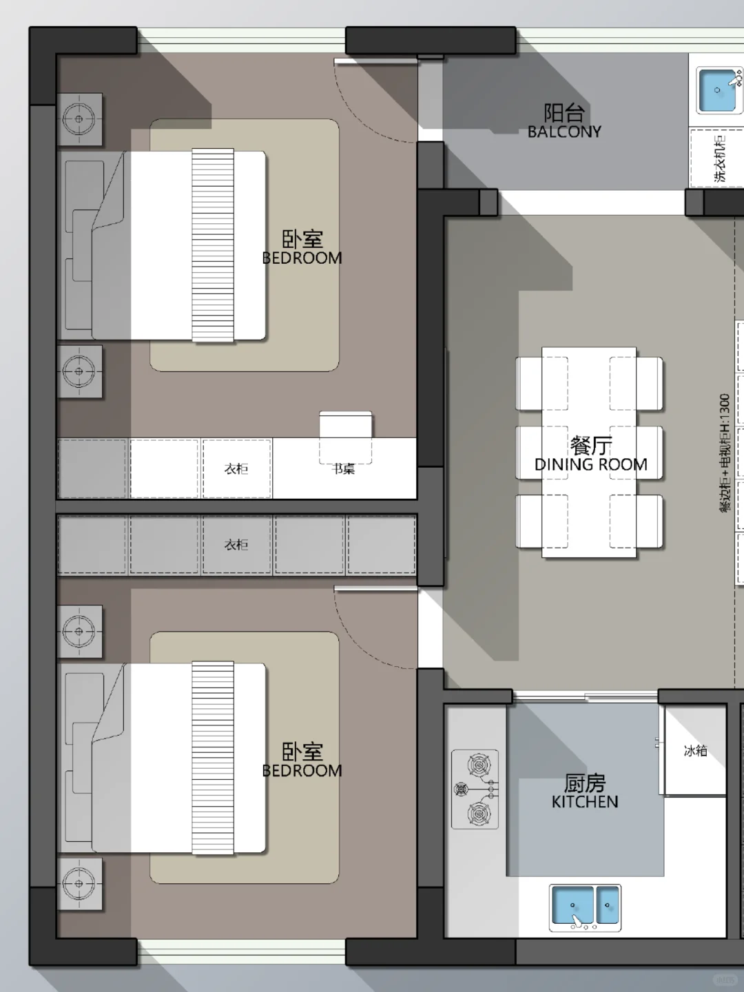
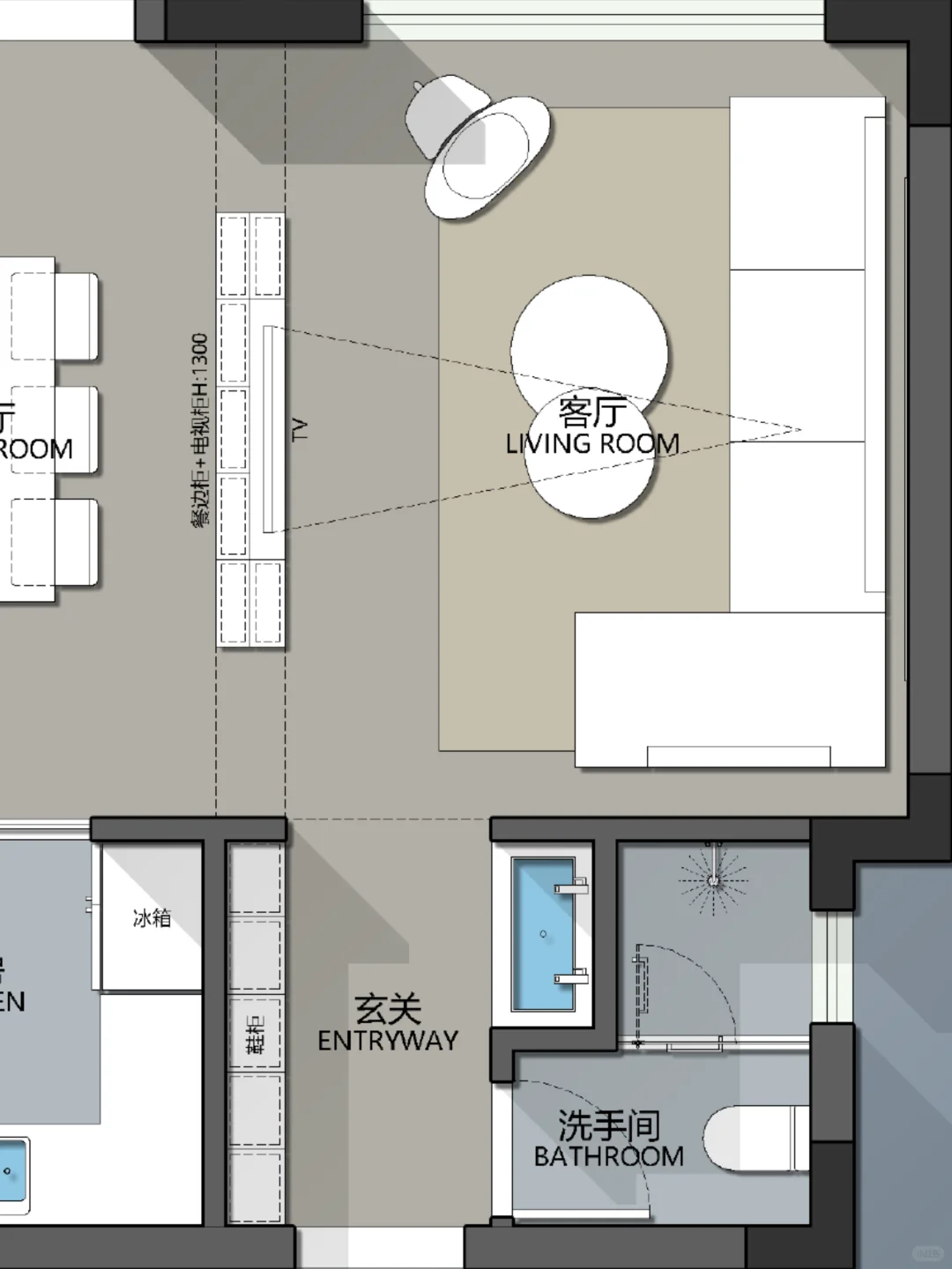
彩平图外挂,简单三步,出高颜值彩平图\n \n1⃣第一步:CAD导出方案图,PS内打开\n \n2⃣第二步:插件内有预设的颜色,把对应颜色填充到对应区域,同一个品类下,不同颜色代表的是不同的材质纹理贴图(家具为默认白色,所以不需要填充)\n \n3⃣第三步:点击运行一键生成,运行后支持修改和更换贴图,然后一键切换其它风格或者是一键复制自定义模板,插件就会自动添加贴图材质,投影,阴影,描边,图案叠加,颜色叠加等等效果\n \n🔥填色后可一键切换或者复制生成72种彩平图风格,后期持续更新更多风格\n \n#室内设计 #彩平图 #彩色平面图 #平面方案图
本站文章均为手工撰写未经允许谢绝转载:
夜雨聆风 »
这彩平插件,让我下班早了2小时