乐于分享
好东西不私藏

cad插件濮汇

本文最后更新于2025-09-29,某些文章具有时效性,若有错误或已失效,请在下方留言或联系老夜

cad插件濮汇

cad插件濮汇

cad插件濮汇

cad插件濮汇

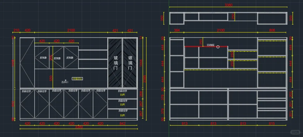
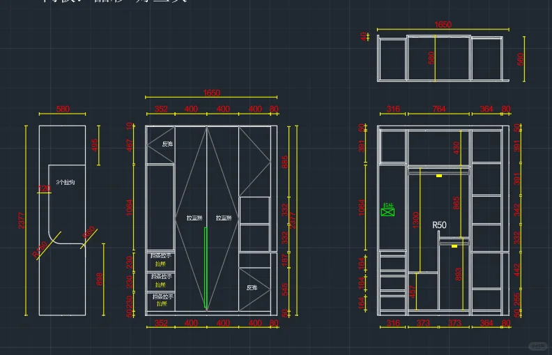
濮汇工具全屋定制家具绘图CAD插件加密狗版本\n购买濮汇插件赠送光速插件终身版朋友们超级实惠咯!\n一款全屋家具绘图的外挂,可以快速绘制柜门、木门、推拉移门、快速画抽屉。\n自动衣杆,图框框图,图框排序,门板统计,五金统计,图库管理等等功能。\n牛逼的功能:一键改图、一键柜子、快速拆单,柜门剖面,自动编号,数不胜数。\n#cad插件
本站文章均为手工撰写未经允许谢绝转载:夜雨聆风 » cad插件濮汇
×
订阅图标按钮