碧桂园防开裂防渗漏专项方案word(可编辑、可下载)
来源:网络
版权归原作者所有,侵删

本工程为四期二标包括13、15、22、23、26#栋及幼儿园,总建筑面积为111143.35平方米,其中地下室建筑面积为13791.66平方米,地下室车库,共1层,负一层层高为3.4m,室外覆土层厚度为1.3m~1.5m,13、15#栋一层为商铺,二层至二十八层(三十二层)为住宅,22、23、26#栋一层至三十三层为住宅。建筑工程等级为一级,建筑安全等级为一级,设计使用年限为50年,防火分类为I类,耐火等级为一级,地下室防水等级为I级;塔楼为一类高层住宅楼,建筑结构形式为短肢剪力墙结构,屋面防水等级为Ⅰ级。
工程主要结构特征:基础为机械旋挖桩+预制管桩基础(地下室局部为天然地基),主体结构为框架剪力墙结构。外墙采用页岩烧结多孔砖MU10,用M7.5混合砂浆砌筑,内墙均采用页岩烧结多孔砖MU10,用M7.5混合砂浆砌筑。
外墙装饰工程:保温采用外墙内保温、玻化中空微珠无机保温砂浆,外墙面为部分涂料、部分石材饰面,局部为面砖墙面。
屋面工程:采用1.5厚高压交叉膜自粘沥青卷材防水做法,防水等级为Ⅰ级,防水合理使用年限25年。
给排水工程:户内给水管、冷凝排水管暗装,其余排水管均为明装。
为了提高住宅工程的施工质量,杜绝住宅工程质量通病的出现,结合株洲市住房和城乡建设局“关于印发市住宅工程质量常见问题专项治理工作方案的通知”及美的地产建筑工程质量通病防治六十六条的要求,本工程专门成立了“防裂组”和“防渗组”专项针对住宅工程施工的“裂”“渗”通病实施防治措施。
通过质量通病“裂”“渗”治理,全面提高本工程结构的耐久性、安全性和可靠性,保证其在设计使用年限内的有效使用。
杜绝强度不达标混凝土,有效控制混凝土强度离散性。杜绝使用不合格原材料,集料、钢筋、水泥抽检合格率必须达到100%。混凝土保护层厚度在钢筋安装过程中抽检合格率必须达90%以上。
明确工作目标、内容和责任,建立有效激励机制,完善质量管理制度。项目部成立工程质量通病治理工作领导小组,名单如下:
领导小组的权限:防治小组发现未按新凯监理批准的质量通病“裂”“渗”防治方案施工的,有责令施工班组限期整改的权力;如没有整改或整改不到位,有权进行经济处罚甚至要求返工、整改或清退施工班组。
领导小组的责任:尽量消除因施工原因造成的质量通病“裂”“渗”现象
领导小组的负责范围:本方案所涉属我方施工范围的施工质量通病“防开裂”“防渗漏”治理措施。
领导小组必须对工程质量通病“裂”“渗”治理工作进行检查、监督和指导,督促各项制度的落实,及时总结经验和掌握工法工艺,形成长效机制。
施工管理要精细。项目部细化施工组织设计,层层落实,重视混凝土施工动态控制,加强试验检测及数据分析,对发生变异的数据应重点分析,查找原因,及时整改。
认真落实质量保证体系,严格执行“自检、互检、交接检”三检制度,上道工序未检验或检验不合格的,坚决不得进入下道工序施工,确保不留质量隐患。
施工技术人员要熟悉设计图纸和施工技术规范,细化施工组织设计,在施工组织设计中采取有针对性治理措施质量通病并层层进行详细的技术交底,提高具体实施人员治理质量通病的意识和技能。
加强对原材料、模板制作安装及混凝土拌和、运输、振捣、养护等环节的精细化管理。
加强水泥、钢筋、集料等原材料进场检验,建立原材料进场台帐和检验台帐,发现不合格的原材料必须立刻清退出场并做好记录。杜绝使用不合格材料。
规范原材料存放、保管和使用,集料全部采用雨棚进行遮盖。
钢筋加工与安装要规范,严格控制钢筋位置和保护层厚度;混凝土振捣要规范,合理控制浇筑厚度,避免过振和漏振;混凝土保湿养护要加强,养护时间必须达到规范要求。尤其要加强钢筋保护层质量控制,变截面部位和主筋布置部位应适当加密;要采取有效措施保证在砼浇捣、振捣过程中不发生较大变位。
模板制作质量符合要求,安装必须稳定牢固,选用合适的脱模剂,制作合理的支设方案,注意模板接缝的处理;模板周转使用前要将表面残渣清理干净,并均匀涂刷脱模剂。对于支架支撑浇捣混凝土期间,设专人按时检查支架、模板有无变形和位移,并认真填写检查记录。
要深入落实层层设计交底和施工技术交底制度,把通病“裂”“渗”治理的责任明确落实到施工管理人员。同时加强针对性岗位业务培训,要了解质量通病“裂”“渗”的危害,掌握施工工艺的关键环节,充分发挥施工管理人员的积极性,进一步提高作业人员的技术素质和管理能力。
项目部成立专门测量小组,规范测量小组操作技能,进行精细化放线,确保测量放线的准确性,从而达到工程管理事前控制的目的。
项目部大力推进实测实量工作,针对各项工序进行过程实测实量,形成标准化管理体系,强化过程管控。在墙柱梁板支模完成后第一时间进行实测实量,及时督促相关班组对实测超标模板进行整改复验合格后方可浇筑混凝土;混凝土浇筑过程中进行实测实量跟踪检查,进行随浇随调,从而达到工程管理事中管理的目的。
浇混凝土结构即拆即测,覆盖率达到100%,整理收集实测实量数据,建立完善的实测实量档案,使实测数据可追溯,对质量弊病进行分析,制度改进措施,促进工程整体质量均衡化,从而达到工程事后改进的目的。
原因分析:砼配合比不符合要求,粉煤灰含量、水胶比过大,造成砼收缩裂缝。
1、控制砼配合比,能有效降低砼收缩裂缝:
(1)如无特殊要求,用于地下室底板的商品砼要加入抗裂纤维0.9公斤/立方。
(2)如无特殊要求,用于浇筑住宅梁板的商品混凝土的水胶比不得超过0.5。
(3)如无特殊要求,用于浇筑住宅梁板的商品混凝土的现场塌落度不得超过180mm。(建筑高度在100米范围内)
(4)如无特殊要求,用于浇筑住宅梁板的商品混凝土中掺入粉煤灰或矿粉的含量应符合:掺粉煤灰(或复合掺合料总量)最大量为水泥用量的25%。
2、楼板面机械二次打磨收浆
(1)楼板面采用机械二次打磨收浆,可增强楼板面混凝土的密实性,并减少混凝土变形和收缩,防止发生沉缩裂缝、干缩裂缝和“松顶”现象和修复楼板面不规则裂缝(即龟裂)。
(2)二次打磨的适宜时间应在混凝土初凝时间的1/2~2/3范围内进行。
1.2楼板混凝土结构开裂防治(二)
原因分析:
1、砼振捣不密室;或当砼尚未达到一定强度时,如果过早在上面行走或堆放 材料,常会因混凝土负担不起所受的荷重而破坏。
2、主要因太阳曝晒,容易使混凝土表面水分蒸发过快引起表面干裂。现场养护不到位,未能及时养护或养护时间不足。
主要防治措施:
1、当混凝土强度达到1.2MPa或以上时,才允许人在上面行走和安装模板及支架。(当达到1.2MPa时,人在楼板面行走不会有人脚印,通常以楼面是否有人脚印来判断楼板面是否可以上人操作的标准)
2、加强现场养护措施:
必须有专人定时淋水养护(宜覆盖地毡或麻包袋),前两天不少于6次/天,以保持砼表面湿润为宜。
原因分析:
1、根据目前普遍5天一层的施工速度,如果施工单位没有足够的模板周转套数,必会把不够龄期楼层垂直支撑拆除用于周转。
2、正在浇筑混凝土的楼板,其下层楼板是承担上层楼板所传来的荷重,由于下层楼板还未达到28天龄期,一旦拆除下层楼板的垂直支撑,就会使其楼板开裂
在浇筑楼板砼时应保持不小于两层楼板的完整垂直支撑,楼板模板应不少于3套。
1.由于有线管的位置,板有效厚度变薄,同时在浇筑时产生的震动,易产生线管来回拖动形成空隙,造成线管位置易产生裂缝。
2.由于线管下方的混凝土自然下沉,上方混凝土由于线管阻挡没能有效填补形成空隙,造成线管位置易产生裂缝。
主要防治措施:
1、当设计在板配筋无考虑在线管位置加强时,应在 ≤120MM的板厚且为单层钢筋时,在线管下方加设4厘@200*200钢筋网或加设6厘钢筋(长度沿线管通长布置,宽度为线管两侧各300MM)用于加强防开裂措施。
泵管穿越楼板时,为了防止泵管晃动工人往往在泵管与楼板接触面之间的空隙用木枋挤实,在泵管输送混凝土时所产生的震动会直接通过木枋传到楼板,给楼板带来开裂隐患。(特别目前5天一层的施工速度)
泵管穿越楼板时(龄期不足28天的楼板),在泵管身包扎厚度不少于50mm的软性材料,用于减少泵管在输送混凝土过程中给楼板带来的震动,从而减少楼板开裂的隐患。(可用安全网、轮胎、麻袋等)
1、未对板面标高进行事前弹线控制措施,未对楼板面标高进行实测控制。
1、在浇筑面砼时,可采用钢筋插的方法抽检方法抽检,随时检查刚浇筑的砼面的厚度,并进行书面的签名,确保每块板的五个点都跟踪到位。
2、设置控制楼板厚度的预制块:无防水要求的部位,砼浇筑前,在每个板块内放置“F”型或“H”型砼预制块,砼强度同楼板砼强度,尺寸同楼板厚度,每块楼板不少于5个,板块中央至少有一块。浇筑砼时结合楼板模板表面标高及砼表面标高,测算出刚浇筑楼板截面尺寸,一旦发现截面尺寸超标,立刻对楼板截面进行相应的凿除或者同强度细石砼修补。
因室内甩浆(拉毛)质量不合格(漏甩、间隔大、不起毛刺、强度不足)导致墙体批灰层与基层粘结不牢所出现空鼓、开裂现象。
1、拉毛前要对天花与墙身淋水湿润,拉毛完成后,要淋水保养二天。
2、拉毛的水泥浆的成份为水泥:沙:水:适量801胶水;配比与粘度要拉得起毛且不会流坠为标准;
3、拉毛密度:两片之间的间距不大于50mm;抹灰砂浆应2h内使用完毕。
因喷浆工艺本身的质量缺陷(喷点是圆的与批灰层粘结力不强),如项目采用机械喷浆工艺,必须要事先做好施工样板待评估效果及工人的操作水平符合要求后才允许使用此工艺,过程必须严格控制量。
原因分析:
1、采用砂浆王。目前市面上的砂浆添加剂质量掺差不齐,砂浆添加剂(如砂浆王、砂浆浓缩液等)的理论作用是改善砂浆的和易性、减少水泥用量,但有一点致命伤是操作现场根本无法有效控制工人对砂浆添加剂的掺入量,过多过少都会使砂浆离散、强度降低,空鼓开裂增加。
2、采用过时的抹灰砂浆,或砂浆配比不到位,抹灰养护不到位。
1、在内外墙抹灰中严禁使用砂浆添加剂(如砂浆王、砂浆浓缩液等)。
搅拌好的砂浆应尽量在2~3h内使用完毕,不得上午留置下午使用。
1、由于室内不同材料交接位的挂网位置不对(钢筋网挂在砂浆层底部),导 致挂网防开裂功能倍减。
2、天面层(顶层)板受热胀冷缩影响大再加上外墙也受温差影响,导致顶层外墙的内侧比内墙和其它楼层开裂现象多。
1、室内墙体不同材料交接位挂钢丝网要挂在砂浆层的中部位置。(从现场容易控制的角度出发:要执行先甩浆后挂网工艺,使甩浆的毛剌把钢丝网顶起,使网有效进行砂浆层中部位置,确保钢丝网起抗开裂的功能)
1、天面层(顶层)的外墙内侧墙面要满挂网作加强防开裂措施。
2、室内钢丝网规格为:直径为0.6mm,网格尺寸为15*15 mm。
2.4墙面线管位开裂
原因分析:
1、人工打凿会无尺寸控制,会敲松墙,造成空鼓开裂。
2、预埋线管用铁钉固定会不牢固,线管会来回拖动导致填塞砂浆与线管之间有空隙,形成空鼓开裂。
3、线管槽填塞砂浆后如不作挂网处理,因不同材料和新旧接口,必定会形成裂缝。
1、采用预留、预埋或机械开槽和开洞,严禁人工打凿;墙槽用水泥砂浆填补密实,且与砌体墙平;小型空心砌块墙体的竖向管线应随墙体砌筑埋设在孔洞内,并在安装完后用水泥砂浆或细石砼灌实。
2、线槽尺寸:砌体墙槽深度≤dn+10mm,槽宽≤dn+60mm
3、预埋线管时要使用专用线管固定钩固定,不可用铁钉固定线管位挂网每侧为100mm。
1、由于不设墙体拉结筋或拉结筋不规范不牢固导致墙柱交接位竖缝开裂现象比例高,且难于根治。
2、剪力墙与砖墙交接位的砖灰缝不饱满。工人通常在此交接竖缝砂浆填充不重视。
1、砌体与砼体的拉结筋或拉码必须要设置,间距在400~600mm一道,外伸长度不少于700mm或按规范要求,钢筋直径不少于6mm,如钢筋端部带90度或180度弯钩,拉结筋必须牢固(用手把钢筋向下或向上弯曲后,再晃动钢筋检查是否松动,松动则不合格)。拉结筋可采用预埋方式。
2、剪力墙与砖墙交接位的砖灰缝必须填塞饱满,必要时对交接处剪力墙凿毛处理,增加结合力。
1、由于砌体顶砖角度过大或过小都没法有效顶紧梁底使梁底与顶砖顶部形成空隙,产生日后抹灰的裂缝
2、由于顶砖间隔时间不足下部砌体收缩下沉,导致顶砖的顶部与梁底之间有空隙,产生日后抹灰的裂缝;
3、顶砖未勾缝,或勾缝不密实,造成开裂。
1、砌体应分段砌筑,每天的砌筑高度不宜大于1800mm,减少因下部不稳上部晃动,造成墙中部的水平裂缝。
3、预制水泥三角块角度为45~60度,两端采用预制三角块。
4、外墙、顶砖部位必须二次勾缝至密实;其他墙体应随手勾缝;钩缝要在砂浆初凝前处理(一般在砌完第三皮砖就开始对下二条缝进行勾缝)。
5、勾缝工具要采用园形钢管弯成,并来回拉动二次确保缝密实无孔洞。所有缝要形成弧形“︶”。
6、如果顶砖部位采用塞缝填浆工艺(即砌砖砌到梁底留20~30mm),必须要求在普通水泥加入微膨胀剂或直接使用微膨胀水泥配制,防止收缩开裂。
窗台两端经常出现“八”字裂缝,主因是窗洞口周边四角应力最为集中的地方。
1、在窗台设置砼压顶,厚度为100mm,宽度同厚,两端伸入墙体≥100mm。(伸入墙体部份要预留,不可后切)如图。
2、窗台压顶砼长度≤1.5米可用C15素砼,超过1.5米要适当加设配筋。
1、洞口上部两端是应力最为集中的地方,易出现“八”裂缝。
2、洞口上部顶部由于荷重,之使过梁中间下沉两端上弯,导致“八”裂缝。
1、洞口(大于600mm)的过梁:同墙宽,入墙不少于200mm。因平面限制,入墙小于100mm时,采用锚固及现浇。
2、过梁厚度严格按图纸要求,实际厚度不得低于设计要求的90℅,过薄会引起中间部位因刚度不足受力下沉,两端向上顶,造成门窗洞口顶两侧开裂)
施工洞口过梁如采用钢筋直接支撑上部荷重,由于钢筋刚度不足导致中间弯曲两端开裂。
2、因施工洞口先留设后封堵,由于洞口两侧没按要求留马牙槎及埋设连结筋,导致交接位开裂。
3、因施工洞口位置的抹灰是封堵后才修复,经常因没挂网或挂网没搭接和砌砖后马上抹灰导致新旧砌体交接位或洞口整体开裂。
1、施工洞口过梁不准采用钢筋作过梁,应采用预制砼过梁,厚度不少于100mm。
2、如两侧未做马牙槎或马牙槎少于200mm,则在施工洞口两侧必须每隔500mm要埋设两条拉结筋且端部带钩,伸出长度为500mm;埋入长度为300mm。
3、施工洞口封堵位置要全面作挂网处理,且挂网搭接不少于150mm。(施工洞口两侧墙体批灰时,要在施工洞口周边预留150mm不用批灰,用于施工洞口与墙体交接处挂网之用)
1、后浇带支撑系统过早拆除;
2、地下室顶板后浇带处过早上重荷载。
3、后浇带支撑系统拆除后未及时回顶,或者回顶不规范。
与顶板支撑系统分开支模,待后浇带浇筑完成达到设计要求后方拆除。
当地下室的主体结构剪力墙与外挡土墙相连且两者的砼标号又不相同的情况下(目前各项目地下室剪力墙的砼标号一般是C40~C50,而挡土墙的标号为C30~C35),施工单位为了方便(现场也难于分开浇筑,用分隔措施又会产生施工冷缝产生渗漏隐患),通常会把夹在上部结构剪力墙之间的地下室外侧壁挡土墙的混凝土部份擅自用了与剪力墙同标号的砼浇筑,因挡土墙长度较长、面积较大,挡土墙在配筋上没包含克服标号提高而产生的砼收缩应力,致使在挡土墙上普遍产生收缩贯通裂缝。
加强外剪力墙砼的养护,保证养护时间不少于72小时(对挡土墙与剪力墙相连的部位可采取先松开对拉螺杆(但不要拆开模板),在挡土墙顶部放置穿孔水管进行持续淋水,使水沿着板缝进入模板与砼之间的缝隙,对砼表面进行保湿养护;
2、在地下室结构设计时,设计部结构专业要与设计院沟通,尽量将外剪力墙相连的主体剪力墙采用相同标号砼;
3、设计部结构专业在设计上要考虑剪力墙与挡土墙在不同砼标号的情况下,把相连的挡土墙与剪力墙作分开处理(分开距离不少于100MM),工程施工上要进行各自支模分开浇筑。
1)原因分析:止水钢板两翼弯折方向是直接影响止水效果,两翼向迎水面弯折则延长和改变水渗线路从而增强防渗漏效果;两翼向背水面弯折则缩短水渗线路导致防渗漏效果差。
止水钢板设置在壁厚的1/2处,埋深为止水钢板宽度的1/2,且止水钢板两翼向迎水面方向弯折。
2、地下室侧壁的水平施工缝应留在高出底板面300mm的侧壁上并与底板一次性同时浇筑。
3、后浇带的混凝土标号要比两侧混凝土高一等级并要掺入微膨胀剂。
(1)合理设置伸缩缝及后浇带:地下室现浇结构,当长度超过30m左右即应设置伸缩缝。后浇带是一种常用的已被实践证明可以有效控制砼结构裂缝的方法。
(2)砼中掺加外加剂或外掺料。在混凝土中掺入膨胀剂,以补偿砼的收缩应力。或在砼中掺入纤维(如PP纤维等)类,该种纤维有一定抗拉强度,与砼握裹力好,达到增强砼硬化过程中的抗拉应力,控制砼裂缝的产生。
(3)设置防裂钢筋,增加构造筋,提高抗裂性能,在地下室外墙水平筋应尽量采用小直径、小间距,使构造筋达到温度筋的作用,能有效提高抗裂性能。
①水泥应采用低水化热的水泥,宜优先选用强度等级为42.5级的矿渣硅酸盐水泥,内掺适量超细粉煤灰和高效减水剂,可减少水泥用量,提高混凝土的可泵性。
②砂应采用洁净的中砂,严格控制砂中含泥量不得超过3%;并通过精心试配,提高混凝土的强度。
④外加剂和外掺料,使用减水剂可以改善砼拌合物的和易性,且能够减少水灰比,减少用水量,防止砼中多余水分引起裂缝和空隙。外掺料可以替代一部分水泥,降低水化热,减少混凝土温度裂纹和收缩裂纹。
①坍落度的采用应根据地下室不同部位和施工工艺选择不同的坍落度。严格控制水泥和外加剂、外掺料的用量。为使拌合物具有良好的和易性,必须保证足够的细骨料用量,应根据现场要求,进行试配。
②严格控制水灰比:水灰比过大,混凝土的收缩率大,抗渗性差。
砼浇注后,必须在12h内覆盖保温养护,之后砼表面要一直湿润养护到14d。为防止出现干缩裂缝和温度裂缝,最好其表面一直要采取措施进行保温保湿养护。对于大体积砼应采取有效的温控措施,做好测温记录,控制内外温差≤25℃。
(1)模板应牢固,拼缝严密,不得漏浆。模板发生变形或漏浆,极易引起漏水。模板的对拉螺栓应加焊止水环。
(2)混凝土浇注。为避免砼产生分层、离析,浇注时应严格控制拌合物自由落差。浇注可分层分段进行,但应注意层与层,段与段之间浇注时间间隔不得超过初凝时间,以免出现施工缝。
(3)提高混凝土振捣的组量。地下室砼应全面细致地进行振捣,下料和振捣要形成一定的顺序,防止漏振、欠振。要在下层砼初凝前完成上层砼浇筑振捣,捣固振动棒直插入下层砼中5-10cm,以保证接层部位砼的质量。要严格控制振捣时间,以砼开始泛浆和冒气泡为准,不得欠振或超振。
外墙施工缝应设在高于底板30cm的外壁上。对于地下室留置施工缝时,应设置止水钢板或按设计要求留置。浇注砼前,要将原有砼表面的浮浆凿去,并认真清理后再浇注新砼。后浇带的砼应采用补偿收缩砼。
穿透外墙的预埋件,应在每一个预埋件的上加焊止水环。预埋件穿透模板处要堵塞严密,不得漏浆。混凝土浇注时,要注意将预埋件下方的砼振捣好,防止出现空洞、蜂窝。
必须通过剔凿找出漏水点、漏水线,有针对性地进行堵漏;采取刚柔结合、膨胀增强结合的方法;对埋件周围漏水堵漏,剔凿一定深度后,采用速凝剂堵漏。
目前常用的地下室混凝土墙裂缝的处理方法有以下四类:a、表面涂抹法;b、表面涂刷加玻璃丝布法;c、充填法;d、灌浆法。常用的为第三和第四种方法,如将两种方法结合起来使用,效果更佳。
用钢钎或高速旋转的切割圆盘将裂缝扩大,形成V形或梯形槽,清洗干净后分层压抹环氧砂浆或水泥砂浆、沥青油膏、高分子密封材料或各种成品堵漏剂等材料封闭裂缝。当修补的裂缝有结构强度要求时,宜用环氧砂浆填充。
灌浆材料常用的有环氧树脂类、甲基丙烯酸甲酯、丙凝、氰凝和水溶性聚氨酯等。其中环氧类材料来源广,施工较方便。灌浆方法常用以下两类:一类是用低压灌入器具向裂缝中注入环氧树脂浆液,便裂缝封闭,修补后无明显的痕迹;另一类是压力灌浆。
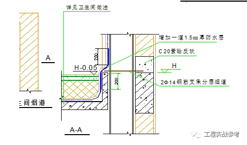
1、因出屋面的烟道根部渗漏隐患较多,如没设砼返边或没一次性与屋面板砼浇筑,就很容易造成水从根部渗漏进入室内。
2、室内厨房烟根渗漏隐患也较多,如没在烟道根部设置砼反坎处理,一旦上层厨房装修,下层厨房烟道顶部就经常会有渗漏现象。
1、烟道出天面反边砼要与天面砼一起浇筑,不得分开浇筑。烟道反边砼高度不低于屋面板砼上300mm。
2、室内厨房烟道根部要浇筑高为150mm,宽为80mm C20的素砼反坎。(靠墙的两侧则不用),浇筑砼反坎应与封堵烟道周边孔口一并进行,加强防渗漏功能。(此项工作应在厨房墙身抹灰前完成)
3、沉箱卫生间内有烟道、排气通道,其根部周边必须一次性做150宽,高度高于沉箱盖板面50mm的C20的砼反坎。
如卫生间内不设沉箱,只作降板处理,则卫生间内的排气通道根部可不做砼反坎,但必须在根部周边300mm范围做好防水措施,并做好闭水实验。
1、沉箱底板要承受上层沉箱所传来的荷重,且主要通过钢管脚集中受力点传递,因受力集中会给沉箱底板带来开裂隐患。
沉箱四周梁振捣不到位,沉箱板浮浆过度,板厚未能有效控制。
(一)或方式(二)的支撑方式。
方式(一):支撑在沉箱两侧梁面上的木枋要双排,不得采用单木枋。
方式(二):铺在沉箱底板上的模板应比木枋位置宽不少于200MM,木枋要采用双排,不得采用单排。
2、沉箱板统一加厚10~20mm,并对四周梁分两次振捣至密室。
1、沉箱渗漏主要地方之一(如图一):用木条支撑,留渗水隐患。
2、用铁丝穿透底板固定侧模,因拆模时会拉动铁丝形成渗漏通道;就算不会拉动铁丝,但铁丝日后会生锈也会形成渗漏通道,(如图二)。
1、沉箱侧板底的高度不准用木条支撑,要在四角处焊横铁支承(横铁与梁箍焊接),见上图。
2、卫生间沉箱周边侧模不准用铁丝穿透底板固定,要用木枋纵横对撑并四角用“三角板”加强
篇幅过长,以下略。。。
