凿井工程图册全套PDF版



本分册编制说明
本<<图册>>在原有<<图册>>的基础上,吸取了全国各地立井井筒施工经验和先进技术对井筒及与其有关的布置进行了优选和系列设计。
第一部分为井径3.5m至8m(级差为0.5m)深度200m至1000m,单行作业(大段高,小段高)、混合作业、平行作业方式的井筒、天轮平台及地面提升机、凿井绞车布置设计,供各单位在布置井筒、天轮平台及地面布置时参考之用。
第二部分为井径5m,井深400m,小型装备(人抱钻,0.1~0.2m”抓岩机),单行作业示例设计。
第三部分为井径6.5m,井深600m,大型装备(伞钻,0.4~0.6m”抓岩机),混合作业示
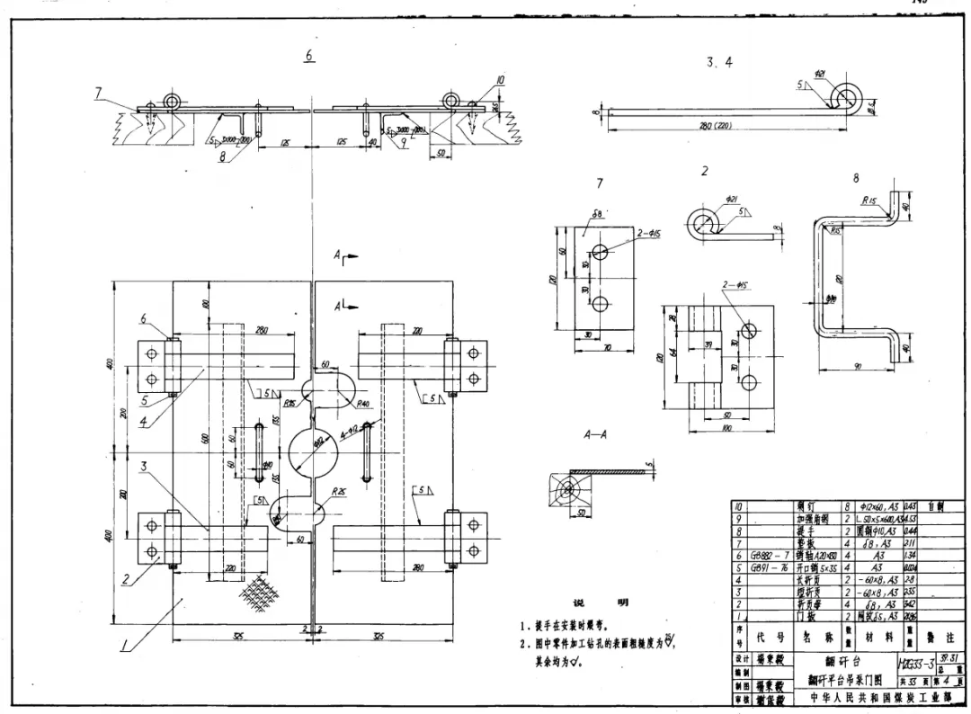
例设计。第四部分为井径7.5m,井深800m,大型装备(伞钻,0.4~0.6m”抓岩机),单行作业(大段高,锚喷临时支护)示例设计。第二、三、四部分设计中包括了井筒、吊盘、固定盘、封口盘、翻矸台、天轮平台及地面布置等施工图,供开凿各种井径的井筒时,绘制施工图之参考。
并筒施工速度的快慢大都取决于提升能力的大小,出岩是整个循环中占时最多的一个工序,所以在设计井筒布置时,根据我国现有提升机及装岩设备能力与井简布置的可能性,尽量
采取大吊筒提升、双滚筒双钩提升及多吊桶提升。设计中吸取了近年来我国在建井实践中所积累的先进经验及煤炭、冶金、机械三部立井会战中研制成功的新设备、新工艺,例如:各种金属活动模板、吊桶自动翻矸、管线井内吊挂、4~5m”吊桶、6臂及9臂伞钻、各种直径的环钻、各种形式的抓岩机、500m和750m扬程吊泵及新系列的凿井提升机、凿井绞车等。
考虑到我国国情及现场施工装备情况,对原有凿井设备也予以考虑,<<图册>>中井径3.5m至5.0m,深度200m至400m的井筒设计选用小型设备及原有凿井设备,可适应小型矿井凿井需要。总之,使用中应根据各地区条件的不同,本着优质、快速、安全、经济的原则,灵活采用本<<图册>>的各种布置。
使用本<<图册>>时应参阅各有关设计说明中所列条件,如具体条件与设计前提有所出入,应根据具体情况参照<<图册>>中设计原则作相应变动或重新设计。

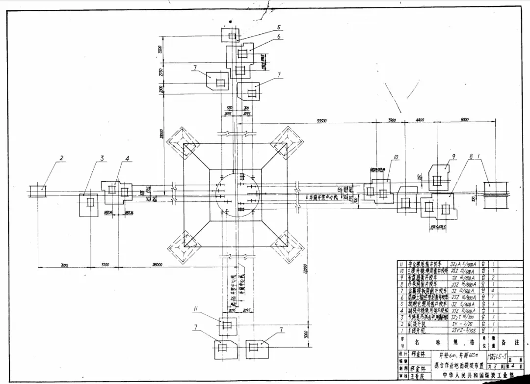
一、井径3.5m至8m,井深200m至1000m井筒、天轮平台、地面布置
(一)井简布置设计的原则
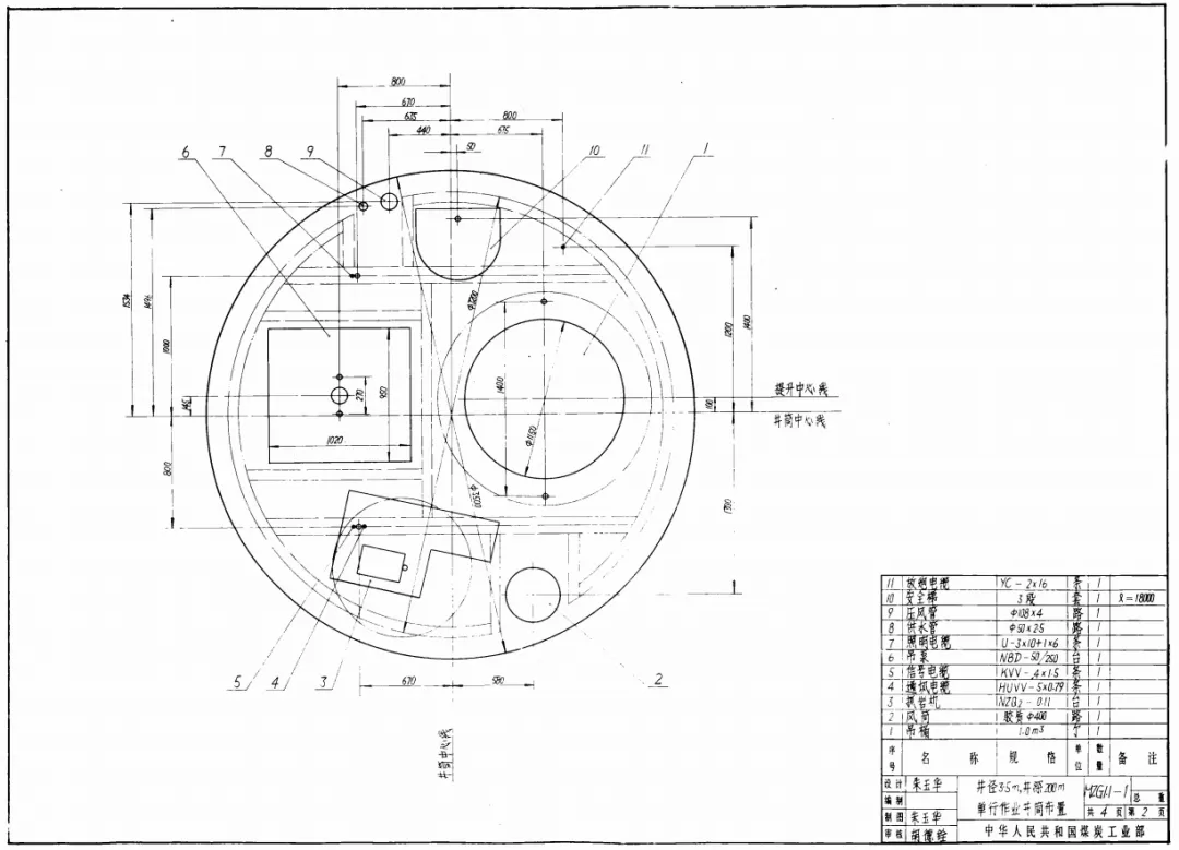
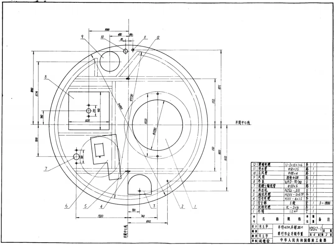
1.本布置设计是井径3.5m至8m(级差为0.5m),井深200m至1000m的井筒、天轮平台及地面提升机、凿井绞车布置,供编制相同井径的井筒施工设计时参考之用。
2.为井筒快速施工创造条件,在保证安全质量的前提下,尽可能布置大容量的提升容器。3.布置中各种设备的轮廓尺寸,例如:吊桶、滑架、各种管卡、安全梯、井架、天轮等均采用本<<图册>>中设计的资料。凡<<图册>>中未设计的各种提升机、凿井绞车、管路法兰盘等均选用各部所颁标准中的数据。
4.各种设备之间,设备、管线与井壁之间,设备、管线之间及设备、管线通过各孔口的间隙均遵照<<煤矿安全规程>>1986年版、<<矿山井巷施工及验收规范>>1980年版中的规定。个别达不到规程要求的,只在次要部位或数据相差很小,施工中采取适当措施补救,可以保证安全。
5.井筒施工作业方式根据国内施工经验及技术发展趋势,按照不同的井径及深度一般既设计了单行作业和平行作业,又设计了混合作业,在单行作业中又分别设计了大段高和小段高的形式,在作业方式中重点推荐混合作业。
6.井筒、天轮平台、地面提升机与绞车布置是按以下几点考虑的:
(1)尽可能减少转入平巷开拓时的改装工作量。
(2)保证井筒掘砌时测量方便,不受悬吊设备影响。
(3)井筒内设备布置尽量便利掘砌作业和操作维修方便。
(4)井筒设备布置尽量使井架受力均衡并避免使天轮平台、倒矸台、封口盘、吊盘等设计复杂化。
(5)提升机与凿井绞车的仰角、偏角符合有关设备的技术规定,前后左右间距在使用时互不干扰。
7.井筒布置中对有关问题的具体考虑:
(1)井壁:根据井壁封水效果和快速建井的要求,本井壁设计是按混凝土井壁考虑的。筑壁采用混凝土输送管或底卸式吊桶下料,并使用各种类型的金属模板。考虑有些井筒地质条件好或只担负通风等任务,其永久支护设计了锚喷网或锚喷支护
2)吊盘:吊盘根据作业方式设计2~4层,单行作业时上层盘作保护盘,滑架不通过吊盘。平行作业时利用吊盘上、下层盘作保护盘及抓岩机固定盘,中间盘作砌壁工作盘,滑架通过上、中层盘。吊盘外径根据作业方式不同而定,当吊盘不通过模板时与井壁间隙不大于100mmm。为减化布置及节省凿井绞车、天轮及钢丝绳,设计中参考国内外经验考虑了吊盘绳兼稳绳(采用时须向各自主管部门报批)。
井筒布置中以双点划线表示出吊盘主梁、副梁与井筒设备之间的关系,供采用本布置设计吊盘时参考。
(3)井筒通风:风筒直径是按计算选定的,凡图中一趟风筒者均为压入式通风,二趟风简者一般为混合式通风。采用井内吊挂的风筒不通过吊盘,采用压入式时下层盘留有孔口门,吊盘下可安胶质风筒。
(4)井简排水:设计井筒涌水量按小于20m2/h考虑的。考虑到现实情况,一般均布置台吊泵在吊盘上,在吊盘上设置水箱,用潜水泵将工作面水排至水箱,再由吊泵向上排至地面。如水量超过一台吊泵排水能力时,必须采取注浆封水措施。
按井筒深度选用250m、500m及750m扬程吊泵。井深800m时可将吊泵加级,井深1000m时采取无吊泵方案,设计不考虑设中间转水站。
为了加快建井速度,根据井筒含水层赋存情况及涌水量可以分别采用地面预注浆或工作面预注浆封水。
(5)井筒压风:由地面压风机房经管路向井筒工作面供压风。
根据所选设备的压风用量决定不同管径,一般为中159×4.5mm~中194x6mm钢管,其末端安分风器,以高压胶管送压风至工作面,分风器位于吊盘上。压风管一般为井内吊挂,利用锚杆和卡子固定,每根管子固定上下两端。
(6)安全梯:设计中均考虑安全梯保护圈为可折叠式,安全梯距井壁不大于500mm,安全梯平时不通过吊盘,只将软梯从吊盘下悬吊到工作面。(7)动力、信号、通讯、放炮电缆:图中都已表示出位置,各种电缆都是附在管卡上送
入井下。
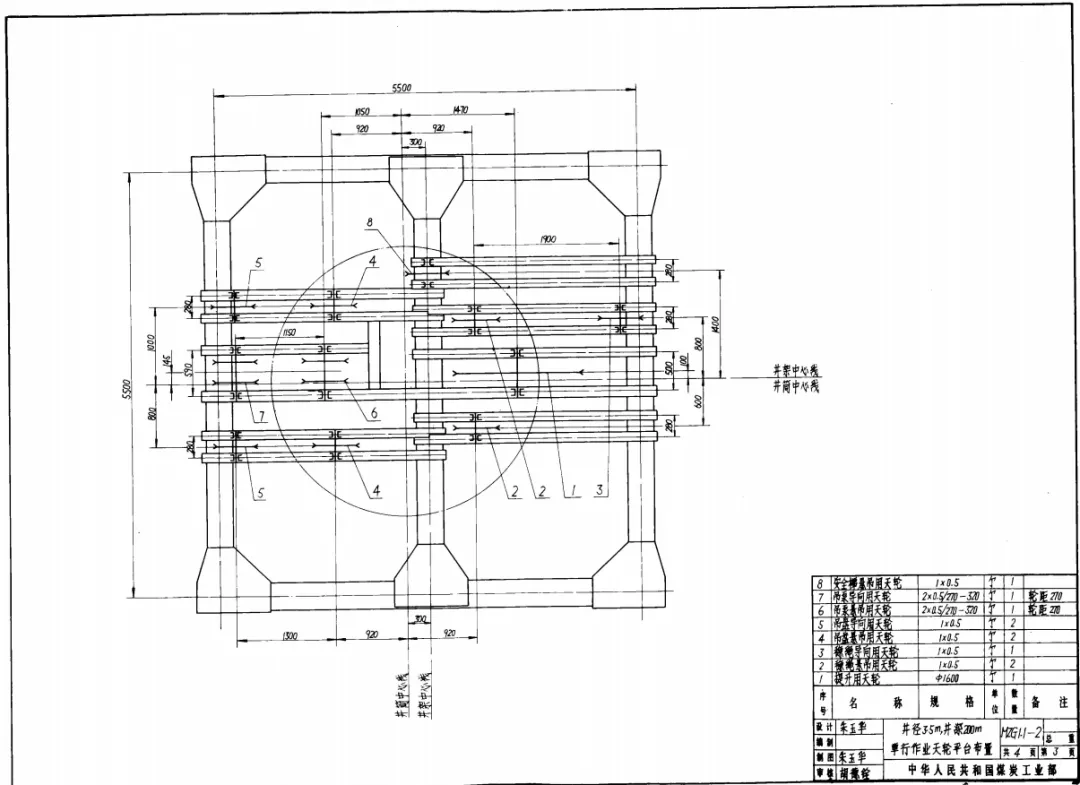
(二)天轮平台布置
1.天轮平台图只表示出天轮规格、位置,轴承座位置,两天轮梁中间的尺寸以及轴承中心距离。
2.布置图中有的采用两个天轮的轴承共用一根梁。轴承中心不在梁中心上者以及天轮搭在主梁上一半者,在该梁受压处的腹板上应焊以加强筋板。
3.天轮梁的规格,设计中已粗略计算,施工时可根据悬吊负荷自行设计。
4.天轮按新系列设计,有些施工单位旧系列天轮库存量较大,在设计时考虑了旧系列天轮的应用条件。
5.天轮平台布置中的轴承座垫高尺寸未列出,施工单位可根据具体情况自行安排。
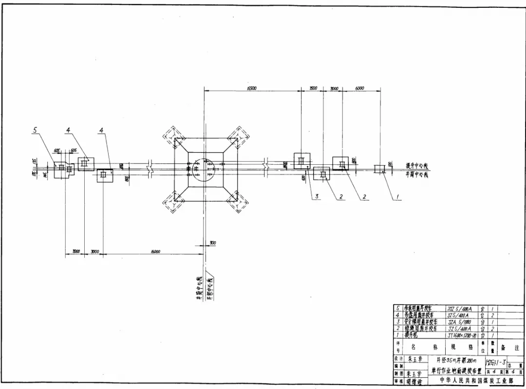
(三)地面提升机、凿并绞车布置
1.地面提升机、凿井绞车布置系按一般情况考虑的,施工时可视各地地形、工业广场布置等具体条件作适当变动,如位置变动应重新计算。
2.提升机的选择除能满足凿井期间吊桶提升能力外,也考虑到平巷开拓时提升能力,因此,主提升机均选用双滚筒
3.临时提升机位置与永久提升机位置关系图中未表示,由现场根据情况决定。如利用永.
久提升机凿井,则应与设计位置相适应。
4。吊盘悬吊绞车选择为同一型号、同一厂家生产的,以便集中控制,使其同步。























凿井工程图册全套共五册 PDF电子版
包含:立井施工工艺及设备布置、立井凿井专用设备、斜井施工专用设备及布置、斜井专用设备设计计算示例、凿井专用设备设计计算示例
内容详细,适合煤矿工程、凿井施工、设备布置等专业学习参考

夜雨聆风
