乐于分享
好东西不私藏

某综合体(商业+办公综)全套强电图纸(文末下载)

某综合体(商业+办公综)全套强电图纸(文末下载)

点击上方↑「老王和你聊电气」关注我吧

文末提供文件下载

本项目位于上海市内环内,为当地的标杆性项目,总建筑面积约43万平方米,其中地上建筑面积为30.5万平方米,地下建筑面积为12.5万平方米。集购物中心、文化、商务办公楼、地铁接驳口为一体的大型商业综合体,项目整体包含2栋超高层办公楼(T1塔楼和T2塔楼)、裙房购物中心以及地下室。其中T1塔楼的建筑面积为10.8万平方米,地上共47层,建筑高度为230米,为超高层公共建筑,功能为自持办公楼;T2塔楼的建筑面积为7.7万平方米,地上共39层,建筑高度为200米,为超高层公共建筑,功能为销售办公楼;裙房购物中心的建筑面积为8.8万平方米,地上共5层,建筑高度为41.5米,为一类高层公共建筑,功能为大型商店建筑;地下室总建筑面积为12.5万平方米,其中商业建筑面积为2.8万平方米,地下车库和设备用房建筑面积为9.7万平方米,地下室共3层(局部4层),埋深16.5m,主要功能为商业、超市、设备用房和机动车车库,地下车库的机动车停车数量为1693辆,为 I类汽车库。项目配建民防工程建于地下二、三层汽车库内,战时功能为附建式甲类防空地下室,为二等人员掩蔽所,防护等级核6级、常6级,防化等级为丙级。
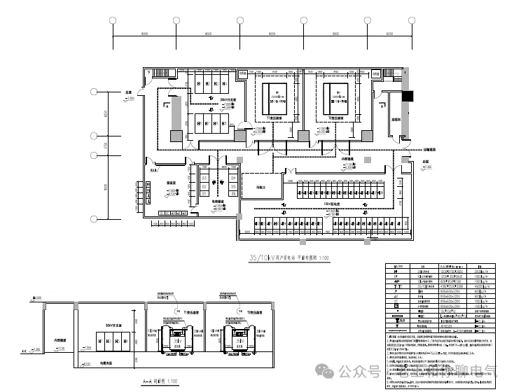
本工程为特级负荷用户,经过与供电部门和业主协商,明确本工程的供电电压等级为35kV,由周边市政电网两个不同区域的35kV变电所引来两路独立的35kV双重电源供电(已与供电部门确认,本项目不设置电业35kV开关站),采用电缆室外穿管埋地方式引入红线内,双重电源同时工作,互为备用,当一路电源故障时,另一路电源不至于同时受到损坏,任一路电源都能承担全部特、一、二级以上负荷供电。最终供电方案以当地供电部门批复的供电方案为准。
图纸包括高压、低压、照明、柴发、防雷接地、消防等全套图纸,非常具有参考学习价值。
整理不易,拿走点个赞吧~
夸克网盘下载方式
1.扫下方二维码直接下载

2.下载链接:

https://pan.quark.cn/s/7f6998ba3fed

本站文章均为手工撰写未经允许谢绝转载:夜雨聆风 » 某综合体(商业+办公综)全套强电图纸(文末下载)

评论 抢沙发

5 + 2 =
  • 昵称 (必填)
  • 邮箱 (必填)
  • 网址
×
订阅图标按钮