最强CAD辅助插件,版本转换、图转CAD、批量打印等一网打尽!
公众号改推送机制了,以后可能收不到咱们消息了,不想错过优质的资源分享,请点左上角蓝字品艺设计库,然后按下面步骤,设置星标★ 就可以优先推送了,谢谢大家的支持。
CAD辅助工具插件合集









批量高版本转低版本-介绍预览
设计师经常会需要打开客户或其他设计方发来的CAD文件,
但大家的软件版本不同,发来的文件版本很可能高于你的软件,没法打开。

▲ CAD超多版本,如不设置,文件版本同于软件版本



但是当你拥有这个高版本转低版本的工具,就能秒速完成文件版本的转换,甚至还能多个文件批量转换,简直不要太快太轻松。
批量打印-预览
咱们室内开工前要打印的成套施工图是少不了的,
但是一套图那么多张,
一张张打印也太慢了。
这不,批量打印的插件就来了。


▲ 一套完整的图纸数量繁多
这个批量打印的插件,只要按照要求设置好,一键打印不再是梦。




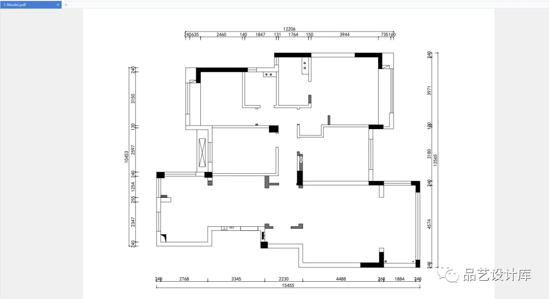
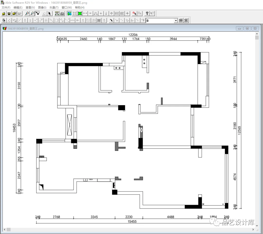
PDF转CAD-预览
有时候发过来的图纸并不是CAD文件格式,而是PDF,但是照着PDF再画成CAD也着实很麻烦啊。有了这个PDF转CAD工具,就不用再这么做了,简单几步,分分钟将PDF转换成CAD。




▲ 转换完成后的CAD文件

「360」期
方法一:
资料价值:9.9元
5元
(限时特惠,今日仅限50份)

———————————-
不想花也不要紧~
【免费方式】
向公众号发送
PYSJ
查看详情
官方公众号

长按扫码关注丨让设计更简单
版权声明:我们尊重原创。文字美图素材,版权属于原作者。部分文章推送时因种种原因未能与原作者联系上,若涉及版权问题,敬请原作者联系我们,立即处理。
夜雨聆风