

This project is located in Ningbo, Zhejiang, and is a technology-based enterprise.
因部分场景涉密,故不便于展示。
Due to some scenarios involving confidentiality, it is not convenient to display.












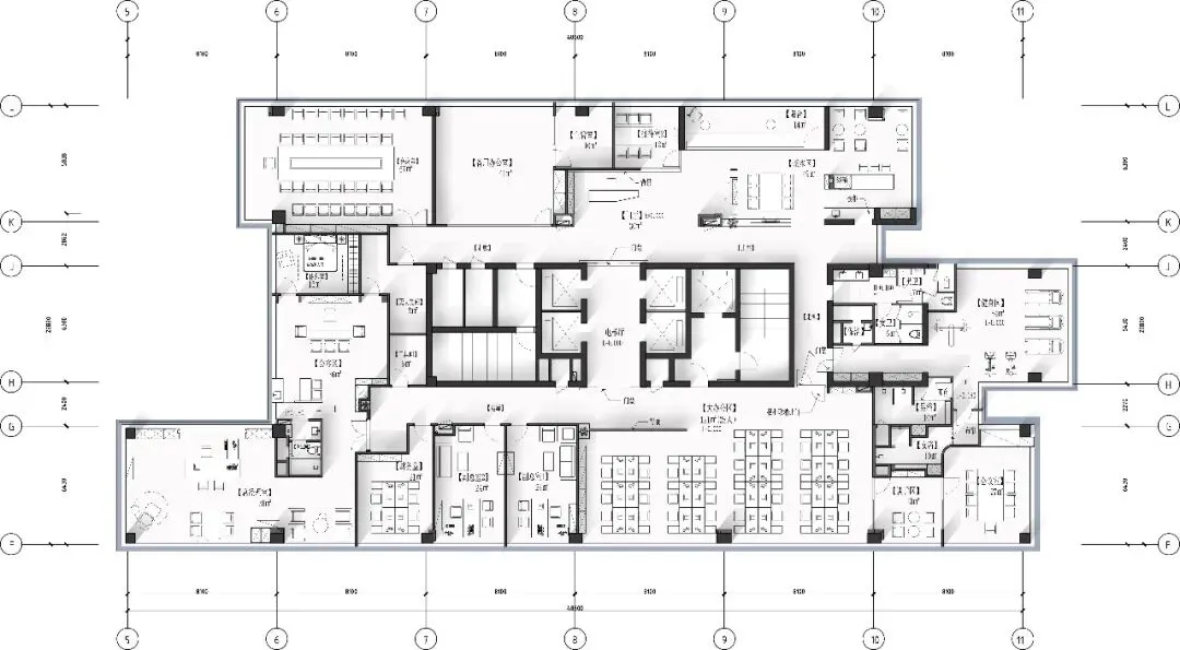
The overall space is a square-loop structure, with the reception area, office area, and leisure area arranged in a surrounding layout.
梳理不同空间的功能,构建交通流线,实现功能区之间相互的独立又能高效的衔接,做到接待、办公、会议、会客的各种秩序。
Sort out the functions of different spaces, construct traffic flow lines, achieve independence between functional areas while ensuring efficient connection, and maintain various orders for reception, office work, meetings, and guest visits.












利用企业对办公空间的明确规划,最大限度的将空间让渡给公共区域,实现多场景的联动。
By utilizing the company's clear planning of office space, maximize the allocation of space to public areas, achieving multi-scenario linkage.

Whether consciously or not, people always have a yearning to gather in such spaces.
——安藤忠雄(Tadao Ando)




夜雨聆风