新作|智芯插件:杭实智造中心公共配套改造 / ATAH介景建筑


△ 杭实智造中心公共配套改造 摄影:许佳
设计单位ATAH 介景建筑
项目地点 浙江省杭州市余杭区
建设时间2025年4月
设计面积3000平方米
本文文字由设计单位提供。
仁和里·杭实智造中心是杭州市余杭区首个“专精特新+基金”主题的工业上楼产业园区,由世界500强杭实集团与余杭经开区国企联手打造,聚焦智能制造与新能源赛道。项目总建筑面积约21万平方米在两年左右的时间基本建设完毕。

△ 园区整体鸟瞰 摄影:许佳
01
施工中新需求
随着这一长三角工业上楼行业标杆项目施工接近尾声,在面对具体市场时,产生了新的运营需求:
·需要为租户提供中大型活动的室内场地。
·需要激活核心院落的可达性。
·需要调整首层的商业流线与店铺组织以提升运营场景的呈现。


△ 景观台阶和下沉内院原状 ©介景建筑
02
手术计划
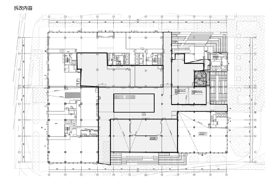
在与业主在施工现场充分交流与观察之后,介景建筑结合自身在工业上楼、园区改造领域的实践经验,提出了以下的调整措施:
·调改原规划中的户外大台阶,置入新的会议及多功能空间。
·建立斜向片墙组织,加强与场地南侧景观的联系。
·创造更多灰空间,细化近人商业外摆。
·将展陈空间碎片化,贯穿到廊下流线中。

△ 拆改界面和调整范围示意图 ©介景建筑
△ 拆改动画及改造后效果 ©介景建筑
其中最为显现的变化是对于大会议厅的植入,业主接受了建筑师的建议,将户外大阶梯局部拆除以获得充分的高空间。与此同时参会者可以在屋顶登高眺望南侧沿河风景,也可在此做延伸的户外会议活动。


△ 改造后的会议厅和公共空间 摄影:许佳
与通常的黑盒子操作不同,建筑师采用通透的方式处理了南侧界面,通过内部顶部的遮阳处理,形成可控入光量的状态。这种尝试意在打破了传统会议厅封闭的空间感,使室内与室外空间在视觉上融合,增强了空间的开放性与流动性。在一些场合,通透的界面将室外自然环境引入,赋予演出独特的自然氛围,提升观众沉浸感。

△ 墙身剖透视 ©介景建筑
△ 会议厅主立面 摄影:许佳
03
“骨”与“皮”
为契合报告厅的布置场景并加强景观渗透,设计采用的斜切的实墙作为空间划分。建筑师通过结合灯光的穿孔金属板的设置丰富了界面在不同光环境下的表现力。


△ 立面细节 摄影:许佳
由于是施工过程中的同步改造,在最大限度利用已有结构的基础上,设计提供了两种结构对比方案争取更多的空间可能性。前者在强化景观开敞性的同时,减少对结构柱、地下室等现状的变动,保证二层回廊足够的活动尺度。后者利用已有柱位,适当对梁板进行改造,促使室内空间更加完整,增加的层高可获得更多采光,同时新增的天窗可作为采光通风面。

△ 结构方案对比 ©介景建筑


△ 改造后的会议厅二层 摄影:许佳
04
边界与陈列
围绕会议厅的新建,建筑师通过对庭院周围的界面尺度细化来重建“工业活力核心”。在三处入口空间顺应动线,创造“厚墙”空间,利用墙面厚度碎片化置入迷你功能,为空间赋予触手可及的温度。三处入口厚墙设计了三种展陈主题,分别是北侧入口的产业时空穿梭,南侧出口的工业未来体验与东侧支路的尺园。分别对应展览流线的起点、终点和放松休息点。

△ “厚墙”示意图 ©介景建筑

△ 改造后 摄影:许佳
廊道中庭及展厅部分由可灵活切分的室内空间序列、嵌套式的半室外空间、环绕庭院的室外空间组成。连续的空间面对内院、南向使用上翻折叠门,具有工业感,并能营造室内外无界场景;无跨空间可根据需要深化平面,其隔墙可做固定式或推拉式隔断。

△ 多层剖透视 ©介景建筑

△ 展览流线组织图 ©介景建筑
05
“三前置”“三弹性”
出现边施工边升级的场景,体现的是业主在适配真实需求时候所做出的主动应对。设计团队在遵从原规划逻辑的前提下,通过对于底层支持性功能的新设、界面层次的升级、景观的联动等手段一并提升项目的服务性基础设施。建筑师跳出了原先给定的空间框架,提升了园区的整体体验,也为未来的产业发展提供了坚实的基础。

△ 改造后 摄影:许佳
由于设计团队介入此项目的时机离最终开业仅有数月,面临工程周期、施工条件的限制,不少设计意图仍需在后期整改中实现。但陪同业主和合作方跑完“最后一公里”的体会,不禁让人反思在综合性产业园区设计中应在前期就系统性配置“三前置”“三弹性”——策划前置、结构前置、运营前置;空间弹性、界面弹性、内容弹性。
这不应是规范表上的被动勾选,而应在规划之初就进入可行性研究的硬核指标——就像荷载、柱网、物流一样,可被计算、被验证、被资本化。当会展面积、会议荷载、展陈荷载、屋顶活载、机电冗余被写进设计任务书,当“租金+运营”双轮模型被纳入财务测算,工业上楼才真正完成从“垂直工厂”到“垂直产业社区”的范式跃迁。

△ 改造后 摄影:许佳
完整项目信息
项目名称:智芯插件—杭实智造中心公共配套改造
项目类型:建筑改造
项目地点:浙江省杭州市余杭区
建成状态:建成
设计时间:2024年11月—2025年2月
建设时间:2025年1月—2025年4月
设计面积:3000平方米(园区配套中心、地下一层食堂、二层大台阶)
已实施面积:800平方米
业主:杭实集团
设计单位:ATAH 介景建筑
建筑施工图设计:上海中建+中国联合工程有限公司
园区整体规划建筑设计:中国联合工程有限公司
主创建筑师:徐光、王丹丹
设计团队完整名单:徐光、王丹丹、赵法中、冯磊、何凡、梁宙锋
规划:中国联合工程有限公司
建筑:上海中建+中国联合工程有限公司
结构:上海中建+中国联合工程有限公司
摄影师:许佳 / IAS STU
视频版权:ATAH 介景建筑













夜雨聆风

