当前位置:首页>文档>附图四第三工区、3#拌合站平面布置图_2021-2023年优秀施组方案_施工组织设计_乐夹大道市中区段及省道308线改线工程PPP项目施工组织设计_施组相关附图

附图四第三工区、3#拌合站平面布置图_2021-2023年优秀施组方案_施工组织设计_乐夹大道市中区段及省道308线改线工程PPP项目施工组织设计_施组相关附图

  • 2026-03-19 13:25:38 2026-01-31 13:06:34

文档预览

附图四第三工区、3#拌合站平面布置图_2021-2023年优秀施组方案_施工组织设计_乐夹大道市中区段及省道308线改线工程PPP项目施工组织设计_施组相关附图
附图四第三工区、3#拌合站平面布置图_2021-2023年优秀施组方案_施工组织设计_乐夹大道市中区段及省道308线改线工程PPP项目施工组织设计_施组相关附图

文档信息

文档格式
pdf
文档大小
0.308 MB
文档页数
1 页
上传时间
2026-01-31 13:06:34

文档内容

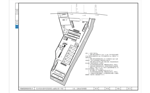
里 里 程 程 : : K3 K3 + + 220 中心线 160 15#墩 14#墩 13#墩 0061 男厕所 女厕所 女浴室 男浴室 F2 室公办及室验试 F2 舍宿 墙 挡 石 磅地 片 三级沉淀池二级沉淀池 蓄水池 6*7.5*3 向方料上 片石挡墙 96,378 20,061 96,378 25 已有钢筋加工 厂 钢筋加 工厂 油隔池 门卫室 堂食 化粪池 6*6*2 厨房 待招室 办公区及宿舍 1F 说明:1、本图尺寸单位为m。 2、本岷江临时占地面积16411.86m2;24.62亩,其中项目部占地面积 4016m2;搅拌站占地面积4848.36m2;劳务占地面积2848.5m2,钢筋加工厂占 地面积1280m2。 3、本岷江搅拌站四周围墙高度为2.3米,其中基础为0.5m高0.36m宽 砖砌结构,上部1.8m为彩钢板墙;围墙外砌30*30排水沟; 4、本岷江搅拌站全部采用15cm厚C25混凝土硬化,硬化前压路机压实 填土地基,场地中间高两边低,自然排水。 5、料仓采用轻型钢结构搭设顶棚,顶棚起拱线高度为8m,净宽10m。 6、本搅拌站借土回填到指定标高后,斜坡面采用浆砌片石施做挡墙。 7、钢筋加工厂平面尺寸25×48m,采用Φ10cm直径镀锌钢管立柱、钢 桁架及彩钢瓦等搭建,净高8m,净宽25m。 8、暂不设置龙门吊,在有需要时可加设10t龙门吊一台。 9、料仓采用轻型钢结构搭设顶棚,顶棚起拱线高度为6m,净宽10m。 10、水泥罐必须采用缆风绳固定,且水泥罐采用防尘装置,水泥罐设 置避雷针,接地可靠,接地电阻R不大于4Ω。 0069 晾衣区 排 水 坡 度 2料 骨 排 水 坡度 粗 2 石 排 水 坡 度 2料 骨 碎 排 水 坡 度 2料 骨 砂 排 水 坡度 2料 骨 砂 2*6*6 池粪化 排 水 坡 度 2料 骨 粗 细 所厕男 所厕女 室浴女 室浴男 F1 堂食及舍宿 F2 舍宿 6,1425 洗车槽 70,046 大门 便 道 1600,17 ● 35 41 2沉*淀3池*2 6* 3沉.淀7池5*2 点定固绳风缆 洗车区 4沉*淀2池*2 水沟 生活用水 蓄水池 6*5*2 23 生池活 6 区 * 蓄 6 水 *2