当前位置:首页>文档>附表12地下阶段临时用电平面布置图_2021-2023年优秀施组方案_施工组织设计_施组18-中国邮政储蓄银行合肥基地(三期)施工组织设计_1-施工组织设计

附表12地下阶段临时用电平面布置图_2021-2023年优秀施组方案_施工组织设计_施组18-中国邮政储蓄银行合肥基地(三期)施工组织设计_1-施工组织设计

  • 2026-04-08 11:00:52 2026-01-31 13:12:01

文档预览

附表12地下阶段临时用电平面布置图_2021-2023年优秀施组方案_施工组织设计_施组18-中国邮政储蓄银行合肥基地(三期)施工组织设计_1-施工组织设计
附表12地下阶段临时用电平面布置图_2021-2023年优秀施组方案_施工组织设计_施组18-中国邮政储蓄银行合肥基地(三期)施工组织设计_1-施工组织设计

文档信息

文档格式
pdf
文档大小
1.066 MB
文档页数
1 页
上传时间
2026-01-31 13:12:01

文档内容

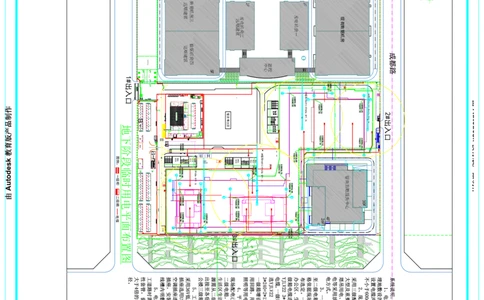
远期建筑 远期建筑 5F 远期建筑 发电机房二 2F 1F 1F 消防环道 消防扑救操作面 现有后勤服务中心 消防环道 消防环道 数据机房三 数据机房四 小广场 中心 监控 4F 发电机房一 2F 水井 消防环道 消防环道 消防环道 消防环道 55 11 消防扑救操作面 22 33 路藏西 1#出入口 4 回车场 4#塔吊TC6513 R=65m Q=1.3t 5F 3#出入口 3#塔吊H6513 R=65m Q=1.3t 26F 4F 现有数据机房 5F 30F 1#塔吊TC6210 R=62m Q=1.3t 门卫室 2#出入口 成都路 桩料基堆材放区 4 CI展示 CI展示 原材 钢筋 加工 钢筋 堆放 成品 钢筋 物库资房 原材 钢筋 加工 钢筋 堆放 成品 钢筋 卫生间 卫生间 2#塔吊TC6013 R=60m Q=1.3t 茶烟水室吸 材原 筋钢 卫生间 卫生间 分库包房 放堆 品成 筋钢 84900 11200 19700 1203 58000 54800 50000 51000 4036 4000 39000 地下阶段临时用电平面布置图 库房 机电质经量理 大会议室 综合办储藏室 工程部 机电部 舍宿舍宿舍宿舍宿舍宿舍宿舍宿舍宿舍宿舍宿 98500 17200 4500 卫生间 卫生间 4600 盥洗室 堂食大 间作操 厅餐小 地磅 地磅线路监理餐厅 室 会议 来待访室接 操案作板间 活 廉文动 洁化室 安全部 生产经理 库房备菜卫生间 橱衣 车位车位车位车位车位车位 图例: 一级柜 二级箱 电缆 安全帽柜 +0.500 项目认养绿地 +0.100 4m宽硬化道路 +0.500 项目认养绿地 +0.100 硬化道路 消泵防房 暂定堆土区 变压器 5m高品牌墙 6.5米品牌墙 6.5米品牌墙衣冠镜 安全体验区 显示屏 由 Autodesk 教育版产品制作 公示牌 作制品产版育教 ksedotuA 由 作制品产版育教 ksedotuA 由 由 Autodesk 教育版产品制作