文档
办公文件
生活文档
学习资料
当前位置:
首页
>
文档
>附表5地下结构施工阶段平面布置图_2021-2023年优秀施组方案_施工组织设计_施组18-中国邮政储蓄银行合肥基地(三期)施工组织设计_1-施工组织设计
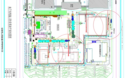
附表5地下结构施工阶段平面布置图_2021-2023年优秀施组方案_施工组织设计_施组18-中国邮政储蓄银行合肥基地(三期)施工组织设计_1-施工组织设计
2026-03-07 20:38:48
2026-01-31 14:04:27
文档预览
文档信息
文档格式
pdf
文档大小
1.340 MB
文档页数
1 页
上传时间
2026-01-31 14:04:27
下载文档
文档内容
由 Autodesk 教育版产品制作 作制品产版育教 ksedotuA 由 作制品产版育教 ksedotuA 由 由 Autodesk 教育版产品制作
本文档来自网络内容,如有侵犯您的权益请联系我们删除,联系邮箱:wyl860211@qq.com。
上一篇
2017年高考语文试卷(新课标Ⅱ卷)(空白卷)_语文历年高考真题_新·Word版2008-2025·高考语文真题_语文(按省份分类)2008-2025_2008-2025·(内蒙古)语文高考真题
下一篇
2017年高考语文试卷(新课标Ⅱ卷)(空白卷)_语文历年高考真题_新·Word版2008-2025·高考语文真题_语文(按省份分类)2008-2025_2008-2025·(吉林)语文高考真题
最新文档
专题01材料阐述类-3年(2022-2024)高考1年模拟语文真题分类汇编(全国通用)(解析版)_1.2025语文总复习_2025年新高考资料_专项复习
难点24动量观点在电磁感应中的应用——全攻略备战2023年高考物理一轮重难点复习(原卷版)_4.2025物理总复习_2023年新高复习资料_一轮复习
难点23电磁感应中的动力学和能量问题——全攻略备战2023年高考物理一轮重难点复习(解析版)_4.2025物理总复习_2023年新高复习资料_一轮复习
2017年江苏公务员考试《行测》真题(C类)_34省+国考真题_此文件夹为word版,不推荐使用_此word版为,不推荐使用_此word版为,不推荐使用_江苏行测+申论09-22
上海市虹口区2022-2023学年高三上学期第一次模拟考试英语试题(原卷版)_3.2025英语总复习_2023年新高考资料_3英语高考模拟题_新高考
第02讲《西游记》整本书阅读(练习)(原卷版)_02中考总复习(2026版更新中)_01-语文-中考总复习_2026年中考复习(更新中)_2026年中考语文一轮复习名著阅读
难点23电磁感应中的动力学和能量问题——全攻略备战2023年高考物理一轮重难点复习(原卷版)_4.2025物理总复习_2023年新高复习资料_一轮复习
2017年江苏公务员考试《行测》真题(C类)_34省+国考真题_34省考+国考pdf版推荐用这个版本_34省行测+申论真题pdf推荐用这个版本_江苏公务员考试真题pdf版_行测题目
难点22电磁感应中的电路及图像问题——全攻略备战2023年高考物理一轮重难点复习(解析版)_4.2025物理总复习_2023年新高复习资料_一轮复习
2017年江苏公务员考试《行测》真题(B类)参考答案及解析_34省+国考真题_34省考+国考pdf版推荐用这个版本_34省行测+申论真题pdf推荐用这个版本_江苏公务员考试真题pdf版
热门文档
第02讲《西游记》整本书阅读(清单)-上好课2026年中考语文一轮复习名著阅读(全国通用)_02中考总复习(2026版更新中)_01-语文-中考总复习_2026年中考复习(更新中)
第02讲《红岩》整本书阅读(讲义)-上好课2026年中考语文一轮复习名著阅读(全国通用)_02中考总复习(2026版更新中)_01-语文-中考总复习_2026年中考复习(更新中)
上海市杨浦区2022-2023学年高三上学期一模英语试题(原卷版)_3.2025英语总复习_2023年新高考资料_3英语高考模拟题_新高考_2023届上海市杨浦区高三上学期一模英语
难点22电磁感应中的电路及图像问题——全攻略备战2023年高考物理一轮重难点复习(原卷版)_4.2025物理总复习_2023年新高复习资料_一轮复习
2017年江苏公务员考试《行测》真题(B类)_34省+国考真题_此文件夹为word版,不推荐使用_此word版为,不推荐使用_此word版为,不推荐使用_江苏行测+申论09-22
第02讲《红岩》整本书阅读(清单)-上好课2026年中考语文一轮复习名著阅读(全国通用)_02中考总复习(2026版更新中)_01-语文-中考总复习_2026年中考复习(更新中)
难点21带电粒子在叠加场和交变电、磁场中的运动——全攻略备战2023年高考物理一轮重难点复习(解析版)_4.2025物理总复习_2023年新高复习资料_一轮复习
专题01材料阐述类-3年(2022-2024)高考1年模拟语文真题分类汇编(全国通用)(原卷版)_1.2025语文总复习_2025年新高考资料_专项复习
2017年江苏公务员考试《行测》真题(B类)_34省+国考真题_34省考+国考pdf版推荐用这个版本_34省行测+申论真题pdf推荐用这个版本_江苏公务员考试真题pdf版_行测题目
第02讲《林海雪原》整本书阅读(练习)(解析版)_02中考总复习(2026版更新中)_01-语文-中考总复习_2026年中考复习(更新中)_2026年中考语文一轮复习名著阅读
随机文档
难点21带电粒子在叠加场和交变电、磁场中的运动——全攻略备战2023年高考物理一轮重难点复习(原卷版)_4.2025物理总复习_2023年新高复习资料_一轮复习
2017年江苏公务员考试《行测》真题(A类)参考答案及解析_34省+国考真题_34省考+国考pdf版推荐用这个版本_34省行测+申论真题pdf推荐用这个版本_江苏公务员考试真题pdf版
难点20带电粒子在组合场中的运动——全攻略备战2023年高考物理一轮重难点复习(解析版)_4.2025物理总复习_2023年新高复习资料_一轮复习
专题01文言文断句(导学案)-2023年高考一轮复习之文言文通关宝典(新高考版)(1)_1.2025语文总复习_2023年新高考资料_一轮复习_2023年高考一轮复习之文言文(新高考版
第02讲《林海雪原》整本书阅读(练习)(原卷版)_02中考总复习(2026版更新中)_01-语文-中考总复习_2026年中考复习(更新中)_2026年中考语文一轮复习名著阅读
上海卷05(含听力)-2024年高考英语一轮复习测试卷(解析版)_3.2025英语总复习_2024年新高考资料_1.2024一轮复习_2024年高考英语一轮复习测试卷
2017年江苏公务员考试《行测》真题(A类)_34省+国考真题_此文件夹为word版,不推荐使用_此word版为,不推荐使用_此word版为,不推荐使用_江苏行测+申论09-22
第02讲 了解生物圈2025年中考生物学专题练习(含答案)_02中考总复习(2026版更新中)_08-生物-中考总复习_2025中考复习资料_2025年中考生物学专题练习(含答案)
难点20带电粒子在组合场中的运动——全攻略备战2023年高考物理一轮重难点复习(原卷版)_4.2025物理总复习_2023年新高复习资料_一轮复习
第01课时 实数2025年中考数学一轮专题复习强化练习(含答案)_02中考总复习(2026版更新中)_02-数学-中考总复习_2025中考复习资料_2025年中考数学一轮专题复习强化练习(含答案)