可打印| 小学1-6年级数学必背公式——面积篇,有图解,有例题!
本公众号学习资源丰富!
欢迎分享到班群、朋友圈、帮助更多孩子。
领取电子版请拉到文末
领取电子版请拉到文末
领取电子版请拉到文末
小编整理了小学1-6年级数学必背公式——面积篇,有图解,有例题!
1.长方形的面积=长×宽 用字母表示:S=ab 解答:S=8×3=24(cm2) 2.正方形的面积=边长×边长 用字母表示:S=a2 解答:S=5×5=25(cm2) 3.三角形的面积=底×高÷2 用字母表示:S=ah÷2 解答:S=8×6÷2=24(cm2) 4.平行四边形的面积=底×高 用字母表示:S=ah 解答:S=13×8=104(cm2) 5.梯形的面积=(上底+下底)×高÷2 用字母表示:S=(a+b)×h÷2 解答:S=(12+26)×10÷2=190(cm2) 6.圆的面积=圆周率×半径×半径 用字母表示:S=πr2 解答:S=πr2=3.14×36=113.04(cm2) 7.圆柱的面积 (1)圆柱的侧面积=底面周长×高 用字母表示:S=C×h=πdh=2πrh 解答:S=πdh=3.14×6×8=150.72(cm2) (2)圆柱的表面积=底面周长×高+2个圆的面积 用字母表示:S=Ch+2πr2 解答:S=Ch+2πr=3.14×6×8+2×3.14×9=207.24(cm2) 1、求图形的面积(单位:厘米)
梯形面积: 三角形面积:
(8+12)×8.5÷2 12×3÷2
= 20×8.5÷2 = 36÷2
= 170÷2 = 18(cm²)
= 85(cm²)
图形面积=梯形面积–三角形面积:85-18=67(cm²)
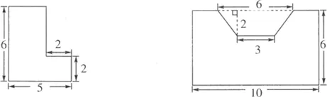
2、校园里有两块花圃(如图),你能计算出它们的面积吗?(单位:m)
①图形面积=长方形面积+ 正方形面积
②图形面积=长方形面积 – 梯形面积
6×(5-2)+ 2×2
= 6×3 + 4
= 18 + 4
= 22(m²)
10×6 –[(3+6)×2÷2 ]
= 60 -[ 9×2÷2 ]
= 60 – 9
= 51(m²)
3、下图直角梯形的面积是49平方分米,求阴影部分的面积。
直角梯形的高=直角三角形的高 (阴影部分面积)
角梯形的高 直角三角形面积
= 49÷(6+8)×2 = 6×7÷2
= 49÷14×2 = 42÷2
= 3.5×2 = 21(dm²)
= 7(dm²)
4、图中梯形中空白部分是直角三角形,它的面积是45平方厘米,求阴影部分面积。
直角梯形的高 梯形面积
=直角三角形的高 =(5+12)×7.5÷2
= 45÷12×2 = 17×7.5÷2
= 3.75×2 = 127.5÷2
= 7.5(cm²) = 63.75(cm²)
阴影部分面积=梯形面积–空白部分面积:
63.75 – 45 = 18.75(cm²)
下载完整版方式 ▲长按识别关注 知晓荟
在公众号对话框
发送消息:8001
即可领取电子版打印
免责申明:本素材及图片来源于网络,仅供学习者免费使用,版权归原作者所有,如有侵权请联系删除!
夜雨聆风















