

Ti的桥架弯头制作与计算图书主要包含水平弯头,上下爬坡弯头,90度死角弯头,90度垂直弯头 ,两个四十五度组成的90度弯头,。三通弯头,大小头。各种度数!包教包会!
非常多得人加到我们。但是都是想着免费!聪明人都知道天下哪有免费的午餐!
当你还在观望的时候,人家已经在学习了
当你还在观望,人家已经慢慢熟练出师了
当你还在观望时,人家已经有机遇在小包了
当你还是在观望时,人家已经有了自己的团队了
学员群已经更新了90集短视频!还有正在更新第八章视频教程!!


下面介绍新版本水电识图安装教程目录

教程主要包含视频,规范图集电子书,CAD软件以及图例大全CAD版!购买U盘版本五星好评,再送35G视频资料!!售后服务群资源还在不断更新!
U盘价位:298(含水电视频和桥架视频不含图书)
桥架制作图书版:199(桥架视频桥架图书桥架U盘视频)
水电识图+桥架图书版:398 (桥架图书桥架视频水电识图教程)
欢迎你来到此!这里详细带领你了解《Ti水电识图安装教程》首先要了解到的是:本套视频全是高清视频,包含视频,资料!电工软件,CAD图纸图例!另外赠送VIP资源35G以上和学员群免费更新
购买过后可以进入学员售后服务群永久免费更新资料。

工资不高吧!天天有被叼吗?学不到东西吗?还在混日子吗??每天都累死累活羡慕别人工资高吗?感觉学习不到东西吗?来吧!这套教程来了!水电行业首套水电施工视频教程全套。你做过安装,没做过预埋?做过预埋?没做过安装?不懂电路原理图?来吧!


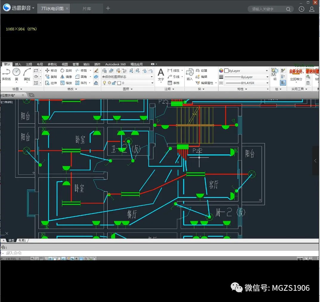
这幅是现场施工同层排水图!实际有一个非常明显的错误!大家看出来了吗?有人来回答吗?下图给大家解答


而上面那个同层排水最明显的错误就是同层排水放了带检查口的存水弯!那教程中有没有详细的介绍施工规范和施工注意事项呢!答案是肯定有的!那套视频详细地介绍了看图中结合现场图!详细的教大家学会看图施工!施工规范!每个图中的小标识都讲得明明白白!让大家学会看图纸!看图纸施工!不要以为图中的标出来的东西没有!其实每个都有它表达的用处!而视频教程就带领大家从预埋到安装!让你不必
在工地上混日子!学了几年才学到个皮毛!工资永远都是那么低!匆匆几年!青春浪费!
<Ti 水电识图安装教程 >视频目录
第一章 :认识图纸介绍
第二章:2.1 图纸图例与设计说明
2.2 图纸图例
第三章电气识图篇
3.1 简单认识施工工具
3.2 电气照明平面图识图
3.3 看图纸预埋定位放管
3.4 电气系统图识图
3.5 看图放线(平面图结合系统图放线)
3.6 看图放线 2(平面图结合系统图放线)
3.7 看图放线 2(平面图结合系统图放线)
3.8 二次预埋 看图纸安装插座,配电箱。(看图纸知道开槽高度,安装盒子高度)
3.9 家装二次配管 3D 立体讲解(没有前期预埋的情况下)
3.20 双联双控如何放线?
3.21:总配电箱识图 1
3.21:总配电箱识图 2
3.22:电气图纸总结
3.23:如何计算电流量 1
3.23:如何计算电线安全载流量,如何选择电线 2
第四章 防雷等电位篇章
4.1 简单认识一下防雷术语(如引下线,接闪器)
4.2 等电位联结端子箱
4.3:防雷图纸识图,以及防雷原理
4.4 卫生间局部等电位安装
第五章弱电图识图
5.1 弱电平面图识图
5.2:弱电系统图识图
第六章给排水识图安装
6.1 :认识给排水施工(排水分同层排水和隔层排水)
6.2 :给排水设计说明与给排水平面图 1
6.2 :给排水设计说明与给排水平面图 2
6.3:给排水系统图与厕所大样图识图 1
6.3:给排水系统图与厕所大样图识图 2
6.4:厨房给排水与厨房大样图识图
6.5:给排水零件认识
6.6:卫生间沉箱安装
6.7 图纸结合现场布管
6.8 给水热水循环系统
6.9 给水安装尺寸与给水施压
6.10 给排水一层平面图识图 1
6.10 给排水一层平面图识图 2
第七章 装饰公司如何接单?
7.1 利用自媒体自身推广接单
7.2 注册自媒体教程 (也可以通过自媒体赚钱)
3D 立体图桥架弯头制作目录
1:认识桥架,认识度数,施工工具
2:上坡弯头制作以及计算公式!
3:下坡弯头制作以及计算公
4:上下爬坡弯头计算爬高距离
5:水平弯头制作以及计算公式
6:水平弯头水平距离的计算
7:两个四十五度组成 90 度水平弯头制作
8:两个四十五度组成 90 度垂直弯头的制作
9:大小头变径制作
10:90 度死弯头成品弯头制作
11:三通弯头的制作及计算公式
12:现场切割上下爬坡弯头
更新篇章在群里看!
排水管精确计算 2 节课
多层桥架弯头制作与计算 2 节课
漏斗弯头的做法第二种 1 节课!
90 度变径弯头制作 1 节课
水电图纸系统图讲解实例 1 节课
照明公共配电箱与平面图识图 1 节课
90 度垂直弯头制作与计算
家装系列视频教程一套!还有赠送 VIP 资源 35G 和一些规范文档!
部分视频截图






















教程好评截图!好评不断!










视频教程截图!!










U盘版本微店购买 识别二维码进入

往期精彩
夜雨聆风