


新铺设的地板依据原有木板不规则的宽度进行铺排,创造出一个新旧交错、连绵不断的界面。门槛和通风口被处理成细线,将视觉重点留给裸露的结构和屋架下的空间韵律。
感谢 OFFICE INAINN 对gooood的分享
原有建筑外壳得以保留;一个轻质内核承载了餐厅的功能。该内核被构想为一个完全由木材建造的独立模块,虽不追求在现场直接实现可逆性,但设计上考虑未来可在不损害历史外壳的前提下进行拆卸。服务空间、仓储和后厨区域都被整合进这个内核中,从而保持了跨度的清晰和屋架的可读性。


▲项目鸟瞰© Mathias Sæther


▲周边环境© Mathias Sæther


▲建筑外观© Mathias Sæther


▲外观细部© Mathias Sæther
仅添加必要之物
景观中的建筑轮廓未变。开口经过精确校准而非扩大;新建部分作为一个次要层次呈现,采用了干作业的、不显眼的固定方式。所有新建部分均为木结构。

▲爆炸图© OFFICE INN

▲用餐区© Mathias Sæther

▲木墙© Mathias Sæther


▲通往露台的门© Mathias Sæther

▲露台风景© Mathias Sæther
细节与延续性
新铺设的地板依据原有木板不规则的宽度进行铺排,创造出一个新旧交错、连绵不断的界面。门槛和通风口被处理成细线,将视觉重点留给裸露的结构和屋架下的空间韵律。


▲包厢© Mathias Sæther


▲餐桌细部© Mathias Sæther
经济的手段
对现有结构的再利用降低了隐含碳排放;可拆卸的内核、有限的湿作业以及分阶段施工,在保持建筑特质的同时,也使维护工作与当地的能力相适应。


▲结构图© Mathias Sæther


▲细节© Mathias Sæther
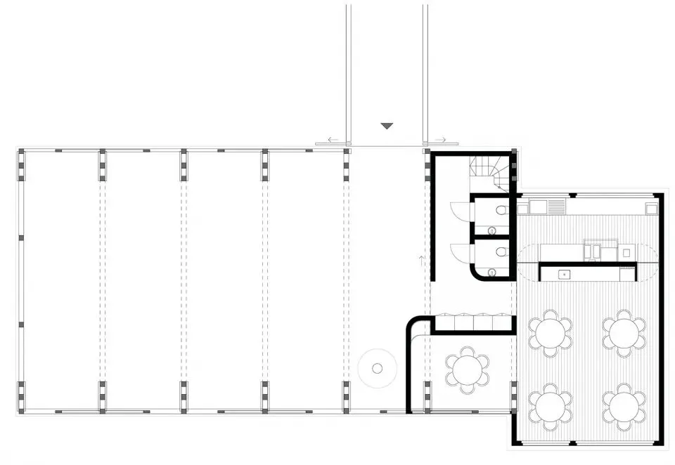
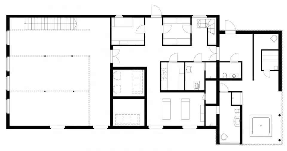
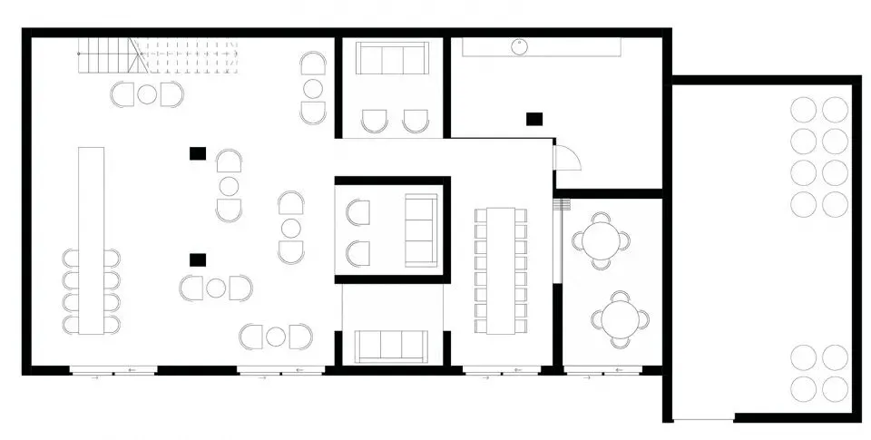
项目图纸

▲场地图© OFFICE INAINN



▲平面图© OFFICE INAINN
Key Project Details:





夜雨聆风