当前位置:首页>文档>附图18--1、3、7、10#楼西侧消防连廊支撑体系安装平面图_2021-2023年优秀施组方案_施工方案_方案35-航企二期项目高空连廊模板支撑架专项施工方案_1.正文_附图

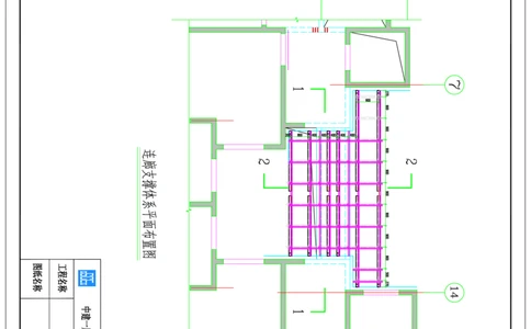
附图18--1、3、7、10#楼西侧消防连廊支撑体系安装平面图_2021-2023年优秀施组方案_施工方案_方案35-航企二期项目高空连廊模板支撑架专项施工方案_1.正文_附图

  • 2026-04-03 13:37:05 2026-01-31 10:06:07

文档预览

附图18--1、3、7、10#楼西侧消防连廊支撑体系安装平面图_2021-2023年优秀施组方案_施工方案_方案35-航企二期项目高空连廊模板支撑架专项施工方案_1.正文_附图
附图18--1、3、7、10#楼西侧消防连廊支撑体系安装平面图_2021-2023年优秀施组方案_施工方案_方案35-航企二期项目高空连廊模板支撑架专项施工方案_1.正文_附图

文档信息

文档格式
pdf
文档大小
0.039 MB
文档页数
1 页
上传时间
2026-01-31 10:06:07