文档
办公文件
生活文档
学习资料
当前位置:
首页
>
文档
>附图2(防护设计图)_2021-2023年优秀施组方案_施工组织设计_施组11-新余环城路项目施工组织设计_附图
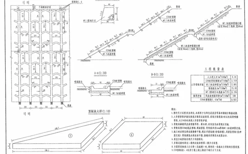
附图2(防护设计图)_2021-2023年优秀施组方案_施工组织设计_施组11-新余环城路项目施工组织设计_附图
2026-03-21 06:12:34
2026-01-31 10:41:36
文档预览
文档信息
文档格式
pdf
文档大小
17.374 MB
文档页数
9 页
上传时间
2026-01-31 10:41:36
下载文档
本文档来自网络内容,如有侵犯您的权益请联系我们删除,联系邮箱:wyl860211@qq.com。
上一篇
第八单元单元分析_一年级语文下册(统编版)_老课标资料_一年级下册全套课件资料_8.第八单元_单元导引
下一篇
第八单元字词专项练-语文一年级下册统编版·2024_一年级语文下册(统编版)_古诗词默写_2025版
最新文档
第三章章末检测-练习-2020-2021学年下学期高二化学同步精品课堂(新教材人教版选择性必修2)(原卷版)_高化_2025春-人教版高中化学_04新版高中化学选择性必修2_04课件+教案+学案+习题_习题
06-人与社会(四)—科学与技术(B卷)(解析版)_02中考总复习(2026版更新中)_03-英语-中考总复习_2024年中考复习资料_三轮复习_2024年中考英语新课标话题考前冲刺题型综合突破
第三章章末归纳总结(解析版)_高化_595801221724高中化学新人教版选择性必修一二三电子版教案PPT课件高中试卷_选择性必修1册(人教版)_专项练习
04+七年级上册1-3单元古诗文默写强化训练-2025年中考语文古诗文默写背诵与强化训练_02中考总复习(2026版更新中)_01-语文-中考总复习_2025年中考资料_中考文言文专项
03_13.2026考研专业课法硕高端班!_01.2026考研法硕华研法硕全程班!_15.冲刺阶段课程
初中化学第四单元自然界的水单元测试题及答案_初中化学_01.人教版初中化学_01.初中化学课件PPT--教案--试题_初中化学—课件—教案—试题-推荐_9年级上课件教案试题_9年级上试题
03.任务型阅读理解及短文还原等(原解析版)-2024年中考一轮复习英语语篇解读能力考查梳理与巩固_02中考总复习(2026版更新中)_03-英语-中考总复习_2024年中考复习资料_一轮复习
初中化学第四单元自然界的水单元测试及答案_初中化学_01.人教版初中化学_01.初中化学课件PPT--教案--试题_初中化学—课件—教案—试题-推荐_9年级上课件教案试题_9年级上试题
第三章章末归纳总结(原卷版)_高化_595801221724高中化学新人教版选择性必修一二三电子版教案PPT课件高中试卷_选择性必修1册(人教版)_专项练习
初中化学第十单元酸和碱教学设计_初中化学_01.人教版初中化学_01.初中化学课件PPT--教案--试题_初中化学—课件—教案—试题-推荐_9年级下课件教案试题_9年级下教案_第10单元
热门文档
初中化学第三章物质构成的奥秘练习题(含答案)_初中化学_01.人教版初中化学_01.初中化学课件PPT--教案--试题_初中化学—课件—教案—试题-推荐_9年级上课件教案试题_9年级上试题
初中化学知识点总结(大全)_初中化学_01.人教版初中化学_01.初中化学课件PPT--教案--试题_初中化学全套(课件--教案--配套)_18年初中化学9年级上_18秋九化上(RJ)--7.复习资料_2.知识集锦
03.任务型阅读理解及短文还原等(原卷版)-2024年中考一轮复习英语语篇解读能力考查梳理与巩固_02中考总复习(2026版更新中)_03-英语-中考总复习_2024年中考复习资料_一轮复习
第三章烃的衍生物(单元知识清单)-(人教版2019选择性必修3)_高化_595801221724高中化学新人教版选择性必修一二三电子版教案PPT课件高中试卷_选择性必修3册(人教版)_知识清单
03-人与社会(一)—社会服务与人际沟通(B卷)(原卷版)_02中考总复习(2026版更新中)_03-英语-中考总复习_2024年中考复习资料_三轮复习_2024年中考英语新课标话题考前冲刺题型综合突破
03-人与社会(一)—社会服务与人际沟通(A卷)(解析版)_02中考总复习(2026版更新中)_03-英语-中考总复习_2024年中考复习资料_三轮复习_2024年中考英语新课标话题考前冲刺题型综合突破
03-人与社会(一)—社会服务与人际沟通(A卷)(原卷版)_02中考总复习(2026版更新中)_03-英语-中考总复习_2024年中考复习资料_三轮复习_2024年中考英语新课标话题考前冲刺题型综合突破
初中化学方程式计算题题型汇总_初中化学_01.人教版初中化学_01.初中化学课件PPT--教案--试题_初中化学—课件—教案—试题-推荐_9年级上课件教案试题_9年级上试题_第5单元
03+形容词用作名词-备战2025年中考语文文言文词法与句式考点精讲与集训_02中考总复习(2026版更新中)_01-语文-中考总复习_2025年中考资料_中考文言文专项
初中化学方程式、计算题专题练习题(含答案)_初中化学_01.人教版初中化学_01.初中化学课件PPT--教案--试题_初中化学—课件—教案—试题-推荐_9年级上课件教案试题_9年级上试题
随机文档
初中化学推断题思路_初中化学_01.人教版初中化学_10.初中化学知识点_初中最全化学知识点归纳总结_化学知识点
第三章烃的衍生物(单元测试)(解析版)_高化_595801221724高中化学新人教版选择性必修一二三电子版教案PPT课件高中试卷_选择性必修3册(人教版)_单元测试
02霹雳舞、世界上最高的雪糕棒塔、西班牙“最丑番茄”(解析版)_02中考总复习(2026版更新中)_03-英语-中考总复习_2024年中考复习资料_专项复习资料_答案解析版
初中化学手册_初中化学_01.人教版初中化学_09.初中化学CES学习方法
02世界地理(一)(原卷版)_02中考总复习(2026版更新中)_09-地理-中考总复习_2024年中考复习资料_一轮复习_2024年中考一轮收官卷
02七下历史知识清单-口袋书2024年中考历史一轮复习知识清单_02中考总复习(2026版更新中)_06-历史-中考总复习_2024年中考复习资料_一轮复习
第三章烃的衍生物(单元测试)(原卷版)_高化_595801221724高中化学新人教版选择性必修一二三电子版教案PPT课件高中试卷_选择性必修3册(人教版)_单元测试
第三章烃的衍生物速记清单-(人教版2019选择性必修3)(教师版)_高化_595801221724高中化学新人教版选择性必修一二三电子版教案PPT课件高中试卷_选择性必修3册(人教版)_知识清单
02.题型策略-推理判断题(解析版)_02中考总复习(2026版更新中)_03-英语-中考总复习_2025中考复习资料_2025年中考英语一轮复习阅读理解精讲精练(通用版)
02.题型策略-推理判断题(原卷版)_02中考总复习(2026版更新中)_03-英语-中考总复习_2025中考复习资料_2025年中考英语一轮复习阅读理解精讲精练(通用版)