可下载!新国标GB13495.3-2026发布,2026年8月1日实施!附修订内容
GB 13495.3-2026《消防安全标志 第 3 部分:设置要求》,2026年3月正式发布,2026年8月1日实施,全面替代实施 31 年的旧版 GB 15630-1995,是消防安全标志设置、运维、监管检查的最新法定依据。
本次修订后的标准主要技术内容包括消防安全标志的设置场所、设置部位、设置要求、安装方式、标志牌的安装、标志的排列及运行维护。
1、设置场所
更改了消防安全标志的设置场所(见第 4 章,GB 15630—1995 的第 4 章)。删除了对 GB J16《建筑设计防火规范》(已废止)和 GB J45《高层民用建筑设计防火规范》(已废止)的引用,并结合现行国家标准 GB 55037—2022《建筑防火通用规范》中关于疏散指示标志设置的相关要求,确定了消防安全标志设置场所包括 “公共建筑,住宅建筑,工业建筑,汽车库、修车库,地铁工程中的车站、换乘通道或连接通道、车辆基地、地下区间内的纵向疏散平台,平时使用的人民防空工程,地下人行通道,综合管廊”。结合新技术、新产业、新业态、新模式的发展需要,将 “加油站” 修改为 “汽车加油加气加氢站”,增加了 “可燃液体、可燃气体、助燃气体的生产、储存区”“可燃材料堆场”“建筑施工现场”“易燃易爆物品运输工具”。
2、设置部位
将 “设置原则” 更改为 “设置部位”(见第 5 章,GB 15630—1995 的第 5 章)。为促进不同场所更加方便地使用本标准,优化了条款体例结构,将 GB 15630 中 “某某消防安全标志应该设置在哪些场所的哪些部位” 的叙述方式更改为 “某某场所的哪些部位应设置哪些标志”。结合火灾防控和灭火救援现实需要,进一步明确了 “地下消火栓”“水泵接合器” 标志的设置部位,增加了消防车登高操作场地应设置 “禁止阻塞” 标志的要求。对照 “设置场所” 中新增的场所,相应增加了各场所相关部位消防安全标志设置。
3、设置要求
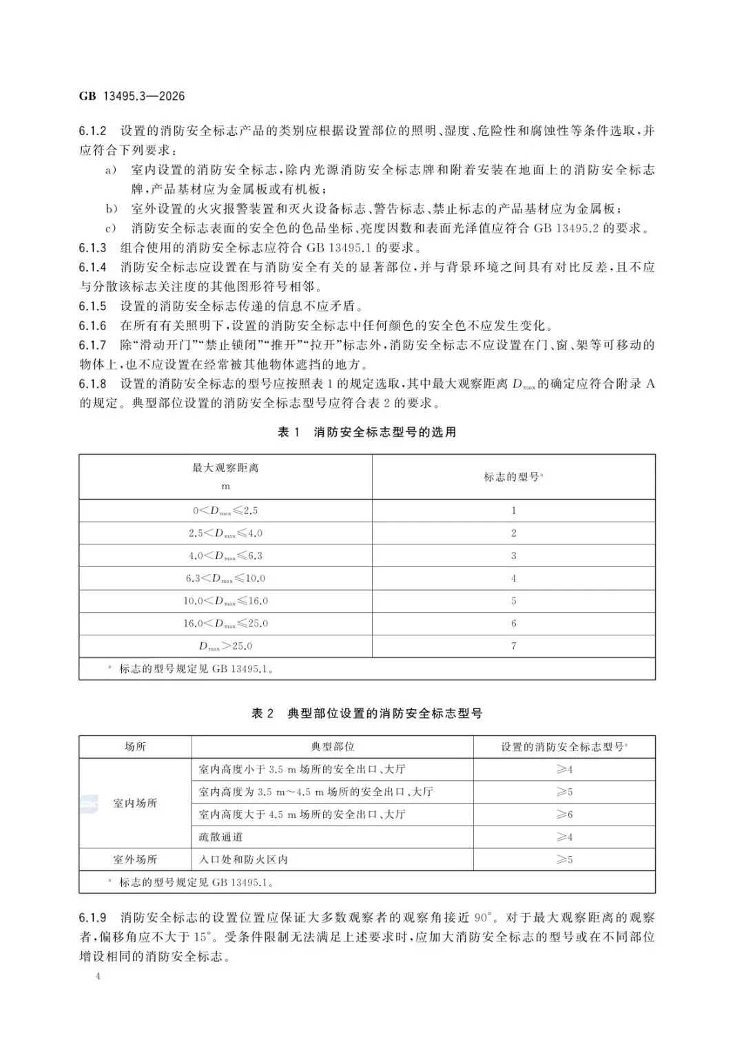
将条款进行了优化归类,分为 “一般要求”、“室内的消防安全标志设置要求” 和 “室外的消防安全标志设置要求”,以促进本标准在不同类型场所的使用(见 6 章,GB 15630—1995 的第 6 章)。删除了消防安全标志牌的制作材料要求、内部照明和自发光消防安全标志的产品要求(见 GB 15630—1995 的 6.9、6.10.4.2、6.10.4.3),这些要求在国家标准 GB 13495.2《消防安全标志 第 2 部分:产品通用要求》作了具体规定,本标准增加对 GB 13495.2 的引用。为了保障设置的消防安全标志发挥其应有的作用,规定了典型部位设置的消防安全标志的最小尺寸,并增加了保持标志视觉连续性的技术要求。
4、标志牌的安装
将 “设置方法” 拆分为 “标志牌的安装” 和 “标志的排列” 两章(见第 7 章、第 8 章,GB 15630—1995 的第 7 章),相关技术内容分开规定,体例结构更加清晰。删除了柱式安装方法参考图,提出了采用柱式安装时应满足的基本要求,以丰富不同场所、环境下柱式安装的适用性。
5、标志的排列
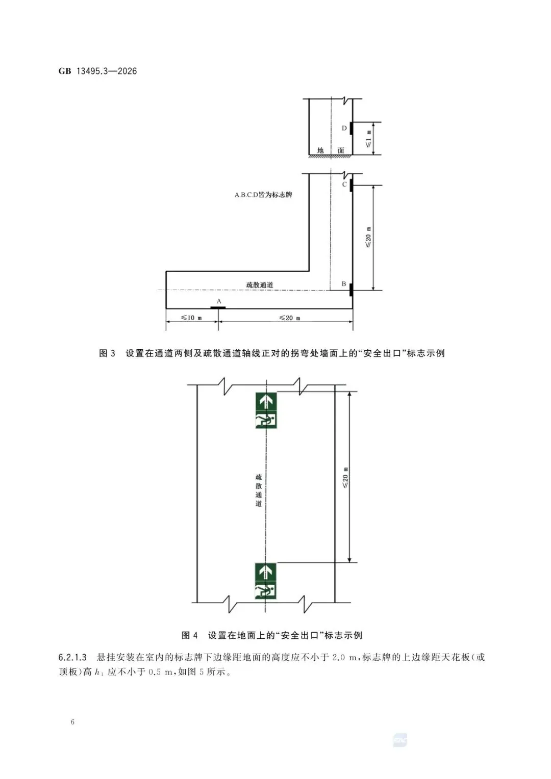
将条款进行了优化归类。修订了相关示例图,采用具体的消防安全标志取代线框图,示例效果更加明了。
6、运行维护
将 “检查与维修” 更改为 “运行维护”(见第 9 章,GB 15630—1995 的第 8 章)。结合国家标准 GB/T 40248—2021《人员密集场所消防安全管理》等关于 “防火巡查、检查”“安全疏散设施管理” 相关要求,对消防安全标志的检查、检测、修复、更换作了修订。
7、其他
结合本次技术内容和相关表述的修订,删除了术语 “观察角”“偏移距离”“偏移角” 及其定义,在术语 “观察距离” 的示意图中增加了标引序号说明,包含了 “观察角”“偏移距离”“偏移角”。
本次修订为全面升级,解决了旧版标准实施 31 年的规则模糊、要求滞后的问题,核心变化如下:
|
|
|
|
|---|---|---|
| 标准属性 |
|
|
| 适用场景 |
|
|
| 产品选型要求 |
|
|
| 安装规则 |
|
|
| 标志排列规则 |
|
|
| 运维要求 |
|
|
本标准为全文强制,核心红线条款如下,企业必须严格执行:
|
|
|
|
|---|---|---|
| 产品选型强制 |
|
|
| 疏散门标志强制 |
|
|
| 室内安装强制 |
|
|
| 室外安装强制 |
|
|
| 标志性能强制 |
|
|
| 标志排列强制 |
|
|
| 运维强制 |
|
|





















夜雨聆风