在商业办公装修场景中,传统设计软件存在绘图效率低、人工算量误差大、成本管控难、跨专业协同不畅、形成数据孤岛等痛点,这些痛点不仅拉长了决策链条,更直接制约了招商速度与最终交付质量。
问题的根源,往往在于流程和工具的割裂,缺乏一个能贯穿始终的“数字主线”
万翼自研的国产智能BIM设计平台——斗拱,以数据驱动和AI智能为核心的能力,正好能解决这一问题。
经过多个办公商业项目试跑,我们以斗拱为底层,打造【装修算量成本一体化AI解决方案】,本方案以 AI 智能建模、自动算量、一键出图、在线协同为核心,重构从设计、出图、算量、成本核算到监管审批的全流程,实现真正意义上的AI 赋能、高效提质、精准控本、全程可追溯。
一、AI解决方案,重构设计&算量全周期
传统模式 VS 装修算量成本一体化AI解决方案:7个维度全面升级

二、AI解决方案核心能力:智能设计标准化 + 一键自动出图
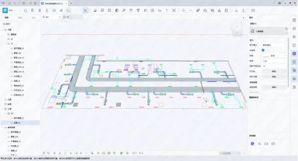
AI 智能设计与标准化
系统以参数化设计为底层能力,增加AI智能出图、智能标注、智能渲染等相关能力,支持平面 /立面 / 剖面 / 3D 视图一键切换,可智能配置显示模式、线型、线宽、可见性、图层样式,支持底图链接与D5渲染。
覆盖墙、梁、板、柱、家具、吊顶、地板、插座&开关定位、天花灯具等全量构件,具备完善构件库,并支持智能化快速放置构件和智能化调整构件,操作极简。



2.AI一键出图
基于3D模型自动生成专业平立剖图纸,支持图层、图框、轴线 / 轴号、视图裁剪等专业设置,具备AI自动尺寸标注。用户仅需对少量立面细节、标注进行简单补充,即可直接导出符合施工交付规范的整套图纸;设计周期从7-10天压缩至3天。
三、一键算量与成本控本:真实项目验证显著降本
系统具备一键算量功能,可快速、精准获取项目完整算量报价清单,拒绝猫腻,得出最精准报价。
以上海某办公装修项目试跑数据验证:AI解决方案进行建模和算量核算后,系统计算成本结果,较施工单位报价下降约10万元,降幅18.77%;较成本咨询价格下降约5万元,降幅9.6%。
依托AI 智能算量引擎,内置专业工程计量规则,从源头替代人工核算,彻底避免人为误差、漏算错算,实现成本精准管控、材料零浪费。
四、在线协同:全流程监管与审批数字化
打通供应商、甲方、施工方多方协作链路,全程在线化管控,具体流程如下图所示:

五、AI引领商业装修数字化新范式
斗拱装修算量成本一体化AI解决方案,以人工智能驱动设计生成、算量成本与项目协同,形成一套可闭环的智能解决方案,实现效率提升:
3D 可视化展示,加速租户决策
AI一键出图、自动算量,效率提升50%,释放设计师创造力;
招商与装修并行,缩短空置周期,提升资产运营效率
数据同源、实时联动,成本变动实时可知,综合成本优化最高达20%;
全流程在线协同,设计、成本、工程、招商在线协作,信息无损传递;
斗拱以一条贯穿始终的数字主线,连接起设计、算量、成本与协同,实现装修全流程的数字化、智能化与透明化。我们不仅提供工具,更交付结果——助力楼宇快速招商、项目高效交付、资产持续增值。

了解更多万翼斗拱产品



夜雨聆风