
加入安防付费群对接优质客户
内容来源:资源整合
点击👇下方卡片关注后
回复“资料”免费获取弱电资料大全
回复“通讯录”加入安防万人群友通讯录
▲关注建筑智能化生态圈,获取全国最新建筑政策
点击关注公众号入6000人安防群

1、资源介绍
我们只有不断输入,才能不至于“感觉身体日日被掏空”。观察和实践是输入的主要方式之一,当然,输入的另一个主要途径就是阅读与参照,举一反三。
那么接下来给大家详细的介绍下,这样方便到你选取适合你的资料进行学习。
以上资料全部免费送! 获取完整版方案请到文未下载!
只有知道客户的需求,你才知道你的下一步该如何做
每天为大家分享一篇解决方案
下载提示
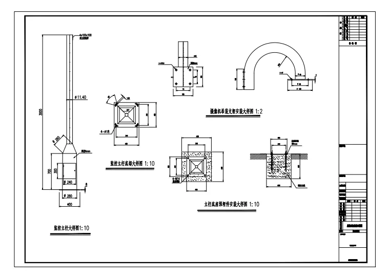
本文分享的是监控立杆大样图。内容来自互联网公开平台,版权归原作者所有,仅供学习参考。
以下为方案部分截图,关注【建筑智能化生态圈】公众号,后台对话框回复【方案获取】即可获取完整版下载方式
建筑智能化生态圈13群已经建立,欢迎大家进群后讨论技术问题,设计方案,投标、施工,工程合作,产品对接等方面,都可以。其中群里大部分人员都是工程商,施工分包商,设计院设计师,公司老板,技术总监、厂家、甲方等。入群入口
监控立杆大样图想要原图可下载

如果您想要监控立杆大样图原文件在
(公众号内回复:【方案获取】即可下载)
方案目录 |
完整方案获取
请关注公众号后回复:方案获取
本文留言区留言无效

2、获取方式
素材包由小二哥个人完成整理、收集过程繁琐枯燥,整理不易希望大家点一点文末在看然后分享到朋友圈是对小二哥最大的肯定。朋友圈看到您分享的资料会感激您的。
| 下载步骤 |
| ① 长按文末二维码“识别”,或关注、建筑智能化生态圈公众号。 ② 在公众号对话框输入:【方案获取】即可获得资料下载链接。 ③回复关键字是在关注公众号后菜单栏回复,不是在本文章底部留言。 如果不会请看下面演示图 |

(微信搜索:建筑智能化生态圈|回复数字:方案获取)
或直接点击↓下面关注
点击关注公众号入3000人安防群

3、往期必读
你能看到小二哥这段文字,小二哥由衷的感谢你对建筑智能化生态圈公众号的支持。小二哥会更加努力的将更多的优质内容免费分享给大家,希望能都帮助到你!
4、福利放送
还有很多方案不再介绍,资料已经上传微信公众号、微信群、QQ群最近建筑智能化生态社群资料更新情况:
4、(免费领取)非常全面的小区智能化系统图纸,大家在做小区项目时可以参考
8、一套完整的医院智能化弱电设计方案,智慧校园项目设计方案(附下载)
12、智慧校园,某中学弱电智能化信息化系统设计方案(230页附下载)
未完待续、还请持续关注公众号
▌6000人安防交流群
建筑智能化生态圈建立至今,已有6000多位同行进群。目前建立了12个群每群达到400人以上、(群内严禁广告!),成为业务交流和技术交流的优质圈子,如果你不仅希望获得优质资料,还渴望与同行交流,我相信进入本群不会让你失望。入群请添加小编微信号:zhixiangbang01,并注明「入群」。或者点击文尾阅读原文查看入群流程。
建筑智能化生态圈安防交流群
热文回顾
● 学会这11个投标报价技巧,中标与多赚钱亦可兼得!
● 100份弱电智能人必看的常用资料(免费打包下载)
● 加入建筑智能化群聊,工程问题,项目合作,弱电资料都在这里
● 数据中心机房规划与建设关键技术【入门学习材料422页】附下载
你想不想在这里展示您的项目让更多人看到,如果想请联系小编


👇点击 “阅读原文” 免费加入安防无广告群
夜雨聆风