点击上方↑「老王和你聊电气」关注我吧
(文末提供cad下载)
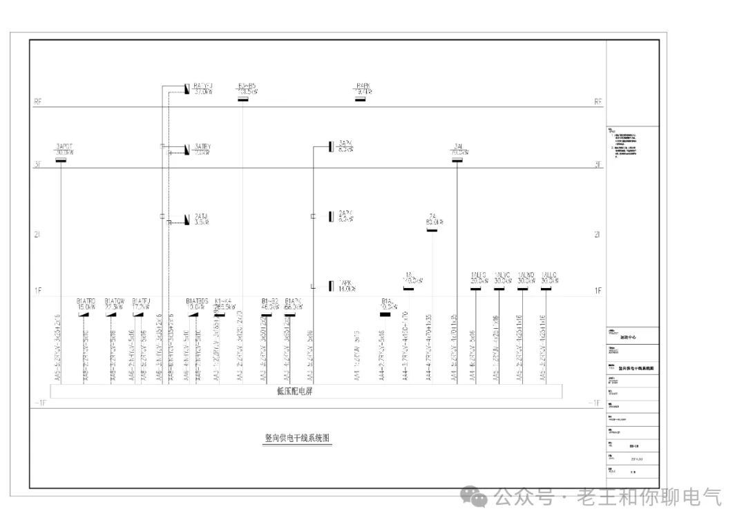
1、本工程是运动中心项目,总建筑面积约7687.21平方米,为一栋地下局部一层,地上三层的公共建筑,建筑高度为21.60米;建筑耐火等级为一级,结构类型为混凝土框架结构。
2、本工程负荷等级为:计算机/电信系统电源、消防用电设备(消防控制室、消防水泵、排烟风机等)、安全防范系统、应急照明等用电为二级负荷;其它为三级负荷。
3、设计亮点:本项目为二次机电配合精装施工图,图纸综合考虑了运营方的要求,项目规模不大,类似项目较为普遍,具有极高的参考意义。









2.下载链接:
https://pan.quark.cn/s/8ad19854409a
夜雨聆风