最近,老家邻居、亲戚的来电忽然多了起来。聊的内容出奇一致——都在张罗自建房,说是“乡村别墅”也不为过。起因,还得从我自家那栋房子落成讲起。
去年,我家的新房终于完工。说实话,从设计到施工,我全程把控:图纸我自己设计自己绘制,改了又改,施工队谈了不小五家,最后才定下现在这支队伍——云墅曹老板。房子建好后,听我爸说来参观的人络绎不绝——有本村的邻居,也有隔壁村的熟人。大家看了一圈,对布局设计和施工效果都赞不绝口。有人说客厅敞亮,有人说卫生间位置合理,还有人说外墙配色看着舒服。我心里当然高兴,但也没太当回事。
没想到,“参观热”很快变成了“动工潮”。先是同村三家跟着建,接着隔壁村也动了工——无一例外,全找的是给我家施工的那支队伍。这支队伍原本在我们乡镇默默无闻,这下算是一炮走红。到现在,已建和在建的项目不下十家了。老曹每次见我都笑呵呵地说:“你是我们的贵人啊。”
随着找我帮忙的人越来越多,我也就重新捡起了老本行。有人让我看看布局,有人让我评估施工图纸,还有人干脆说:“你就照着你们家那样的,按照我的宅基地尺寸给我也来一套。”
于是,我默默在电脑上重新安装了CAD和天正软件。要知道,自从去年老家自建房落成以后,我就把这些软件全卸载了。更主要的原因是,我已经从地产、建筑行业“毕业”一年有余了。当初离开时,心里暗暗想过:这辈子大概不会再碰图纸了吧。
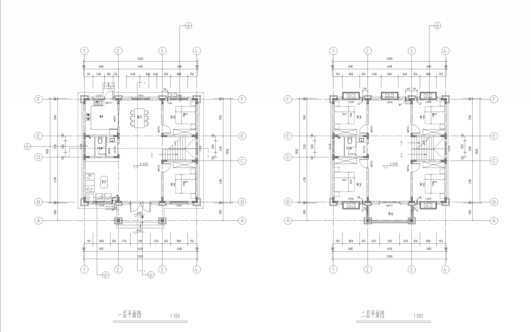
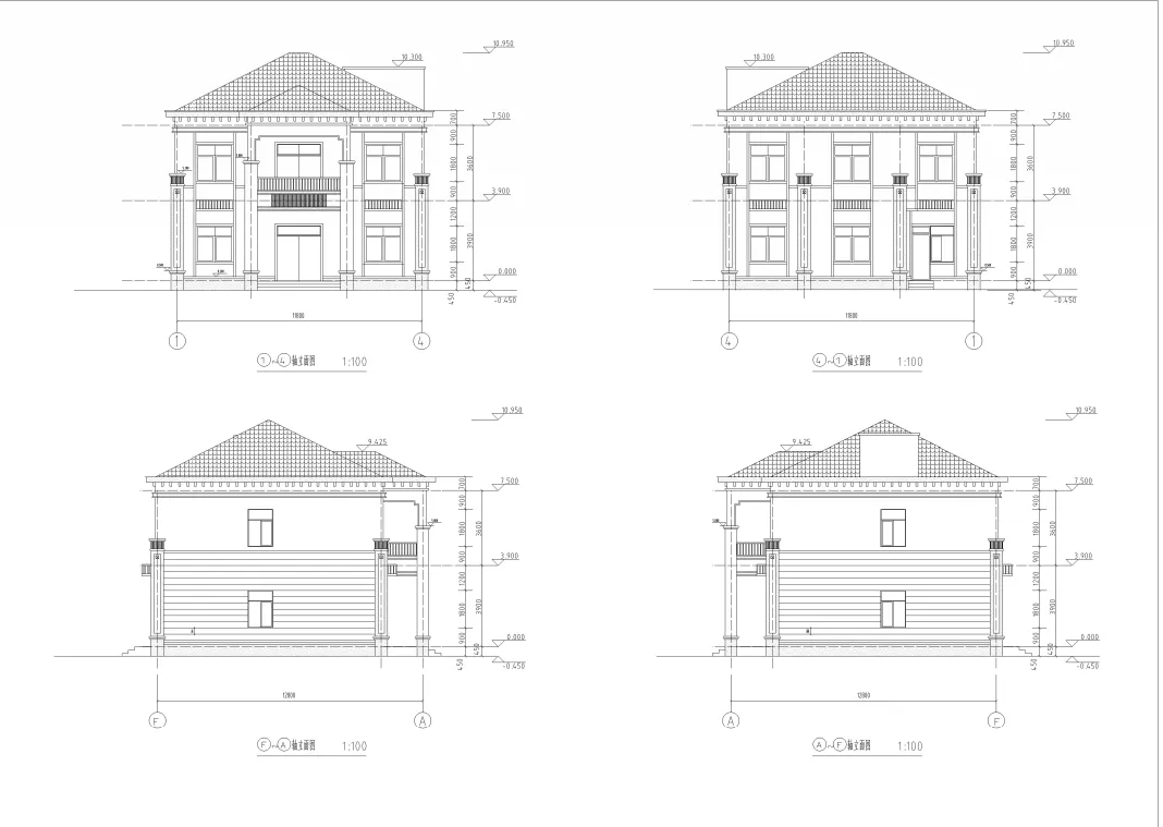
然而上周,我整整画了一周的图。白天忙完、晚上空闲时打开电脑——一条线一条线地拉,一个尺寸一个尺寸地标。说句不怕笑话的话,虽然多年没亲自上手了,但十年设计院练出来的功底,还真没丢。该设的构造柱、该留的门窗洞口、梁板配筋,一样都没落下。几天下来,一栋小别墅的建筑+结构设计图纸,竟然完整地呈现在屏幕上了。
当然,这些都是免费帮忙,分文未取。但说实话,当我把最后一笔标注完,看着那张完整的设计图时,心里涌起一种久违的感觉。那不是钱能衡量的东西,而是一种踏踏实实的自我价值感——原来,我曾经的本事,还能为乡亲们派上用场;原来,离开行业一年多了,我的手艺还在。
这一周,我明白了一件事:有些东西一旦刻进骨子里,就永远不会真正“毕业”。
合上电脑,窗外是老家的方向。似乎听到了蛙声和虫鸣。
就到这吧!



夜雨聆风