


设计单位 DPAA偏离设计
项目地址 广东省广州市
建成时间 2025年11月
项目面积 2000平方米
项目坐落于广州一个以服装办公生产为主的产业园区内,原建筑为一幢三层楼面的框架结构四方体,与园区内大部分房屋一样,建筑紧挨主干道,四周封闭,与街面的关系接近碰撞式,无任何缓冲区域。

设计需求为在这一四方体建筑内,设计一个可容纳百人左右的服装设计办公场所,人群密度与办公业态自身极强的功能属性给这一场所带来一种强烈的密度,在功能先行的条件下,设计开始展开。

由功能机制出发,引导出水平与垂直两条设计轴线,通过界面的退让,最终形成一个八小时机制的日常办公场所。
在水平设计轴线上,我们将主体功能区域后退4米,从而使进入这一行为有了缓冲,整个建筑面对街道也不再是封闭式的碰撞感。


在二层立面设计挑檐,向街面延伸1.5米,同时配合纵向轴线的设计关系,在后退的4米空间内设计了几组挑空。自此,人在进入这栋建筑时有了呼吸感,也使整栋建筑在作为办公空间的同时与所在街区形成一定的连接,带来一定量的公共属性,檐下躲雨、等候、交谈等行为使整个建筑在一种日常的生活状态中变得生动。



将楼梯从整体功能机制中解构,成为一个独立的单元,采用单立柱悬挑结构,以敞开的方式给予街道积极的回应,与街面形成相互渗透的状态,从而使楼梯成为这一街区的符号。




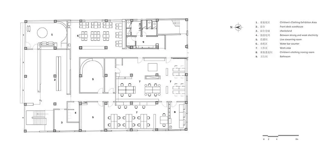
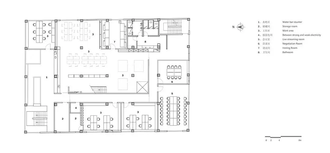
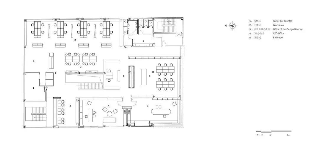
在剖析了整个办公业态属性后,设计的介入由纵向轴线先行展开,功能区沿三个楼面分层布置,一层为综合办公区;二层为产品打样制作区;三层为综合设计区;根据多层空间这一属性,垂直交通体系成为连接三个楼面的唯一路径。




剥离掉面层装饰,保留最基本的空间单元。功能在水平轴线上以敞开的方式分布,利用家具自身的体量与尺度进行空间分割,在统一的材质下,模块化与可移动设计给空间带来一定的可变量,也给后续的局部调整预留可行性,敞开的方式使整个办公效率得以最大化。




此案是设计团队尝试在一个高密度强功能以及需要一定私密感的场所内,在不破坏自身属性的前提下,是否可以将其与街道、与人群,产生链接的可能性。







完整项目信息
项目名称:Heyi office
项目地址:广东省广州市海珠智汇科技园
设计时间:2025年5月—2025年8月
施工时间:2025年8月—2025年11月
项目面积:2000平方米
项目业主:合弈(广州)贸易有限公司
设计公司:DPAA偏离设计
主创设计:小岛、戚帅奇
设计团队:赵英凯、熊良洁、李明思
项目施工:浙江拾叙装饰工程有限公司
灯光设计:广州光舍空间照明
项目摄影:Lihao
主要材料:马赛克、海洋板、地胶板、金属喷漆











夜雨聆风