
当全球人工智能竞赛步入“场景落地+人才密度”的深水区,海淀五道口,这个中国AI的“原点”,正在以空间为支点,撬动新一轮的创新革命。
As the global artificial intelligence race enters the deep-water zone ofscenario implementation + talent density, Wudaokou in Haidian District—the origin of China’s AI—is leveraging space as a fulcrum to leverage a new round of innovation revolution.

近日,随着全球首个纯国产自研的“AI原点社区孪生质控平台” 的上线,这片热土上的创新图景被彻底“点亮”。QUCESS设计以“空间即服务,场景即生态”的前瞻理念,将AI原点学堂从单一的物理空间,重塑为一个 “可交互的数字家园” 与灵感迸发的“创新场”。
Recently, with the launch of the world’s first fully domestically developedAI Origin Community Twin Quality Control Platform, the innovation landscape on this vibrant land has been fully "illuminated". Guided by the forward-looking philosophy of Space as a Service, Scenario as an Ecosystem, QUCESS Design has reshaped AI Origin Academy from a single physical space into an interactive digital homeland and an inspiring innovation arena.

01
一个“可交互”的原点,
一种面向未来的空间叙事
An Interactive Origin:
A Future-Oriented Spatial Narrative
AI原点学堂坐落于海淀区五道口人工智能先导区的核心地带。这里,是当之无愧的“原创地与引爆点”,顶尖智力资源密集环绕。
AI Origin Academy is located in the core of the AI Pilot Zone in Wudaokou, Haidian District. It is undoubtedly anoriginal birthplace and ignition point, surrounded by intensive top intellectual resources.




然而,高浓度的智力资源,也曾面临“锁在象牙塔”的困境。如何让这些顶尖大脑与广阔的市场需求精准对接?如何让创新的火花在日常的“邻里”互动中迸发?
However, such high-concentration intellectual resources once faced the dilemma of being "locked in the ivory tower". How to precisely connect these top minds with broad market demands? How to spark innovation in daily "neighborhood" interactions?




QUCESS设计给出的答案是:用“空间设计”重构创新生态的底层逻辑。告别传统办公空间的封闭与单一,AI原点学堂被打造为一个高度开放、复合、智能的“创新容器”。它以“学习(Study)、社交(Social)、销售(Sale)”的3S闭环为核心理念,让空间成为激活区域创新生态的“催化剂”。
QUCESS Design’s answer is toreconstruct the underlying logic of the innovation ecosystem through spatial design. Departing from the closure and monotony of traditional office spaces, AI Origin Academy is built into a highly open, composite and intelligent innovation container. Centered on the 3S closed-loop philosophy of Study, Social, Sale, the space acts as a catalyst to activate the regional innovation ecosystem.




02
科技与人文交织,
打造“最懂创业者”的空间美学
Interweaving Technology and Humanity:
Crafting a Spatial Aestheticwhich"Most Attuned to Entrepreneurs"
走进位于原点大厦九层的AI原点学堂,你会发现这里的一切设计都围绕着“人”与“连接”展开。QUCESS设计摒弃了传统培训空间的严肃与刻板,转而营造一种兼具科技感与温度感的社区氛围。
Stepping into AI Origin Academy on the 9th floor of Origin Tower, you will find every design here revolves aroundpeople and connection. Abandoning the solemnity and rigidity of traditional training spaces, QUCESS Design creates a community atmosphere that blends technological sense and warmth.




依托全新上线的“孪生质控平台”,学堂不仅是物理空间,更是一个数字孪生世界的入口。每一处空间都自带“数字身份”。在这里举办一场技术路演,它的影响可以瞬间通过线上平台,穿透物理边界,触达全球的潜在合作者与投资人。
Supported by the newly launched Twin Quality Control Platform, the academy is not only a physical space but also an entrance to the digital twin world. Every space is endowed with adigital identity. A technical roadshow held here can instantly transcend physical boundaries via the online platform, reaching potential partners and investors worldwide.



模块化空间设计随着创业团队的成长而“生长”,真正实现了“空间为人赋能”。可自由组合的多功能区,既能容纳几十人的技术培训,也能承载数百人的科技脱口秀。开放工位便于随时交流,主题活动区则承载着思想的深度碰撞。
The modular spatial designgrows with the development of entrepreneurial teams, truly realizing space empowering people. The freely combinable multi-functional zones can accommodate dozens of people for technical training or hundreds of attendees for tech talk shows. Open workstations facilitate instant communication, while themed activity areas carry in-depth collisions of ideas.



在材料与风格上,QUCESS设计运用了简洁的线条、富有质感的科技材质与温暖的木饰面相结合,营造出“理性与感性”并存的氛围。
In terms of materials and style, QUCESS Design combines concise lines, textured tech materials and warm wood finishes, creating an atmosphere whererationality and sensibility coexist.



03
锚定“六最”目标,
打造AI创新的“核爆点”
03 Anchoring the "Six Best" Goals:
Building a "Ground Zero" for AI Innovation
在AI原点学堂,每一处空间都被赋予了创新属性。全年200多场活动让这里始终保持着高密度的思想流动。空间设计的终极意义,在于激发人的潜能。
At AI Origin Academy, every space is endowed with innovative attributes. More than 200 events held annually maintain a high-density flow of ideas. The ultimate significance of spatial design lies inunleashing human potential.

面向未来,AI原点学堂及其所在的AI原点社区,已锚定“六最”目标:最年轻的人才引力、最真实的场景开放、最有温度的品质载体、最密集的资源整合、最先行的政策创新、最活跃的品牌生态。
Looking ahead, AI Origin Academy and the AI Origin Community where it is located have anchored the"Six Best" goals:The youngest talent attraction,The most authentic scenario openness,The most warm-hearted quality carrier,The most intensive resource integration,The most pioneering policy innovation,The most active brand ecosystem。

AI原点学堂的落地,是对“如何用空间赋能创新”这一时代命题的深度回应。未来,QUCESS设计将继续秉持“空间即服务”的理念,与更多像AI原点社区这样的创新高地携手,共同构建面向未来的、有生命力的创新空间载体。
The completion of AI Origin Academy is an in-depth response to the era’s proposition ofhow to empower innovation through space. In the future, adhering to the philosophy of Space as a Service, QUCESS Design will continue to join hands with innovation highlands like AI Origin Community to jointly build vibrant, future-oriented innovation space carriers.




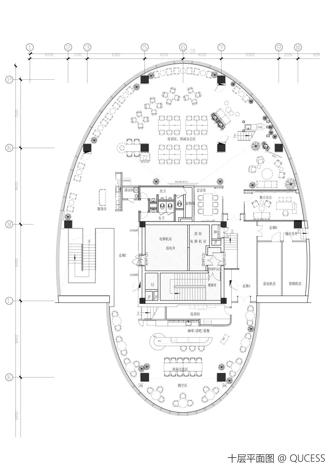
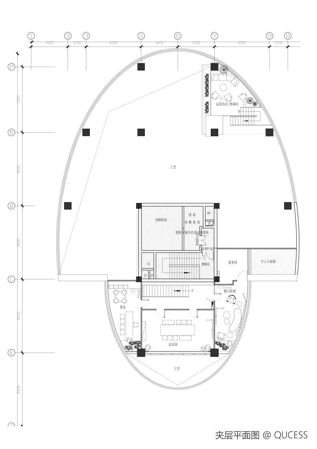
右滑可见: 9F-10F-夹层平面图
项目信息
项目名称|北京AI原点社区原点学堂
项目类型|创新型空间
设计公司|QUCESS清石设计、北京炎黄联合国际工程设计有限公司
项目地点|北京市海淀区原点大厦
项目面积|1800㎡
设计指导|李怡明
项目负责|李亮
主创设计|王学丽、张志浩、张傲研
项目成员|张扬洋、严涛、平凡、王云儒、秦源、滕佳林
完工时间|2025年10月
摄影机构|UOHO 、 建筑空间摄影-陈军
设计师

王学丽
QUCESS清石设计 合伙人
ECOWORK宜康办公空间 设计总监
以艺术是生活的升华,设计是艺术的呈现为设计理念,一直致力于品质创意型公共空间及办公空间的设计。尤其善长于用低技派的改造手法,充分利用现场条件,完美平衡功能和造价,达成客户意想不到的成果。
近年所获荣誉:
2020年 IAI全球设计奖(室内奖)-办公空间金奖
2021中国室内设计大奖年度最佳办公项目
2022年金堂奖年度杰出餐饮空间设计奖
2022年金堂奖年度杰出公共空间设计奖
2023年金堂奖年度杰出休闲娱乐空间设计奖
2024年金外滩最佳酒店设计奖/最佳公共空间奖
2025年金外滩最佳公共空间奖
设计作品刊登西班牙/美国/德国/意大利等多家设计媒体杂志

科技、产业园区整合式设计服务专家。自2005年成立以来,清石设计(以北京清石建筑设计咨询有限公司为核心的相关关联企业),一直致力于产业园规划与咨询、建筑室内一体化改造、办公及公寓空间设计、酒店会所等高端空间设计、软装设计服务,至今已发展成为超过百人的综合设计及服务企业。清石设计首次提出让设计创造价值。自创立至今,委托清石设计提供优质空间设计服务的各行业头部企业客户已超过百家。
▼ 延伸阅读 (点击下面文字即可阅读案例图文)
◆ 思域设计 宋毅 | 繁花书房


点个
夜雨聆风