

高科·枫林九里|轩阅里 项目详情
高新区·三环里·地铁口 95-114㎡活力三居
项目概况
【国企开发】高科地产
【总占地】约51亩
【总户数】756户
【容积率】约2.5
【绿地率】约35%
【面积区间】约95-114㎡

【首开南地块】
【占地面积】:约23.6亩
【建筑面积】:约5.54万㎡
【总户数】:344户
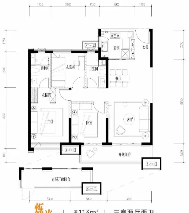
【户型面积】约99-113m²
【项目位置】鱼斗路与西三环相交东南角

责任国企
西安高科地产有限公司成立于2023年,诞生于西安高新区“双中心”建设全面启动、高科集团“转型升级、创新发展”全面加速之际,是高科集团机构改革后的核心子企业。
公司由高科集团下属高新地产、紫薇地产、丝路金融三家公司合并组建而成。坚持“以客户为中心,为客户创造价值”的理念,业务范围涵盖房地产开发、康养服务、商业运营以及文旅运营等领域。公司旗下高新地产、紫薇地产均具有国家房地产开发一级资质,30余年来,累计开发面积达2000多万平方米,服务近百万业主。

区域势能
择址城芯,赋新理想人居
高科·枫林九里丨轩阅里,位处西安高新三环内醇熟版块,立足丝路软件城生活服务中心区、高新区产城人融合的焦点片区,西承丝路软件城万亿级科创产业高地,东享高新一期二期繁华城景,集萃丰盛的教育、交通、商业、生态、医疗资源,标定繁华所向。


生活享受
3大成熟生活圈,一站式享受
【商业配套】科技路、唐延路、锦业路三大商圈环绕,金鹰、世纪金花、中大国际、高新万达广场、益田假日、大茂城等商业体轻松畅达;
【文化会展】近享陕西省图书室(高新馆区)、高新国际会议中心;
【星级酒店】悦享香格里拉大酒店、陕西宾馆、高新丽思卡尔顿、君悦酒店、喜来登酒店、西安高新JW万豪酒店、四季酒店(建设中)。


城市绿芯,公园簇拥诗意家
【公园近揽】高新悬浮公园、沣惠绿道、皂河生态景观带;
【城市绿芯】唐城墙遗址公园、昆明池遗址公园、西安人才公园。

优渥医疗配套,护航全家健康
高新医院(三甲综合医院)、安琪儿妇产医院、启迪儿童医院 ( 三级专科医院 )、西安雁塔健桥医院、丈八社区卫生服务中心、鱼化寨卫生服务中心、丈八唐沣社区卫生服务站。

高新系教育,护航成长每一步
【启蒙】高新区第五十七幼儿园、高新区第四十九幼儿园;
【小学】高新区第十八小学、高新区第十小学、西安高新第一小学(西苑分校);
【中学】高新区第四完全中学、高新区第十二初级中学、西安博迪学校。

匠心规划
精著范本,代言高科地产匠心态度
【精筑理念】轩阅里运用精而美的打造理念,匠筑MINI型自然森居品质社区,以“森林里,写意山水”为景观设计理念,从入口、中央会客厅、到儿童游乐园、萌宠乐园、健身空间进行健康、多元生活的演绎,同时赋予空间更多可能性,打造弹性的邻里生活空间,完成"入则宁静,出则繁华"的心境转换。设计建筑面积95-114㎡户型,容得下"小太阳家庭”的幸福与欢聚,也装得下三代同堂的自在与惬意,拥抱品质生活想象。

还原森境生活方式
【都市森居,写意山水】轩阅里以“轩阅雲台”为主题,提炼中国山水画作自然形态及视觉构图,创新应用现代景观手法,打造层次丰富的自然森境花园。

【3大森享自然客厅】“泛酒店大堂入口-自然诗意美学客厅-邻里会客厅”3重空间礼遇,将“生活仪式感”与“诗情画意”置入日常

【5大森氧自然花园】邻里艺术花园、儿童老人活动空间、邻里休闲花园、邻里花园(结合消防场地)、森林萌宠乐园,让风景成为邻里社交的背景,让业主享受全时段、全天候的自然诗意生活会客厅。

【美学建筑】超前公建化立面风格,以米白色、灰色涂料相搭配,典雅配色呈现,刷新高新三环风景线。

友 好 产 品
创新户型,将舒适度置于首位
【全能三居】
95-114㎡,容得下小太阳家庭的幸福与欢聚,也装得下三代同堂的自在与惬意,低门槛低总价,拥抱多元品质生活想象。
【舒适格局】
南北通透格局、餐客厨科学布局、流畅动线设计,主卧套房、双卫配置,晨洗晚漱更从容,极大提升舒适度;户户双卫配置,为一家人的晨起夜归更舒适、从容。




口碑 服 务
全维度贴心服务
高科物业,深耕西安,为业主提供全周期美好生活方案,整合生活全维度资源,建立多元社区增值服务。
全生命周期健康服务
轩阅里业主优先享受枫叶整合照护全系康养服务,包含枫叶整合照护机构优先入住权和业主优惠权,让美好生活覆盖全生命周期,也深入每个日常细节。

扫描二维码可直接预约看房
置业顾问一对一专属服务,享受额外团购优惠!
注:(免责声明:本宣传资料仅为宣传,内附所有资料,包括任何图片、插图、设计图、文字描述或其他资料,仅供参考或识别之用,不构成合同内容,具体内容以合同内容及政府最终审批为准。项目所涉及数据均为暂定,后期如有改动,请以各项证件及政府批文等为准,本宣传资料部分素材源于网络,最终交付标准以商品房买卖合同及政府等相关部门的批准文件为准。在法律允许的范围内,开发商保留修改本资料的权利,敬请留意。)
夜雨聆风