设计师必备的各类门节点大全,人手一份!

《各类门CAD节点详图合集-18种分类》
文末查看如何获取

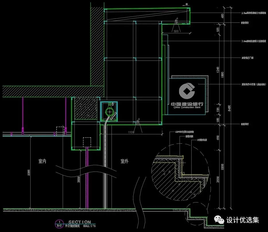
各类门CAD节点详图合集
共18种分类,DWG,145MB

01



















02












03









04











05















06
















07















08










09













——————
如何获取本套资料?(065)
官方公众号
加入2026会员,获取公众号全部素材

免责声明:
以上图片以及资料内容来源于网络,由我方再整理,版权归原作者所有;若此内容侵犯到您的权益,请与我们联系删除;
设计师必备的各类门节点大全,人手一份!

《各类门CAD节点详图合集-18种分类》
文末查看如何获取

各类门CAD节点详图合集
共18种分类,DWG,145MB

01



















02












03









04











05















06
















07















08










09













——————
如何获取本套资料?(065)
官方公众号
加入2026会员,获取公众号全部素材

免责声明:
以上图片以及资料内容来源于网络,由我方再整理,版权归原作者所有;若此内容侵犯到您的权益,请与我们联系删除;