1.工程概况
1.1基坑概况
本工程A区包括华润总部大楼“春笋”、六星级酒店及酒店式公寓、美术馆等附属建筑物/构筑物;其中,“春笋”塔楼地上66层,地下4层,大面开挖深度至-29.0m,核心筒部位局部深度达到-34.0m;酒店部分基坑开挖深度约为-27.0m。A区酒店部分基坑范围为3,787m2,“春笋”及其附属建筑物基坑面积共计约15,718m2。

1.2地质情况
下表为基坑基本地质情况汇总
编号 | 名称 | 类型 | 色泽 | 性状 | 厚度 | ||
1 | 1.1 | 第四系人工填土层 | 人工填石 | 灰白、灰色 | 主要由花岗岩组成,其余为碎石、角砾及粘性土填充,结构松散~稍密 | 8.85m | |
1.2 | 人工填土 | 褐色、灰黄 | 主要由粘性土混砾砂组成,局部含碎石块,稍湿~湿,结构松散~稍密 | 0.5m | |||
2 | 第四系海相沉积层 | 淤泥 | 灰黑色 | 含有机质,软~流塑,干强度中等,韧性中等,风化不均,局部夹强风化岩块 | 7m | ||
3 | 3.1 | 第四系冲洪积层 | 粘土 | 灰白,褐色 | 湿,可塑,干强度高,韧性高 | 7m | |
3.2 | 砾砂 | 灰白,浅黄 | 主要成分为石英质,底部多含粘性土夹层,稍密,级配良好,分选性差 | 0.7m | |||
4 | 第四系残积层 | 砾质粉质粘土 | 褐黄、褐红、灰黄间灰白 | 由下伏粗粒花岗岩风化残积而成,干强度中等,韧性中等,风化不均,局部夹强风化岩块 | 15.34m | ||
5 | 5.1 | 燕山晚期花岗岩 | 全风化粗粒花岗岩 | 褐红、褐黄 | 极软岩,极破碎,原岩结构基本破坏,干钻可进,浸水后可捏成团,局部夹强风化岩块 | 8.9m | |
5.2 | 强风化粗粒花岗岩 | 褐红、褐黄 | 软岩,破碎,原岩结构大部分破坏,风化裂隙发育,不易干钻,风化不均,局部夹中风化岩块 | - | |||
5.3 | 中风化粗粒花岗岩 | 肉红、褐黄 | 较软岩,较破碎,原岩结构部分破坏,风化裂隙很发育,合金钻头可钻进 | - | |||
1.3水文情况
场地内地下水主要有两种类型:一是松散土层孔隙潜水,二是基岩裂隙水。

孔隙潜水主要赋存在第四系全新统砾砂中,水量丰沛,此外残积砾质粘土、全风化岩亦有少量赋存(即上述3.2~5.1层中)。
基岩裂隙水主要赋存在基岩强风化层~中等风化岩的裂隙中,其上覆残积砾质粘土和全风化岩(即上述5.2~5.3层中)。
1.4水文、地质对降水施工综合影响
下图示意以上两层水层与我方将施工的降水井以及桩基施工的相对深度关系。
1.4.1开挖影响分析
本工程施工范围内第一层为第四系人工填土层,回填厚度约9m,包括人工填土及人工填石,我方进场后A区东侧酒店范围-15m土台高度位置如下图示意,预计进场后坡道及开挖施工将受人工填土填石以及淤泥影响不大。
1.4.2水文影响分析
由于强风化花岗岩及中风化花岗岩层厚度依照地质勘查报告中给定深度范围跨度较大,利用单张剖面图较难表达,因此下图中利用折断符号,图中所示深度并不代表该层实际厚度。场地范围混合地下水埋深1.80m至9.4m,水位高程-0.22m至5.22m,地下水主要补给来源包括大气降水及海水补给,与海水有水力联系。
止水帷幕至基坑底2m范围,在部分基坑范围内深入全风化粗粒花岗岩,并进入松散土层孔隙潜水范围内,设计降水井范围主要针对松散土层孔隙潜水。

2.降水重点、难点分析
2.1降水工程重点、难点
基坑降水工程的重点在于确保基坑内部桩基施工过程中基坑内部干燥,排水顺畅,且将对周边建筑物/构筑物影响降至最低。
依照现阶段地勘报告,基坑开挖深度于不同位置处于砾质粉质粘土至全风化粗粒花岗岩层范围内,局部位置处于强风化粗粒花岗岩范围内。由于本工程场地位于滨海区,地势低,地下水位高。开挖地层范围内分布有砾砂层,透水性强,场地离海域较近,水量丰富。同时考虑到中风化层裂隙很发育,且地下水与海水有水力联系,人工挖孔桩深度较深,降水工程难点体现在成孔过程中抽、降水困难。
2.2降水工程重、难点分析
作为以上列举各项难点的应对措施,我司认为应当首先理清现场水位、地下水情况与降水措施之间的关系,以期得到最优方案。前述概况已经叙述清晰地下地质水文条件,以下列举相关降、止水措施以进行进一步分析
2.2.1止水帷幕
我司进场后,基坑周边止水帷幕施工已完成。止水帷幕深度为基坑深度以下2000mm。参考地质水文条件可知,该止水帷幕主要针对大气降水以及分布在砾质粉质粘土范围内的部分松散土层孔隙潜水,该层孔隙潜水将进一步深入至全风化花岗岩层。由此可知,止水帷幕可以在很大程度上起到封锁大气降水及部分孔隙潜水的作用,保证基坑坑壁四周干燥,但对于自基坑底部自下往上渗水的封堵作用较弱。
2.2.2井点降水
依照设计图纸,基坑底部降水井自基坑底部深入地下12m。对照相应地质水文条件可知,降水井可有效应对贮于砾质粉质粘土层的孔隙潜水。对照地勘报告可知,孔隙潜水将一直延伸至全风化粗粒花岗岩层;同时,在裂隙发育的强风化粗粒花岗岩层以及裂隙很发育的中风化粗粒花岗岩层亦储有大量基岩裂隙水。
2.2.3工程桩桩孔
本工程基坑总面积共计约2万平米,基坑大面深度至-25m以下,整个基坑可以看做起到集水作用的“井”,因此,在桩基成孔过程中,桩孔也在很大程度上充当了具有集水作用的“降水井”。考虑到大部分桩有效长度都长于降水井深度,因此预计在成孔初期,桩孔出水量将较大。
2.3降水工程重、难点应对
在基坑施工过程中,应当严格按照设计要求进行降水井点施工,同时,在人工挖孔桩施工过程中,大面积多桩同时开挖,以避免少量点位集中开挖造成成孔过程中出水过于集中。在基坑周边做好变形监测,以避免过量排水所造成周边沉降、塌陷等情况。
在基坑及地下室施工过程中,针对基坑底部以及基坑周边渗水、涌水现象编制针对性强的专项施工方案,将基坑周边及基底渗水集中至基坑周边排水沟并经沉淀后排入市政管网中。
3.施工方案
本工程工期紧,降水量大,基坑面积大,故采用集水明排,结合止水帷幕、降水井的降水方案。依照基坑支护工程设计施工图,基坑顶部、底部周圈设置排水沟进行技术明排,基坑底部周圈设置降水井。
3.1降水井施工方案
3.1.1降水井布置
1)依照《华润集团总部深圳湾综合发展项目基坑支护工程设计施工图》中所给出“基坑监测及排水平面图”中降水井平面布置,A区点自S以东至K点段共设置11口降水井,降水井设置于基坑底部沿基坑边缘。

2)由于进场伊始基坑东侧尚留有标高为-15m土台,因此进场之初先施工SR段四口及LK段间一口降水井,1#,2#,3#,10#,11#共计5口降水井。余下6口降水井在东侧坡道施工完成及东侧锚栓施工完成后立即开始施工。
3.1.2降水井设计
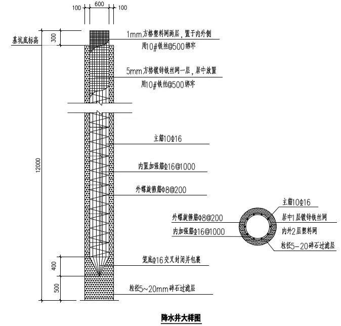
降水井设计依照《华润集团总部深圳湾综合发展项目基坑支护工程设计施工图》中所给定《降水井大样》图进行施工。降水停止时间应等地下部位结构浇完,结构构件达到设计强度、室外顶板覆土填至设计标高、车库地面垫层做完后并经过设计确认后停止降水。

3.1.3成孔方式
降水井将采用机械成孔的方式,成孔机械选用三一重工入岩旋挖钻机SR280LH成孔,钻头采用十字筒钻进行成孔作业。成孔过程中,采用反循环进行泥浆护壁以防止塌孔。
3.1.4施工流程及部署
1)降水井施工流程如下所示

降水井施工流程
2)第一阶段降水井施工
降水井施工应从进场第一时间展开,成孔机械SR280LH整机重量82t,我司入场伊始该机械即由入坑坡道进入场地并在第一时间开始成孔作业。钻孔采用反循环成孔,降水井施工平面部署如下图所示:
其中图中蓝色区域为6000mm × 3000mm × 1000mm泥浆池,以供给1#,2#,3#,10#,11#降水井成孔施工。
依照设计,井中钢筋笼以及附属滤网将在孔边预制,在预制完成后由汽车吊整体吊入孔中,并在定位稳定后填入碎石及后续施工工序。

3)第二阶段降水井施工
第二阶段降水井施工应当在基坑东侧酒店范围坡道收土工作完成,同时基坑分包单位完成相应位置锚杆施工之后立即展开。第二阶段降水井施工范围包括4#,5#,6#,7#,8#以及9#降水井共计6口。
钻孔采用反循环成孔,降水井施工平面部署如下图所示:
其中图中蓝色区域为6000mm × 3000mm × 1000mm泥浆池,以供给降水井成孔施工。
第二阶段降水井施工需考虑在东侧土坡道收土过程中插入,需与收土坡道施工界面保持10m的安全距离,并先于工程桩成孔前插入施工。成孔机械在全部成孔作业完成以后,自场地东北侧由汽车吊吊运退场。

3.2排水沟施工方案
参照设计要求,集水井截面尺寸为400mm×400mm,集水井位于基坑底部靠近基坑边缘护坡桩外侧。排水沟除东侧酒店部分土台位置以外应当在进场第一时间开挖,用以收集降水、基坑边缘渗水以及自降水井抽出涌水。排水沟每隔30m设置1m深集水井,用以集中抽水以便排至坑顶直至排入市政管网中。
明排方案主要分两阶段实施
3.2.1第一阶段
进场至桩基施工完毕阶段。
该阶段明排主要针对降水、坑边渗水以及基坑底部渗水。第一阶段特点是由于桩基施工的大面积展开,基坑底部的渗水将有很大部分分散至每个桩孔之中,在成孔以后将在孔底集中抽水。

考虑到地下部分总体施工部署,进场将在清除余土后第一时间进行场地硬化,基坑内部硬化路面上所设置深15公分排水沟并将出水由各点最终汇集于排水沟内,如下图蓝线所示,用以将分散于各桩孔中渗水汇集于基坑周边排水沟内。

3.2.2第二阶段
第二阶段排水考虑在成桩后的排水处理措施。由于成桩后自桩孔的排水路径将不再适用,基坑开挖、底板及其以上部分的施工过程中,基坑底部的降水工作在很大程度上将依赖基坑范围内降水井。为保证基底干燥,基底渗水及坑边渗水不影响结构施工,将设置以下排水方式。
在基坑施工过程中,地势较低的主塔楼基坑范围,特别是电梯井、集水井位置将成为渗水主要汇集区域,考虑将在基坑底部边缘位置开挖深500mm集水井,如下图所示。在底板施工期间,主要出水路径将利用底板结构的后浇带,汇集入基坑边缘排水沟中。

4.施工资源配备
4.1施工机械配备
序号 | 设备名称 | 型号 | 数量 |
1 | 空气压缩机 | 12m3柴油机 | 8 |
2 | 潜水泵 | 30-40m扬程 | 30 |
3 | 大扬程污水泵 | 25 | |
4 | 发电机 | 10 | |
5 | 挖掘机 | 2 | |
6 | 旋挖钻机 | SR280LH | 1 |
以上机械为降水所需相关机械,该部分机械并不包括进场伊始进入场地中的全部机械,其余相关施工机械,特别是针对余土清理、垫层施工、工程桩成孔各项机械参见其他相关章节。
4.2人员及劳动力使用计划
部门 / 班组 | 人数 | 工种 | |
项目经理部 | 9 | 组织、管理、技术、采购 | |
质量保障部 | 4 | 质量监督 | |
安全部 | 5 | 安全监督、检查 | |
降水 | 集水明排 | 30 | 明沟开挖、排水沟、集水井 |
井点降水 | 30 | 成井、抽水 | |
电工班 | 2 | 电路维修 | |
机修班 | 2 | 机具维修 | |
杂工班 | 30 | 清理水沟、抽水等 |
4.3施工材料
序号 | 材料名称 | 单位 | 数量 |
1 | B16钢筋 | m | 1500 |
2 | A8钢筋 | m | 1650 |
3 | 5mm方格镀锌铁丝网 | m2 | 350 |
4 | 粒径5-10碎石过滤层 | m3 | 8.4 |
5 | 塑料网 | m2 | 700 |
6 | 10#铁丝 | m | 500 |
以上各项列举材料为A区范围内共计11口降水井,前期材料进场仅需包括前四口降水井所需材料,即以上所列举材料量乘以0.4系数,其余材料可结合土方方案中所述下场坡道入场。
5.质量保障措施
1)认真做好降水记录,经常检查降水出水量的情况,深井降水要连续降水,防止中途停顿。
2)与各方保持密切联系,互通信息,协调配合。
3)施工中发生意外情况,及时分析解决,并与有关方面联系协调。
4)严格按照设计参数进行施工,严格执行施工过程中原始数据记录制度,三级验收制度。
5)在基坑底部出现出水量较大的渗水孔时,启用专项设计方案进行抽、排水工作,抽水装置如下所示:
外筒 | 内芯 | 结构示意 |
|
|
|
(1)于基础垫层下部一定深度范围内开挖一定孔径的排水井,排水井外接渗水盲管用以集水,排水井中心置入排水钢管,钢管上口略高于结构底板顶标高并于结构底板范围内预先满焊钢板环,基础垫层以下、排水井眼以内至排水钢管外壁范围内填入粗粒碎石;排水钢管中心于降水完成后底部埋入粗粒碎石,上部置入封闭闸阀,闸阀与钢管间隙范围内下部填入遇水膨胀止水条,上部至钢管顶部注入掺加适量微膨胀剂细石混凝土;最后封堵阶段将闸阀锁闭并于阀内注入掺加适量微膨胀剂细石混凝土。 (2)所述锁闭闸阀由现场组装。闸阀主体为管径小于排水井眼的钢管,利用钢筋支架固定中心提升阀门,提升阀门由上部带丝扣的钢筋组成;闸阀底部焊接直径大于闸阀管径的钢板,上接橡胶垫板; (3)闸阀中轴钢筋由螺帽将上、下两端与闸阀钢管固定,上部留丝扣并于顶部连接轮盘用以封堵阶段提升闸阀用。 (4)闸阀钢管以外底部与排水井眼之间填入遇水膨胀止水条,止水条以上部分至钢管顶部注入掺加适量微膨胀剂细石混凝土。 |
6)在基坑边缘出现小量渗水的情况,不影响施工及周边环境的情况下,利用坑底排水沟排水,在出现基坑边缘自护坡桩位置出现大量渗水的情况下,启用专项设计方案进行引流→修补的方法。在渗漏较为严重的部位,现在支护结构打入一根钢管,内径30mm,使其穿透支护结构内,由此将水引出,并依照以下方案进行集水、排水工作,最终将水导致基坑底部排水沟并排除,并可多点、多层集水排出,原理如下图所示:
方案示意图 | 备注 |
| 利用砌筑结构制作临时集水槽,利用DN200导管层层转接,最终汇入坑底排水沟,并经集水井统一抽排至基坑顶部最终进入市政管网 |
将管边支护结构的薄弱处用防水混凝土进行修补封堵,待修补用混凝土达到强度后将钢管出水口封堵,如封堵口后出现第二次渗漏时,依照前述仿佛再次进行引流及封堵。
7)在基坑边缘出现漏水的情况下,如果漏水位置离地面不深处,可将支护结构背开挖至漏水位置下1000mm,在支护结构背后用密实混凝土进行封堵;如果漏水位置埋深较大,将在支护结构后采用密注浆方法,注浆封堵。注浆浆液中掺入适量水玻璃,使其能尽早凝结。为防止施工队支护结构产生的压力使支护结构产生较大侧向位移,在施工前将对坑内局部反压回填土,待注浆达到截水效果后再重新开挖。
6.安全文明施工管理
6.1安全生产目标
强化安全生产管理,通过组织落实、责任到人、定期检查,杜绝死亡事故,确保无重大工伤事故,控制轻伤频率在3‰以内。
6.2安全保证措施
1)现场施工用电采用三相五线制,配电箱设置总开关,同时做到一机一闸一漏电保护。照明与动力用电分开,插座上标明设备使用名称。
2)电缆线及支线架空或埋地,架空敷设采用绝缘子,不直接绑扎在金属构架上,严禁用金属裸线绑扎。
3)电线和设备安装完毕以后,由安装部门会同安全部门对施工现场进行验收,合格后方可使用。
4)经常对职工进行电气安全教育,未经考核合格的电工、机操工和其他人员一律不准上岗作业。
5)夜间施工,工地应有足够的照明。夜间基坑四周、马道设置照明和警示红灯,防止坠落。
6)施工机械和运输车辆在进场前进行彻底的检修和保养,确保施工期间机械的正常运转。
7)深井成孔之后进行警戒标示,并搭设防护栏杆,防止跌入。
8)抽水机组各备用5台,50kw发电机备用一台。
9)安排有经验的人员24小时值班,对每天降水情况进行记录和处理突发事件。
6.3文明施工措施
1)施工现场产生的泥浆、淤泥土等严格按照规定处理,严禁随意排放。
2)施工期间,施工用水不得给邻近居民、单位和周围环境造成污染。
3)采取有效措施控制现场的粉尘土、废气、污水、噪声振动对环境的污染和危害,不燃烧各种有毒的物质。
7.基坑降水监测及回灌
7.1回灌井的设置
依照设计要求,A区范围内基坑顶部设置一口监测回灌井,如下图所示:

注:图中蓝色标注为监测回灌井设置位置
1)回灌井的启动
根据设计图纸,该回灌井兼具监测井职责,因此我方将于进场之初即开始对该监测井,稳定的水位监测报告出具后,如发现水位低于本场地原始数据后即启动回灌。
2)回灌井的停止
基坑停止降水后观测一段时间,若水位回复正常即可停止回灌。
3)回灌水源
回灌水应采用抽出的原水,但必须经常性对灌入水的污浊程度及水质情况进行检查及监测,以防止机油、有毒有害物质、化学药剂、垃圾等进入回灌井中。
4)回灌井监控
深井降水过程中,要对降水井、回灌井/观测井水位及流量进行观测,密切注意其降水幅度及地下水位的标高,每昼夜观测次数不应小于6次。在每口井边设置稳固的标高,使用水准仪进行测量,记录好数据。监测的内容包括:降水前降水井内的水位;降水稳定时井内最低水位;单井抽水流量;观测井降、灌前后的水位变化;回灌前回灌井内的水位;回灌井的回灌流量;回灌井内最高水位。如发现降水幅度较大应做相应的调整。
当回灌井发生堵塞时,应第一时间进行疏通工作,保证回灌井畅通并有效工作,同时及时分析堵塞原因并采取相应处理措施。
5)回灌井的调整
回灌水量应根据地下水位的变化及时调整,尽可能保证抽灌平衡,既要防止灌水量过大而渗入基坑,同时又要防止灌水量过少,致使地下水位失控。回灌量调整根据上述监测结果进行,当观测井降、灌前后水位差超过1.0m时,应通过阀门调整回灌量,控制回灌量可以通过调整回灌水丘高度来控制回灌量。该控制方法主要针对水丘稳定时的最高水位与回灌前观测井内的正常地下水位差,通过比较来控制回灌量,从而满足降、灌平衡。
7.2基坑周边建筑物监测
由于本工程地理位置较为特殊,如前所述,本工程位于滨海区域,同时基坑西侧、北侧两侧均有规划中地铁线路,加之该工程基坑深度较深,开挖面积大,对周边水位影响较大,因此该工程地下部分施工阶段的对基坑周边建筑物/构筑物的监测尤为重要。
在进场后将委托具有相应岩土工程监测资质的单位,进行基坑及周边建筑物/构筑物,特别是地铁区域的稳定性监测,同时依照相关国家及地方规范,编写基坑监测专项方案。监测数据所反映的情况将定期上报,在监测过程中如发现沉降等情况将第一时间上报监理、设计、业主以及其余相关单位,并在第一时间内采取一切必要措施和手段以避免由于基坑施工、降水等引起的建筑物/构筑物沉降及其他不利影响。
监测主要内容将包括:原有建筑物/构筑物沉降;坑顶水平位移和垂直沉降;支护结构变形。监测时间将从我方进场开始直至地下部位结构浇完,结构构件达到设计强度、室外顶板覆土填至设计标高、车库地面垫层做完后并经过设计确认停止降水。
监测频率在非雨季将保持在每天一次,在地下施工阶段,如发现降、灌水前后水位差过大,或在雨后测试数据变化过大的情况下,将加密监测频率,保持在每8小时一次监测;我司进场后5、6区地下施工恰逢雨季,监测频率将加密为每8小时一次。
8.雨季降排水措施
深圳市雨季集中在6月~9月,雨量充沛,在雨季来临时对基坑降、排水提出更高要求,由于土方在被浸泡后具有易塌方的危险,同时基坑内有水将不易发现坑底危险因素的潜在安全隐患,因此需要针对雨季,包括非雨季大量降雨的情况做好准备工作。
我司根据工程设计情况以及资源组织情况所制定的进度计划,在6月~9月时间段处于6、7区桩基、底板施工阶段。为保证按期优质完成本工程,我司针对雨季及雨天作出以下安排:
1)在基坑底部凿设引流路径,将地表水引至基坑顶部排水沟并统一排出,以防止其渗入基坑内部。检查基坑顶部所有污水、给水管线,看是否断裂,有水下渗入基坑边坡,如污水雨水管线有断裂的情况,应将污水、雨水管线的水源切断或改线。
2)安排场地清理、保证基坑底部的临时排水沟疏通,保证场内排水系统处于良好工作状态。基坑底部,用污水泵抽水,并做好坑底排水设施,使基坑底部尽量保持干燥,以防止基坑底部土体泡水软化。
3)雨天禁止焊接作业。
4)与气象部门保持密切联系,随时-获取中、长期和短期气象预报,并据此制定和随时调整雨季施工月、旬进度计划,抓住可能利用的一切雨后间隙进行施工。
5)注意采取有效的防水防雨措施,现场必须做好排水处理,防止地面积水。
6)进场后抓紧做好材料的储备,防止雨天影响材料运输,为全面开工作好充分的 准备工作。
7)对沿线排水设施检查、整修,对可能在雨天影响施工的隐患,要及时排除,做到雨后2小时后场内无积水。
8)各类施工临时设施必须做好防风准备,水泥仓库做好防雨隔潮措施。临时施工主便道做到经常维护、晴雨畅通。
9)定时、定期对泵机进行维护,并检查供电设备供电良好,以保证在雨季来临时能够同时启用并满负荷工作。
10)在雨季排水过程中,对边坡严格监控,同时,人工挖孔桩成孔施工应当暂停并在孔底水清干孔底干燥后再进行施工。

夜雨聆风


