wifi线下播放!可以设置高清!
教程主要包含视频,规范图集电子书,CAD软件以及图例大全CAD版!购买U盘版本五星好评,再送35G视频资料!!售后服务群资源还在不断更新!
U盘价位:298(含水电视频和桥架视频不含图书)
桥架制作图书版:198(桥架视频桥架图书)
水电识图+桥架图书版:398 (桥架图书桥架视频水电识图教程)
赠送VIP资源
桥架图书版我们是包教包会!各位如果是在找桥架制作公式或者做法!你尽可以购买一套!学习到的技术,你吃不了亏!
你今天花了198 明天你赚回的将是几十万倍!
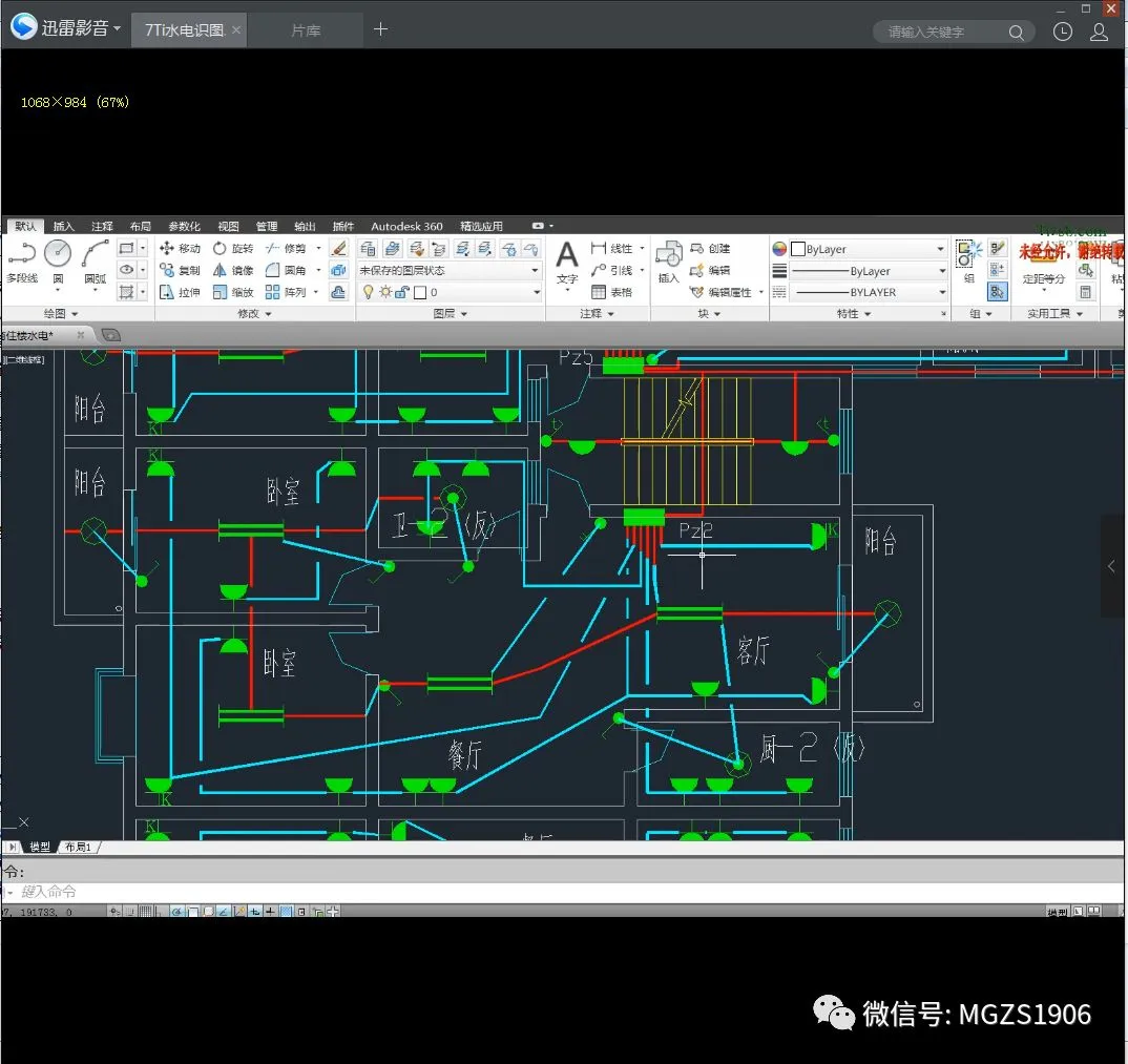
Ti水电识图安装快速学会看图纸施工,安装,预埋,定位,局部等电位安装!系统图都有!






视频截图



视频截图



视频截图







































装饰团队在利用自媒体为自己推广。很多好的东西。别人都在用了。你却还不知道是怎么一回事!那就真是悲哀了!

视频教程截图!!










U盘版本微店购买 识别二维码进入

夜雨聆风