
近日,随着全球首个纯国产自研的“AI原点社区孪生质控平台” 的上线,海淀区五道口,作为中国科技最前沿地带的创新图景被彻底“点亮”。设计公司以“空间即服务,场景即生态”的前瞻理念,将AI原点学堂从单一的物理空间,重塑为一个 “可交互的数字家园” 与灵感迸发的“创新场”。

01
一个“可交互”的原点,
一种面向未来的空间叙事
AI原点学堂坐落于海淀区五道口人工智能先导区的核心地带。这里,是当之无愧的“原创地与引爆点”,顶尖智力资源密集环绕。


然而,高浓度的智力资源,也曾面临“锁在象牙塔”的困境。如何让这些顶尖大脑与广阔的市场需求精准对接?如何让创新的火花在日常的“邻里”互动中迸发?




设计公司给出的答案是:用“空间设计”重构创新生态的底层逻辑。告别传统办公空间的封闭与单一,AI原点学堂被打造为一个高度开放、复合、智能的“创新容器”。它以“学习(Study)、社交(Social)、销售(Sale)”的3S闭环为核心理念,让空间成为激活区域创新生态的“催化剂”。




02
科技与人文交织,
打造“最懂创业者”的空间美学
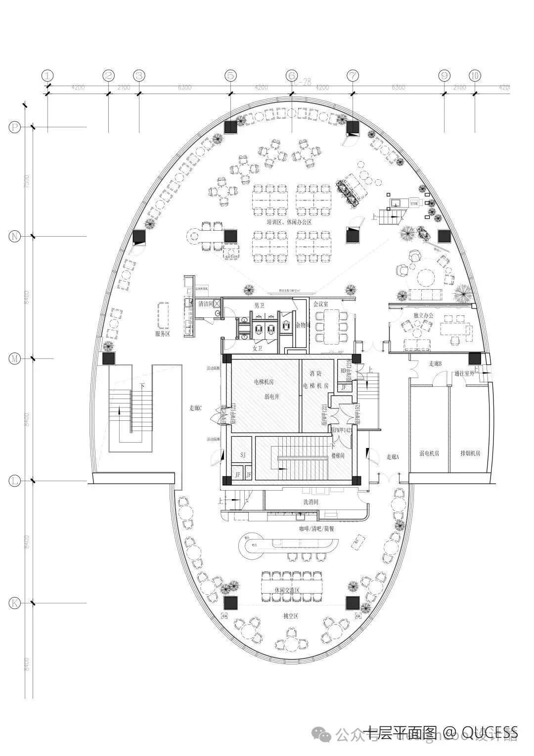
走进位于原点大厦九层的AI原点学堂,你会发现这里的一切设计都围绕着“人”与“连接”展开。设计公司摒弃了传统培训空间的严肃与刻板,转而营造一种兼具科技感与温度感的社区氛围。




依托全新上线的“孪生质控平台”,学堂不仅是物理空间,更是一个数字孪生世界的入口。每一处空间都自带“数字身份”。在这里举办一场技术路演,它的影响可以瞬间通过线上平台,穿透物理边界,触达全球的潜在合作者与投资人。



模块化空间设计随着创业团队的成长而“生长”,真正实现了“空间为人赋能”。可自由组合的多功能区,既能容纳几十人的技术培训,也能承载数百人的科技脱口秀。开放工位便于随时交流,主题活动区则承载着思想的深度碰撞。



在材料与风格上,设计公司运用了简洁的线条、富有质感的科技材质与温暖的木饰面相结合,营造出“理性与感性”并存的氛围。



03
锚定“六最”目标,
打造AI创新的“核爆点”
在AI原点学堂,每一处空间都被赋予了创新属性。全年200多场活动让这里始终保持着高密度的思想流动。空间设计的终极意义,在于激发人的潜能。

面向未来,AI原点学堂及其所在的AI原点社区,已锚定“六最”目标:最年轻的人才引力、最真实的场景开放、最有温度的品质载体、最密集的资源整合、最先行的政策创新、最活跃的品牌生态。

AI原点学堂的落地,是对“如何用空间赋能创新”这一时代命题的深度回应。未来,设计公司将继续秉持“空间即服务”的理念,与更多像AI原点社区这样的创新高地携手,共同构建面向未来的、有生命力的创新空间载体。




项目信息
项目名称|北京AI原点社区原点学堂
项目类型|创新型空间
设计公司|QUCESS清石设计、北京炎黄联合国际工程设计有限公司
项目地点|北京市海淀区原点大厦
项目面积|1800㎡
设计指导|李怡明
项目负责|李亮
主创设计|王学丽、张志浩、张傲研
项目成员|张扬洋、严涛、平凡、王云儒、秦源、滕佳林
完工时间|2025年10月
摄影机构|UOHO 、 建筑空间摄影-陈军
资料来源design+designcool设计酷
夜雨聆风