木模板工程施工工艺
一、材料选用
结构主要采用18厚木胶合模板,底板混凝土施工采用砖胎膜。50×100木枋作为次背楞,M12对拉螺杆,Φ48×3.0钢管及槽钢为主背楞。
二、施工工艺
(1)承台
尺寸在5000*5000mm以下的承台,采用50*100mm@250mm的木枋做横向次龙骨,Φ48×3.0@400的双钢管做竖向龙骨,配以M12对拉螺杆加固,间距400做钢管斜撑

尺寸在5000*5000mm以上的承台,采用50*100mm@250mm的木枋做竖向次龙骨,Φ48×3.0@400的双钢管做主龙骨,并间距400做钢管斜撑

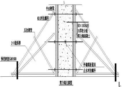
(2)墙体模板
采用18mm厚胶合板,次龙骨采用50×100木枋间距250mm,主龙骨采用Φ48×3.0双钢管,间距450mm,配以M12对拉螺杆(外墙需用止水对拉螺杆)进行加固,水平方向间距500mm,竖直方向450mm

(3)柱模板
尺寸小于600*600
竖楞采用50×100木枋间距200mm,柱箍采用Φ48×3.0双钢管间距450mm,并每隔400间距设置一道对拉螺杆

尺寸小于600*600
柱模板采用18厚双面覆膜多层板,次龙骨采用50x100木枋,角部次龙骨采用50x100木枋,柱箍采用对拉螺杆加16#a槽钢

(4)梁模板
普通梁模板采用18厚胶合板,次龙骨采用50×100木枋,间距250主龙骨采用Φ48×3.0双钢管,间距500,配以M12对拉螺杆加固,间距500×500。
截面500以下梁的梁底设一根立杆支撑。

截面在500以上的梁在梁底设置2根立杆支撑

(5)板模板
板下立柱的间距为1200,架体的步距为1500,次楞采用50×100木枋间距300,主龙骨采用钢管,最大间距1200

(6)楼梯模板
封闭式模板,下部留设出气口和振捣孔,出气孔直径100mm间距500mm,出气口内侧加铺200mm×200mm钢丝网,钢丝网边用20mm宽木条固定。立杆间距为1000mm×1000mm底部设置双向扫地杆,端部加设通长木枋垫板

(7)楼板后浇带模板
浇带采取与其他部分的支撑体系按“自成体系、互不影响”的原则搭设,在主体结构底模板拆除时,后浇带区域的模板和支撑不受邻近模板支撑拆卸的影响;
施工时后浇带两侧支设受荷支撑两排,排距0.8m,沿后浇带方向间距1.0m,并设置剪刀撑,支撑系统要相对独立

三、模板转运
现场楼层模板转运通过楼层转料平台向上转运。
梁、板模板定位控制措施:顶板模板用水准仪跟踪控制。
防止接缝漏浆:模板的板缝采用“硬拼法”做企口接缝,防止漏浆,保证接缝平整。
控制拆模强度:模板拆除时,结构混凝土强度应符合设计要求或规范规定。侧模拆除,以混凝土强度能保证其表面及棱角不因拆模而受损坏时,即可拆除。底模拆除,当设计无要求时,应依据施工验收规范规定,留置同条件的混凝土试块达到所要求的强度后,才可拆除底模。结构拆除底模后,必须设置底部支撑以承受其上部施工荷载;拆除的模板必须清理干净后分类码放。
夜雨聆风