
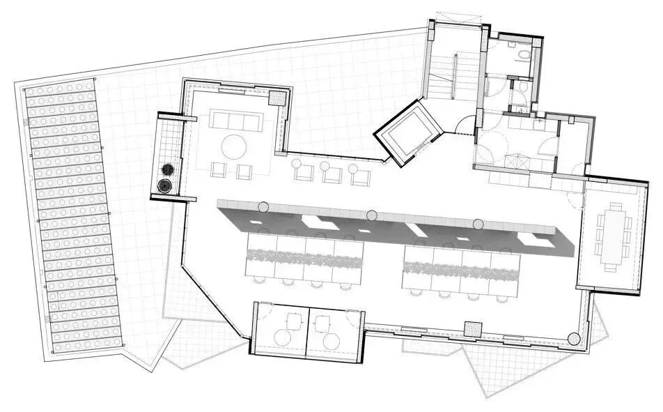
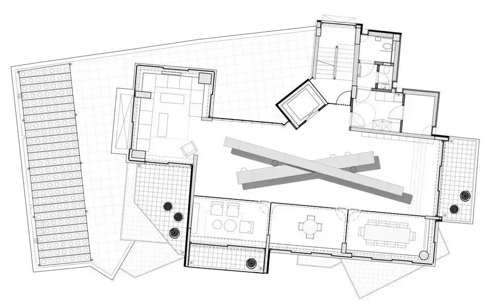
这座已有40年历史的办公楼被剥离至原始结构,并针对当下需求进行了彻底重塑。原有的体量逻辑得以恢复并强化。曾经几何形状冲突、混乱破败的建筑,如今被梳理清晰,重新构建,仿佛由十二座独立建筑组成,每座建筑都有其独特的外立面逻辑和内部氛围,面积2300㎡。

建筑正面采用更为低调的材质表达,以白色、灰色、黑色和金色的微妙色彩变化为特色。覆盖最高正面体量的新幕墙,与宽敞的现浇水磨石台阶相得益彰,清晰地标示出正门入口。建筑背面则采用了更为活泼的色彩搭配。

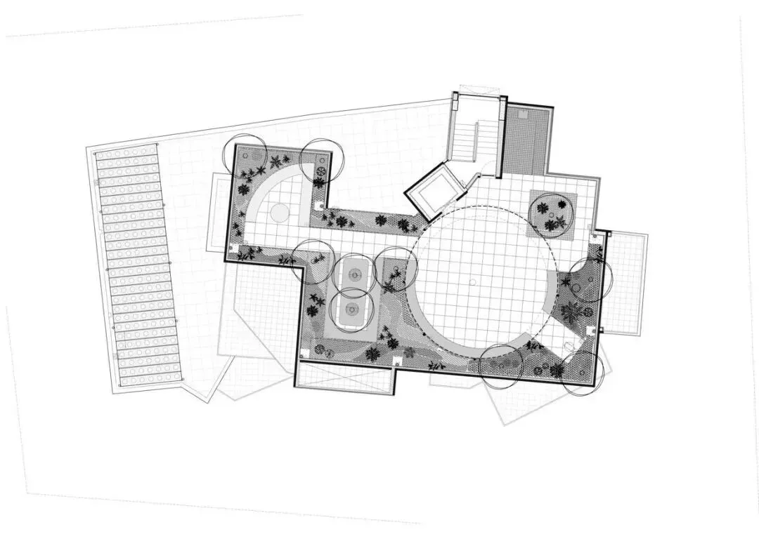
建筑重新定位,以充分利用其毗邻自然公园的优越位置,在原有实墙上开凿出大型开口,不仅拓宽视野,还引入更多自然光,弥补了建筑原有低矮天花板的不足。建筑顶部设有绿色屋顶和圆形凉棚,提供了小型的户外遮阳工作空间,以及一个酒吧和一个大型活动空间,鼓励新的交流与对话形式。

建筑融入了一系列可持续性策略 —— 高性能保温材料和窗户、使用当地天然材料、低能耗机电系统、充电站和自行车停放区,以及集成光伏板,并荣获当地 A+ 级最高能效等级。


































管理推送:设计系团委学生会会展部
编辑:邱一帆
责编:李蓓蓓
一审:王晨雪
二审:张小琴
三审:姚卫权

夜雨聆风