工地全套临建设施CAD图(可下载,可编辑)
点击
上方文字
关注工部郎
工地开工第一步就是布置现场,绘制总平面布置图,布置生产区、生活区、办公区等,为方便各位同行要作,特分享一个临建全套CAD版的图例库全集,里面有各种图,以便于大家在工作面使用。
工地全套临建设施CAD图(可下载,可编辑)
文中只例出部分图版,更多图例见文件中,可免费领取此图库,下载方式见文末。
已关注
关注
重播 分享 赞
01
目录

02
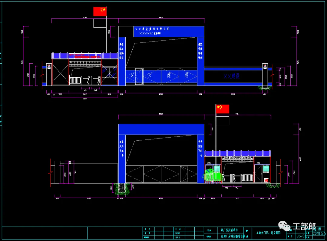
大门(平立剖)




03
旗台、消防台等

04
办公区(含卫生间、食堂等)






05
工人生活区(含晾衣棚、化粪池、停车棚等)








06
施工区(钢筋棚、材料堆场等)

关注公众号,文末点【赞】+点【在看】。转发朋友圈,即可免费领取。 加微信号gongbulang123拉你进群。


扫码关注我们
更多方案、图集、资料等
免费提供

夜雨聆风