悬 挑 脚 手 架 施 工 验 算 公 式 及 软 件 分 享
|
|
|
|
|
|
|
|
|
|
|
|
![]() |
||
|
|
||
|
|
|
|
|
|
|
|
![]() |
|
![]() |
![]() |
|
|
|
02
验算公式及参数说明
一、验算的依据
国标:
GB51210-2016建筑施工脚手架安全技术统一标准
GB 50068-2018建筑结构可靠性设计统一标准
GB50017-2017钢结构设计标准
行业标准:
JGJ/T 231-2021 建筑施工承插型盘扣式钢管脚手架安全技术标准JGJ130-2011建筑施工扣件式钢管脚手架安全技术规范
地标:详地方标准
二、横向水平杆验算
内容:按简支梁计算,承受均布荷载(自重、脚手板、活荷载)。
1、荷载计算
P1:小横杆的自重标准值
P2:脚手板的荷载标准值
Q:活荷载标准值

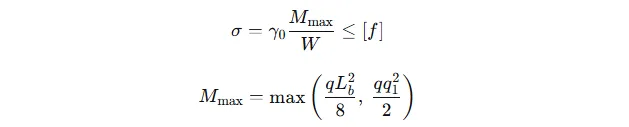
2、抗弯强度验算


Yo:结构重要性系数
W:横杆截面抵抗矩(mm2)
[f]:横杆抗弯强度设计值(N/mm2)
3、扰度验算

[v]:脚手架结构或构配件的变形规定限值(mm),应按脚手架相关的国家现行标准的规定采用。
I:横杆截面惯性矩(nm4)
E:横杆弹性模量(N/mm2)
三、纵向水平杆验算
1、荷载计算

P1:小横杆的自重标准值
P2:脚手板的荷载标准值
Q:活荷载标准值
2、抗弯强度验算


W:杆件截面抵抗矩(mm3)
3、扰度验算
最大挠度考虑为大横杆自重均布荷载与荷载的计算值最不利分配的挠度和
3.1、均布荷载最大挠度计算公式如下:

3.2、集中荷载最大挠度计算公式如下:

两者之和 ≤ [v]
[v]:脚手架结构或构配件的变形规定限值(mm),应按脚手架相关的国家现行标准的规定采用。
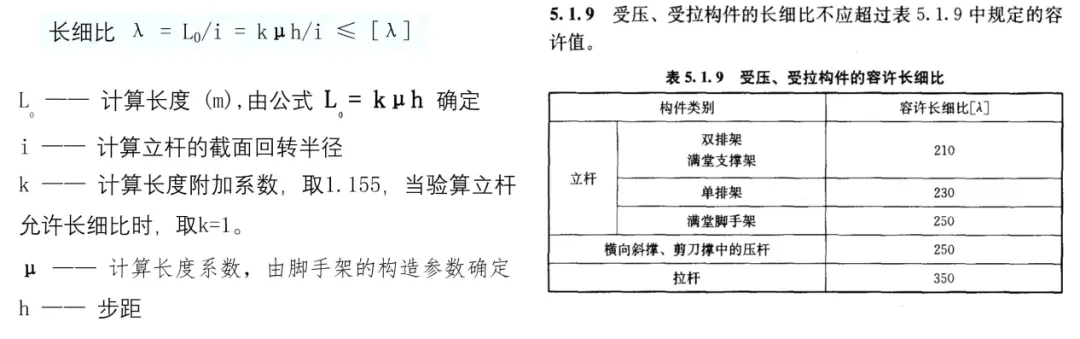
四、立杆稳定性验算
内容:计算立杆轴力、风荷载弯矩,验算长细比和稳定性。
1、轴压力设计值N=1.3NG+1.5NQN=1.3NG+1.5NQ
静荷载标准值:NG=NG1+NG2+NG3+NG4
NG1:每米立杆承受的结构自重标准值(kN/m)
NG2:脚手板的自重标准值(kN/m2)
NG3:栏杆与挡脚手板自重标准值(kN/m)
NG4:吊挂的安全设施荷载,包括安全网(kN/m2)
活荷载标准值NQ:
活荷载为施工荷载标准值产生的轴向力总和,内、外立杆按一纵距内施工荷载总和的1/2取值。
2、风荷载设计值产生的立杆段弯矩Mwd的计算

Hc:连墙件间竖向垂直距离。
la:立杆纵距(m)
3、立杆稳定性验算

无风荷载:

Yo:结构重要性系数
N:立杆的轴心压力设计值
%:轴心受压立杆的稳定系数,由长细比入的结果查表得到
[f]:抗弯强度设计值(N/mm2)A:立杆的截面面积(mm2)
有风荷载:

Y0:结构重要性系数
N:采用组合风荷载时,立杆的轴心压力设计值N = 1.30NG +0.9×1.50NQ
%:轴心受压立杆的稳定系数,由长细比入的结果查表得到
Mw:计算立杆段由风荷载设计值产生的弯矩
W:立杆净截面模量(抵抗矩)
[f]:抗弯强度设计值(N/mm2)
五、连墙件承载力验算
1、轴向力设计值

其中:
N1w:风荷载产生的连墙件轴向力设计值(kN),应按照下式计算:
N = 1.50*Wk*Aw
Wk:风荷载标准值
Aw:每个连墙件的覆盖面积内脚手架外侧的迎风面积
Aw=2倍横向间距x2倍纵向间距;
N0:连墙件约束脚手架平面外变形所产生的轴向力设计值(kN),单排作业脚手架应取2KN;双排作业脚手架应取3KN
2、强度验算



内容:抗弯、抗剪、挠度、整体稳定性
1、抗弯验算:

2、扰度验算:


4:稳定性验算:

七、锚固段与楼板连接的计算


八、钢丝绳
脚手架所使用的钢丝绳承载力应具有足够的安全储备,钢丝绳安全系数K取值应符合下列规定:
1、重要结构用的钢丝绳安全系数不应小于9;
2、一般结构用的钢丝绳安全系数应为6;
3、用于手动起重设备的钢丝绳安全系数宜为4.5;用于机动起重设备的钢丝绳安全系数不应小于6;
4、用作吊索,无弯曲时的钢丝绳安全系数不应小于6;有弯曲时的钢丝绳安全系数不应小于8;
5、缆风绳用的钢丝绳安全系数宜为3.5
1、花篮拉杆式悬挑脚手架验算

需补充以下几方面对其进行验算:
上拉杆件验算
1、上拉杆强度验算
2、花篮螺栓验算
3、吊耳板计算
5、钢拉杆与吊耳板连接焊缝验算
6、上拉与主梁连接吊耳板轴销验算
7、上拉杆件与建筑物连接锚固螺栓验算
4、吊耳板与型钢主梁连接焊缝验算
主梁与建筑物节点验算(螺栓/焊缝)
2、与扣件式相比,主要有以下几方面不同:

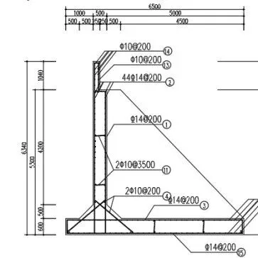
3、阳角部位整体验算
![]() |
|
阳角部位形式较多,此种形式验算时需对两个方向四道联梁的抗弯、抗剪、挠度进行验算,每道悬挑主梁分别对抗弯、抗剪、挠度、稳定性、悬挑主梁与结构连接节点进行验算,具体公式参考前文。 |
![]() |
|
此类型的验算需对上拉杆件、主梁与建筑物节点、联梁进行验算 |
02
安全计算软件(免费使用)
|
|
![]() |
![]() |
★
往期更多工程技术内容提取
★
★
项目施工部署三维策划(精细版)
2025-10-17
钢 结 构 网 架 整 体 提 升 详 细 三 维 方 案
2025-04-07
BIM技术在大跨度钢结构、双曲线金属屋面项目施工中详细应用
2025-03-14
挖方路基边坡防护设计标准化CAD图纸
2026-03-19
顶 管 施 工 详 细 方 案 (优 质 方 案)
2026-03-03
冷热源机房管道组合装配与设计BIM图集
2026-02-26
2022-2025年度工程建设质量QC成果汇编
2025-09-05
1000+项目BIM报奖成果参考,助力报奖素材撰写(限时收藏)
2026-01-21
BIM技术辅助,连续梁挂篮悬臂施工方案
2024-09-21
各类挡土墙设计参考样图CAD(含钢筋混凝土)
2026-03-10
各类施工机械、堆场标准化CAD图块
2025-06-10
住 宅 楼 ALC 内 墙 板 施 工 方 案
2026-01-06
机电安装标准化工艺(附支吊架标准做法)
2025-07-31
机电安装关键节点质量控制三维图集
2025-04-29
地库机电综合管线BIM优化布置原则及注意事项,经验总结版
2024-10-21
BIM技术在某EPC科技创新中心项目中的应用(模版)
2026-03-17
路基设计标准化图集(路堤、路堑边坡防护及锚固工程)
2026-03-05
框 架 玻 璃 幕 墙 节 点 构 造 图 集
2026-02-12
精装修节点构造BIM三维图集(墙面&楼地面&吊顶等)
2025-11-20
管道荷载分析及支吊架受力验算公式、参考CAD图(实际项目)
2026-03-28
结构加固CAD详细节点设计图(常见方法)
2026-03-27
水泥土搅拌桩止水帷幕施工要点(详 细)
2025-12-24
二次结构深化设计及BIM排砖深化模型(典型)
2025-12-05
桥梁支架设计与施工相关要求,附参考图(收藏)
2026-04-04
某飞机检修库网架“地面拼装,分区提升”专项施工方案
2026-04-01
施工平面图快速布置软件(懒人神器),限时收藏!
2026-03-31
A3版 80页 图文PPT 某中学施工项目 技术标
2026-03-23
轻 质 隔 墙 板 施 工 指 导 图 集 243 页
2026-03-23






夜雨聆风



































