PDF转CAD 软件完美识别 英文图纸转中文
图纸是PDF图纸 怎么搞?
手工绘制吗?工作效率太低了
需要PDF转CAD的用户联系我们
转完的CAD图纸 所有软件均可识别
大大提高了工作效率
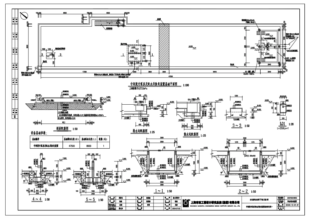
PDF图纸

上图已转CAD图纸 软件可识别

PDF图纸

上图已转CAD图纸 软件可识别

PDF图纸

上图已转CAD图纸 软件可识别


转PDF添加微信

PDF转CAD 软件完美识别 英文图纸转中文

图纸是PDF图纸 怎么搞?
手工绘制吗?工作效率太低了
需要PDF转CAD的用户联系我们
转完的CAD图纸 所有软件均可识别
大大提高了工作效率
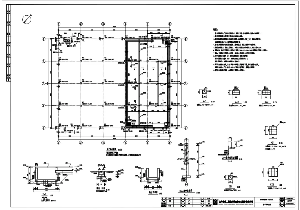
PDF图纸

上图已转CAD图纸 软件可识别

PDF图纸

上图已转CAD图纸 软件可识别

PDF图纸

上图已转CAD图纸 软件可识别


转PDF添加微信
