盘扣式悬挑式脚手架施工方案word220页(可编辑、可下载)
|
|
|
|
| 加入2026《市政路桥实战参考》会员 |
| 2025《市政路桥实战参考》会员资料 |
文末有下载方法:

目录
第一章 工程概况
第二章 编制依据
第三章 施工计划
第四章 施工工艺技术
第五章 施工安全、质量保证措施
第六章 施工管理及作业人员配备和分工
第七章 验收要求
第八章 应急处置措施
第九章 计算书及附图


本项目包括6幢公寓楼和1幢商业配套办公楼,其中1#、5#、6#、7#楼为21层,2#、3#楼为25层,1幢6层商业配套办公楼,其中高层1#、2#、3#楼、5#、6#、7#楼自三层开始悬挑,共计三至四挑至屋面构架层,采用采用盘扣式悬挑脚手架,具体楼幢详见下表。

三层及三层以下楼层及商业配套楼幢采用落在式脚手架,详见落地架专项方案。工程外架采用盘扣式外架,立杆间距纵距1800(最大值)、横距900,步距2000,悬挑楼幢均从三层顶开始悬挑,其中2#、3#楼悬挑四挑,1#、5#、6#、7#楼悬挑三挑。最大悬挑高度为18.90米,本方案中涉及盘扣式外架的楼幢如下表所示:


三、 危险性较大的分部分项工程的概况
根据本工程特点和施工进度要求,本工程外脚手架计划分两种类型搭设:
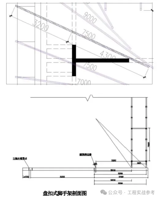
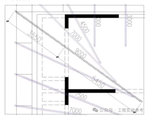
本工程悬挑式脚手架采用16#工字型钢悬挑梁、盘扣式双排钢管(φ48.3×3.2)脚手架,步距2.0m, 立杆纵向间距1.8m (最大值),立杆横向间距0.9m, 悬挑工字钢卸载钢丝绳采用6×19中14.0/15.5mm, 架体距离建筑物主体结构边0.30m (距建筑物主体结构距离超0.15m部位,采用层层增加填芯杆加兜网方式防护),连墙件随楼层两跨设置(两步两跨)。
悬挑架,悬挑挑段最大高度21.00米。全部采用16#工字钢,“U”型锚环直径20mm, 拉环直径20mm, 外部采用14#钢丝绳进行卸载(不参与计算)。立杆横距0.9米,跨距1.80米,步距2.00米。
外挑架计算高度,取最不利的工况组合,即悬挑层最大悬挑高度21.00m, 按最不利工况计算最上挑段工字钢距地64.60米,计算受风载影响参数。另对对悬挑钢平台工况进行计算。
根据住房和城乡建设部31号文件建办质[2018]31号《危险性较大的分部分项工程安全管理办法》有关问题的通知,确定的危险性较大的分部分项工程范围,本脚手架工程施工前需编制专项方案。

第四章 施工工艺技术
以下参数表中主梁外挑长度,均从持力梁的外边开始至外挑端,内锚长度为持力梁的外边至内尾端,后期计算时,外挑长度为本表长度加0.1米,尾锚长度为本表长度减0.4米。(尾锚环按300mm, 前锚环位置为持力梁的外边向内100mm)















二、主要施工工艺
盘扣式落地架搭设流程:回填土表层硬化(强度C20)→立杆定位→铺大板→立杆→纵、横向扫地杆→纵、横向横杆→设置卸荷钢丝绳→立杆→纵、横向横杆→外斜杆/剪刀撑→连墙件→铺脚手板→扎防护栏杆→扎安全网。
盘扣式悬挑架搭设流程:U形预埋环预埋件设置→安装悬挑工字钢主梁→悬挑主梁上拉支撑杆件设置→立杆定位点设置→立杆→纵、横向扫地杆→纵、横向横杆→设置卸荷钢丝绳→立杆→纵、横向横杆→外斜杆/剪刀撑→连墙件→铺脚手板→扎防护栏杆→扎安全网
工艺流程:卸料平台安装流程:安装检查→平台组装→平台吊装→栏杆、脚手板安装→验收备注:架体搭设高度为超出施工面1.50米,如下悬挑层下方,则搭高高度在悬挑层下约0.30米。
(一)施工前准备
a、认真编制承插型盘扣式支架的施工方案和做好施工操作安全、技术交底资料。
b、项目部组织施工管理人员及生产工人认真学习施工图纸和承插型盘扣式支架的施工方案,对工人作详尽的书面及口头施工安全、技术交底工作。
c、组织承插型盘扣式支架的材料进场,进场后按计划堆放。
d、进入施工现场的钢管支架及构配件质量应在使用前进行复检。
e、经验收合格的构配件应按品种、规格分类码放,并应标挂数量规格铭牌备用。构配件堆放场地应排水应畅通,无积水。
f、根据现场实际情况考虑是否需要设置脚手架连墙件,应提前与相关部门协商处理 。
g、安排施工班组依工程要求搭设承插型盘扣式支架。
(二)外架搭设与拆除
a、外架搭设前应按图纸布置
(1)预埋式悬挑工字钢焊接处预埋件和下撑焊接处预埋件和
(2)平铺式悬挑工字钢的U型锚固螺栓。
b、悬挑工字钢、下撑件与联梁按方案布置。
c、外架搭设前应先焊接钢筋头,放置倒扣的可调顶托定位,然后按先立杆后水平杆再斜杆的顺序搭设,形成基本的架体单元,应以此扩展搭设成整体支架体系。
d、在同一水平高度内相邻立杆连接套管接头的位置宜错开。
e、水平杆扣接头与连接盘的插销应采用铁锤击紧至规定插入深度的刻度线。
f、每搭完一步架体后,应及时校正水平杆步距,立杆的纵、横距,立杆的垂直偏差和水平杆的水平偏差。立杆的垂直偏差不应大于外架总高度的1/500,且不得大于50mm。
g、在多层楼板上连续设置外架时,应保证上下层支撑立杆在同一轴线上。h、混凝土浇筑前施工管理人员应组织对搭设支架进行验收,并确认符合专项施工方案要求后浇筑混凝土。
i、拆除作业应按先搭后拆,后搭先拆的原则,从顶层开始,逐层向下进行,严禁上下层同时拆除,严禁抛掷。j、分段、分立面拆除时,应确定分界处的技术处理方案,并应保证分段后架体稳定。
三、施工工艺及操作要求
(一)搭设流程
1. 预埋型钢悬挑盘扣脚手架联梁布置。
(1) 平铺式悬挑:砼浇筑前按方案设置直径20mm的U型锚固螺栓,砼浇筑后采用16#工字钢平铺悬挑出结构面。
(2)工字钢按上述方法固定好后。(备注:非立杆位置,在悬挑工字钢上按方案铺设16号工字钢作为联梁,联梁横向间距为900mm, 应满焊于悬挑工字钢之上。)
(3)在工字钢(及连梁顶面)采用带卡件基座固定在工字钢上部,再使用可调托座倒扣在联梁工字钢上定位。
2. 然后放置底立杆,第一排横杆;
3. 放置第二排水平横杆,锁紧插销,形成一个筒形体系;
4. 铺设操作层钢脚手板,依次搭设上部立杆、横杆,高度超过1.8m应系安全带;
5. 在搭设外架同时,在预定位置搭设安全通道,并搭设钢跳板作为通道平台;
6. 将架体搭设至需要高度,并在架体外侧挂防尘网和密目网。
7. 转角处脚手架的搭设转角部位脚手架的水平构造要求,为了保证转角部位的脚手架整体刚度和稳定性,要求在转角部位每跨加水平斜杆并将其固定在立杆上。

(二)水平悬挑梁设置方法
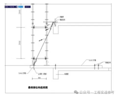
1)水平悬挑梁采用16#工字钢,具体布置情况详见详图。
2)U 型螺栓采用o16圆钢加工,预埋至砼板、砼梁底部,4根1.5m长直径12mmHRB400钢筋放置U 型筋上部。每根悬挑梁根部设二道U 型螺栓,锚固段边口处设一道,工字钢与U 型螺栓间隙用木塞紧,并用铁钉固定,工字钢上部采用带卡扣的立杆支座用以定位,立杆套座其外,如下图:



备注:1、因叠合板130mm(60+70) 桁架筋出底板高度仅35mm 高度,采用计算书中的2根16钢筋部分位置不能实施,为便于施工,在同等级螺纹钢、等截面代换的前提下,本方案采用4根12代替2根16。 (查表:4根12,钢筋截面积为452mm2>2 根1 6 , 钢筋截面积为402mm
2)当型钢悬挑梁与建筑结构采用螺栓钢压板连接固定时,钢压板尺寸不应小于160*100*10mm (长×宽×厚);

备注:当悬挑工字钢位于阳台等悬挑构件位置时,为避免前锚环对后砌墙体的影响,可将前锚环向外移出后砌墙面100mm, 但前支点垫板仍垫于结构梁中心位置,两侧采用方木塞实。
3)做为安全储备及保障,对悬挑梁进行斜拉,吊环设置在上一层楼面边梁上,吊环采用020圆钢加工,锚固在砼内的长度不小于300mm,每根钢丝绳头不少于4个同规格的绳卡固定,每个绳卡间距女100mm, 端面留安全长度150mm, 卡盖朝主绳方向。悬挑处设置的上拉或下撑与工字钢角度尽可能保持在45°~60°之间,且应在立杆底部节点位置。

。。。。。。
篇幅过长,共220页,以下略
| 加入2026《工程实战参考》会员 |
|
|
目录一:按日期汇编
|
|
|
|
|
|
|
|
|
|
|
|
|
|
|
|
|
|
|
|
|
|
|
|
|
|
|
|
|
|
|
|
|
|
|
|
|
|
|
|
|
|
|
|
|
260416. 盘扣式悬挑式脚手架施工方案word220页
资料下载方式
点下面关注微信公众号:
在工程实战参考公众号对话框回复:
260416
3天内下载,手慢无

夜雨聆风
