钢板桩支护专项施工方案word(会员资料)
| 加入2026《市政路桥实战参考》会员 |
| 2025《市政路桥实战参考》会员资料 |
|
|
| 2025《工程实战参考》会员资料 |
加入2026年度《市政路桥实战参考》会员

目 录
第一章 工程概况
第一节 工程概况
第二节 工程地质条件
第三节 设计概况
第二章 编制说明及依据
第一节 编制依据
第三章 施工计划
第一节 材料计划
第二节 设备计划
第四章 施工工艺技术
第一节 总体施工流程
第二节 截排水措施
第三节 钢板支护桩施工
第四节 土方开挖施工
第五节 挂网喷射砼施工
第六节 质量检验
第七节 边坡支护施工监测
第五章 确保安全技术措施
第一节 安全保证体系
第二节 安全保证措施
第三节 防火安全措施
第四节 防台风安全措施
第五节 夜间施工安全技术措施
第六节 土方开挖安全技术措施
第七节 基坑截排水安全技术措施
第八节 边坡顶部安全防护措施
第六章 确保安全应急预案
第一节 防台风、暴雨应急预案
第二节 触电应急预案
第四节 火灾应急预案
第五节 安全预案责任人员表
第六节 应急预案物资配备表
第七章 施工进度计划安排
第八章 劳动力计划表
第一章 工程概况
第一节 工程概况
拟建工程场地原始地貌属龙津河Ⅰ级阶地地貌单元,总体地势平坦,地形标高介于318.40~318.80m(黄海高程),现状基本为空地,高差约0.4m。勘察期间,测得周边各钻孔孔口标高介于318.43~318.75m。场地西侧拟建筏板外约5.3m为军用光缆,施工时应采取适当的保护措施;其余各侧均为空地。拟建工程筏板垫层底标高为302.93m,场地拟平整标高至307.10~311.60m;基坑深度约为4.17~8.67m。基坑安全等级为二级。勘探期间,地下水稳定水位埋深为2.00~8.50m,标高310.55~313.36m。
主要参建单位如下:
建设单位:
监理单位:
勘察单位:
设计单位:
施工单位:
第二节 工程地质条件
本基坑支护的土层主要由杂填土、含角砾粉质粘土、粉质粘土组成。
各岩土体的分布及其特征分述如下表:
|
土层 |
厚度 |
性质 |
天然快剪指标 |
|
|
C(KPa) |
Ф(度) |
|||
|
①杂填土 |
0.5~5.30m |
松散,稍湿,成分以粘性土为主,含少量建筑垃圾、生活垃圾 |
10 |
12 |
|
②耕土 |
0.5~0.8m |
松散,湿,成分以粘性土为主,含大量有机质 |
14 |
10 |
|
③淤泥 |
8.2m |
软塑、流塑状,饱和,成分以粘性土、腐殖质为主 |
12 |
6 |
|
④粉质粘土 |
1.7~30.4m |
可塑,湿,成分以粘粒、粉粒为主,含少量细砂 |
22 |
16 |
|
⑤含角砾粉质粘土 |
可塑,湿,成分以粘粒、粉粒为主,含少量角砾、碎石 |
24 |
18 |
|
|
⑥粉质粘土 |
可塑,湿,成分以粘粒、粉粒为主,含少量细砂 |
22 |
16 |
|
|
⑦含角砾粉质粘土 |
可塑,湿,成分以粘粒、粉粒为主,含少量角砾、碎石 |
24 |
18 |
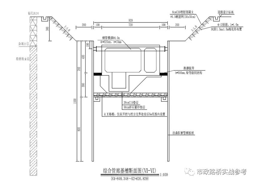
本基坑设计遵循“动态设计,信息化施工”的原则。根据以往类似土层地区的成功经验,该基坑采用挖3深米1:1放坡(破面喷射砼)+采用拉森IV新型钢板桩(钢管横撑@3.0m)的支护型式;部分路段由于临近高层住宅区,须加强支护,故采用旋挖支护桩结合放坡的支护型式进行支护。
1、本工程基坑安全等级为二级。本工程侧壁重要性安全系数为1.00。
2、坑顶周边超载按20Kpa考虑,距坑顶1.5m外,15m范围内满布;施工堆载不可超过该项指标。
3、支护型式:
3.1、放坡支护:放坡坡面采用80mm厚C20细石混凝土喷面,内挂Ф6.5@300×300单层{双向}钢筋网。
3.2、钢板桩支护:采用拉森IV新型钢板桩,桩长为12m和15m两种;利用Ф=325mm钢管横撑(间距3.0米)。
第二章 编制说明及依据
第一节 编制依据
1、 提供的《岩土工程勘察报告》。;
2、由建设单位提供的相关设计图纸、设计技术交底;
3、工程中依据的主要规范、规程和标准及文件:
本工程对检验批、分项、子分部的质量评定严格按《建筑工程施工质量验收统一标准》(GB50300-2016)进行,应用于本工程的施工主要技术规范:
国标《建筑工程施工质量验收统一标准》(GB50300-2013);
国标《建筑边坡工程技术规范》(GB50330-2013);
国标《建筑地基基础设计规范》(GB50007-2011);
国标《建筑抗震设计规范》(GB50011-2010);
国标《混凝土结构设计规范》(GB50010-2010);
国标《建筑地基基础工程施工质量验收规范》(GB50202-2016);
《建筑施工土石方工程安全技术规范》(JGJ180-2009);
行标《建筑桩基技术规范》(JGJ94-2008);;
国土资源部《滑坡防治工程设计与施工技术规范》(DZ/T 0219-2006);
《室外排水设计规范》(GB50014-2006);
《建筑基坑支护技术规程》(JGJ120-2012);
《施工现场临时用电安全技术规范》(JGJ46-2005);
《建筑桩基技术规范》JGJ94-2008;
《建筑基桩检测技术规范》JGJ106-2014;
《建筑施工高处作业安全技术规范》JGJ80-2011;
4、《工程建设标准强制性条文》、《中华人民共和国安全生产法》、《中华人民共和国建筑法》及《龙岩市建设工程文明施工检查评分标准》等国家和地方相关法规。
5、建设行政主管部门下发的文件规定:
闽建建[2010]41号文件《福建省建筑边坡与深基坑工程管理规定》;
闽建建[2009]12号文件《关于建立建设工程施工现场重大危险源报告制度的通知》;
闽建建[2009]24号文件《福建省建设厅关于转发危险性较大的分部分项工程安全管理办法的通知》;
第三章 施工计划
第一节 材料计划
本工程投入的施工材料品种多,材料供应部门必须根据施工进度计划精心安排各类材料的进场计划,保证现场施工计划的顺利实施。
1、材料管理
1.1、所有材料采购进场之前,应按有关规范的规定进行取样试验,试验合格后方可进场,严禁不合格材料使用在本工程上。
1.2、以材料员为首,成立项目组内部采供部,建立材料出库、入库制度,严格出入库手续,按计划采购、供应,以减少浪费。
1.3、经常检查材料的质量和使用情况,凡发现不符合质量要求的材料,立即采取相应的措施,拒绝不合格材料流入本工程。
1.4、所有现场材料、半成品,均应按施工总平面布置图做好水泥硬化处理,分门别类地堆放,并按先进先用的原则进行。钢筋堆放应有地分隔,并设专人管理,按计划供应。
2、主要材料进场计划
2.1拉森Ⅳ新型钢板(钢板桩打设前需除锈、调直,插口涂黄油),Ф=325mm横撑钢管。
2.2 HRB400E(III)级钢筋。;钢材均应符合GB50204-2015要求,不得采用改制材料。
2.3 水泥采用P.042.5R普通硅酸盐水泥。喷面采用的混凝土、垫层混凝土强度等级为C20。
2.4 泄水管采用∅50PVC泄水管。
2.5焊条:电弧焊所采用的焊条,其性能应符合现行国家标准《碳钢焊条》GB5117或《低合金钢焊条》GB5118的规定 。
第二节 设备计划
1、工程投入的主要施工机械设备情况描述
1.1、机械设备配备
拟投入的主要施工机械设备表
|
序号 |
机械或设备 名称 |
型号规格 |
单位 |
数量 |
国别 产地 |
制造年份 |
额定功率(KW) |
生产 能力 |
进场计划 |
|
1 |
液压振动沉桩机 |
Z550型 |
台 |
2 |
75 |
完好 |
2017.8.15 |
||
|
2 |
电焊机 |
BX1-500 |
台 |
3 |
上海 金龙 |
2011 |
7.5 |
完好 |
2017.8.15 |
|
3 |
喷射机 |
HPC-V |
台 |
1 |
国产 |
2005 |
30 |
完好 |
2017.8.15 |
|
4 |
钢筋调直机 |
GT4/14 |
台 |
1 |
上海 |
2006 |
4 |
完好 |
2017.8.15 |
|
5 |
钢筋切断机 |
GJ32-1 |
台 |
1 |
上海 |
2006 |
3 |
完好 |
2017.8.15 |
|
6 |
钢筋弯曲机 |
QW40 |
台 |
1 |
上海 |
2006 |
3 |
完好 |
2017.8.15 |
|
7 |
反铲挖掘机 |
PC-200 |
台 |
1 |
厦门 |
2005 |
/ |
完好 |
2017.8.15 |
|
8 |
自卸汽车 |
8T |
台 |
15 |
重庆 |
2008 |
/ |
完好 |
2017.8.15 |
|
9 |
水准仪 |
DS-Z32X |
台 |
1 |
天津 |
2012 |
/ |
完好 |
2017.8.15 |
|
10 |
全站仪 |
NTS-352LL |
台 |
1 |
南方 |
2013 |
/ |
完好 |
2017.8.15 |
2、机械故障处理
在施工中由于不可预见因素,造成机械故障时,采用的主要补救措施有:加强机械设备管理,按公司机械保养管理制度进行检查维修,以减少故障率;在现场配以备用机械,可随时启用;常见故障易损零件配备于现场仓库中,可随时就近调用;项目部在施工时应安排机械使用值班人员,跟班作业。
3、设备管理控制
3.1、公司通过对生产设备的控制管理,确保设备保持良好的技术状况,以满足工程需要。
3.2、公司编制机械设备购置计划,办理设备的购置、验收、入库、报废手续。
3.3、建立主要机械技术档案,及时准确做好各项资料,定期检查设备的使用情况。
3.4、根据需要,组织机械操作人员进行岗位培训。组织机修人员对机械设备进行日常的保养、维修,严禁机械带病作业。
3.5、落实定人、定机、定岗位的责任制,定期组织人员检查机械操作人员严格执行安全技术操作规程情况和机械设备的使用情况。
3.6、机械设备进场后,项目机械管理员应组织相关人员安装、验收,对验收结果进行记录。使用前对操作人员进行安全技术交底。
3.7、项目机械管理员要认真落实定人、定机、定岗位的“三定”制度,凡规定必须具有操作证才能操作的机械设备,操作人员必须持有效证件上岗。
3.8、主要大中型机械设备的操作人员要认真填写《机械设备运转记录》。多班作业时,要严格执行交接班制度,填写《机械交接记录》。
3.9、公司每个月对本项目的机械设备施工情况进行一次检查,项目各班组长及设备管理人员每月至少进行两次机械设备施工情况检查,将检查情况填写在《机械设备检查记录表》。
第四章 施工工艺技术
第一节 总体施工流程
1、总体施工流程
本场地边坡边坡支护结构形式主要有:放坡喷锚护坡+钢板桩。总体施工流程为:
1、钢板支护桩:测量放样→上部3米开挖及喷砼→钢板桩施工→坡顶截水沟施工→土方分层分段开挖→钢管横撑施工→土方分层分段开挖至基底标高→坑底排水设施施工。
第二节 截排水措施
本工程基坑开挖深度大部分区域已达到粉质粘土层,在基坑顶两侧布置降水井进行降水。同时在基坑顶和基坑底两侧设置300×300排水沟进行明排。
水沟沟底泄水坡度按 i≥3‰控制,排水方向可根据现场实际情况确定。集水井沿基坑路线约30~50m两侧各布置,集水井位置根据基坑开挖时的出水情况,调整集水井的数量及布置。
如果开挖期间出水量异常,应及时增补疏干井,疏干井增加数量应根据现场实际出水量而定。集水井用污水泵抽取集水坑中地下水排入坡顶截水沟并引向市政雨水管道及现有排水沟。场地中截排水沟应及时清除淤积,保持水流通畅。由于基坑面积较大较长,施工时结合底板后浇带设置盲沟或盲管,加强基坑排水,防止基坑大面积积水。
泄水管采用50mmPVC管,L=1.25m,i=10%,管壁钻成梅花孔,用不小于10目的密目网包裹,管周用碎石填充,泄水孔水平间距1.5m。
第三节 钢板桩施工
本工程基坑开挖采IV型12m及15m长拉森钢板桩支护。拉森钢板桩采用履带式液压挖土机KATO-1250的液压振锤的锤机施打,施打前先熟悉地下管线、构筑物的情况,准确放出支护桩中心线,控制打入精度。
1. 钢板桩施工的一般要求
(1)钢板桩的设置位置要符合设计要求,便于管廊施工,尤其是在构筑物边缘外留有支模、拆模的余地。
(2)基槽护臂钢板桩的平面布置形状应尽量平直整齐,避免不规则的转角,以便标准钢板桩的利用和支撑设置。各周边尺寸尽量符合板桩模数。
(3)在整个管廊施工期间,挖土、吊运、扎钢筋、支模板、浇筑混凝土、回填等施工作业中,严禁碰撞支撑,禁止任意拆除支撑,禁止在支撑上任意切割、电焊,也不应在支撑上搁置重物。
2. 钢板桩施工的顺序
(1)钢板桩位置的定位放线
(2)施打钢板桩
(3)挖土
(4)管廊工程施工
(5)拔除钢板桩回填中粗砂
3. 钢板桩的检验、吊装、堆放
(1)钢板桩的检验
对钢板桩,一般有材质检验和外观检验,以便对不合要求的钢板桩进行矫正,以减少打桩过程中的困难。
A外观检验:包括表面缺陷、长度、宽度、厚度、高度、端部矩形比、平直度和锁口形状等项内容。检查中要注意:a)对打入钢板桩有影响的焊接件应予以割除;b)割孔、断面缺损的应予以补强;c)若钢板桩有严重锈蚀,应测量其实际断面厚度。原则上要对全部钢板桩进行外观检查。
B材质检验:对钢板桩母材的化学成分及机械性能进行全面试验。包括钢板的化学成分分析,构件的拉伸、弯曲试验,锁口强度试验和延伸率试验等项内容。每一种规格的钢板桩至少进行一个拉伸、弯曲试验。每20-50t重的钢板桩应进行两个试件试验。
(2)钢板桩吊运
装卸钢板桩宜采用两点吊。吊运时,每次起吊的钢板桩根数不宜过多,并应注意保护锁口免受损伤。吊运方式有成捆起吊和单根起吊。成捆起吊通常采用钢索捆扎,而单根吊运常用专用的吊具。
(3)钢板桩堆放:钢板桩堆放的地点,要选择在不会因压重而发生较大沉陷变形的平坦而坚固的场地上,并便于运往打桩施工现场。堆放时应注意:
A堆放顺序、位置、方向和平面布置等应考虑到以后的施工方便;
B钢板桩要按型号、规格、长度分别堆放,并在堆放处设置标牌说明;
C钢板桩应分层堆放,每层堆放数量一般不超过5根,各层间要垫枕木,垫目间距一般为3-4米,且上、下层垫木应在同一垂直线上,堆放的总高度不宜超过2米。
4. 钢板桩施打
拉森钢板桩施工关系到施工止水和安全,是本工程施工最关键的工序之一,在施工中要注意以下施工有关要求:
(1)全线采用Ⅳ型12m及15米长密扣拉森钢板桩。拉森钢板桩采用履带式挖土机(带震动锤机)施打。
(2)打桩前,对钢板桩逐根检查,剔除连接锁口锈蚀、变形严重的钢板桩,不合格者待修整后才可使用。
(3)打桩前,在钢板桩的锁口内涂油脂,以方便打入拔出。
(4)在插打过程中随时测量监控每块桩的斜度不超过2%,当偏斜过大不能用拉齐方式调正时,拔起重打。
施工中应根据具体情况变化施打顺序,采用一种或多种施打顺序,逐步将板桩打至设计标高。
(5)密扣且保证开挖后入土不小于2米,保证钢板桩顺利合拢;特别是工作井的四个角要使用转角钢板桩,若没有此类钢板桩,则用旧轮胎或烂布塞缝等辅助措施密封。
(6)打入桩后,及时进行桩体的闭水性检查,对漏水处进行焊接修补,每天派专人进行检查桩体。
(7)内支撑架设:拉森钢板桩支护钢管内支撑间距按3.5米布设。
5. 挖土
(1)土方开挖应分段连续施工,开挖至板桩以下1.5米处,进行钢管支撑施工。
(2)围囹制作安装:围囹及支撑根据不同的开挖深度按设计要求设置,根据设计位置在钢板桩内壁上焊围囹托架,然后吊装H型钢围囹并焊接加固。
(3)因本工程开挖区一般采用集水井集水潜水泵排水法,排除基槽渗水,保持基坑内无积水,减少土侧压力对扣板桩影响,便于管廊施工。
(4)基坑周边(约3.0米)范围内尽量避免堆载。
(5)开挖过程中注意支护体系的变形观察。
(6)基坑内作业时,有专职安全员负责。
(7)在基坑开挖过程中需要注意的问题:
钢板桩的垂直度及搭接十分重要,当钢板桩未贴靠在围囹上部分,需做加垫处理,使钢板桩的压力传到围囹及支撑上,支撑的材料、制作、焊接必须严格按图施工。
其次是挖土和支撑的架设施工过程必须紧密配合,挖土过程要保证安全的前提下,迅速为支撑施工创造工作面,支撑结构必须能较快地产生整体刚度或预紧力,两者配合就能较好地利用软土施工中的时空效应,有效地控制围护体系在受力后的变形。施工中切不可超挖和不及时施加支撑,土方施工要求分层均匀高效,以使支护结构处于正常的受力状态。
6. 钢板桩的拔除
基槽回填压实后,尽早拔除钢板桩,加快扣板桩周转速度。桩后马上用中粗砂将桩孔灌实。
(1) 拔桩方式
本工程拔桩采用振动锤拔桩:利用振动锤产生的强迫振动,扰动土质,破坏钢板桩周围土的粘聚力以克服拔桩阻力,依靠附加起吊力的作用将桩拔除。
(2) 拔桩时应注意事项
A拔桩起点和顺序:对封闭式钢板桩墙,拔桩起点应离开角桩5根以上。可根据沉桩时的情况确定拔桩起点,必要时也可用跳拔的方式。拔桩的顺序最好与打桩时相反。
B振打与振拔:拔桩时,可先用振动锤将板桩锁口振活以减小土的粘附,然后边振边拔。为及时回填拔桩后的土孔,当把板桩拔至比基础底板略高时暂停引拔,用振动锤振动几分钟,尽量让土孔填实一部分。
C对引拔阻力较大的钢板桩,采用间歇振动的方式,每次振动15min,振动锤连续不超过1.5h。
7. 钢板桩土孔处理
对拔桩后留下的孔桩,及时采用中粗砂灌入密实。
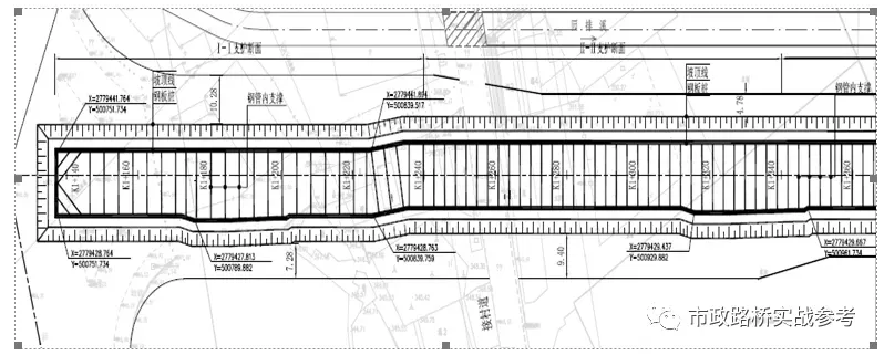
2、钢板桩基坑支护布置平面图:











①沟槽开挖与地基处理应符合下列规定:
主控项目:
㈠原状地基土不得扰动、受水浸泡或受冻;
检查方法:观察,检查施工记录。
㈡地基承载力应满足设计要求;
检查方法:观察,检查地基承载力试验报告。
㈢进行地基处理时,压实度、厚度满足设计要求;
检查方法:按设计或规定要求进行检查,检查检测记录、试验报告。
一般项目:
㈣沟槽开挖的允许偏差应符合表4.6.1的规定。
表4.6.1 沟槽开挖的允许偏差
|
序号 |
检查项目 |
允许偏差(mm) |
检查数量 |
检查方法 |
||
|
范围 |
点数 |
|||||
|
1 |
槽底高程 |
土方 |
±20 |
两井之间 |
3 |
用水准仪测量 |
|
石方 |
+20、-200 |
|||||
|
2 |
槽底中线每侧宽度 |
不小于规定 |
两井之间 |
6 |
挂中线用钢尺量测,每侧计3点 |
|
|
3 |
沟槽边坡 |
不陡于规定 |
两井之间 |
6 |
用坡度尺量测,每侧计3点 |
②、沟槽支护应符合现行国家标准《建筑地基基础工程施工质量验收规范》GB 50202的相关规定,对于撑板、钢板桩支撑还应符合下列规定:
主控项目:
㈠支撑方式、支撑材料符合设计要求;
检查方法:观察,检查施工方案。
㈡支护结构强度、刚度、稳定性符合设计要求;
检查方法:观察,检查施工方案、施工记录。
一般项目:
㈢横撑不得妨碍下管和稳管;
检查方法:观察。
㈣支撑构件安装应牢固、安全可靠,位置正确;
检查方法:观察。
㈤支撑后,沟槽中心线每侧的净宽不应小于施工方案设计要求;
检查方法:观察,用钢尺量测。
㈥钢板桩的轴线位移不得大于50mm;垂直度不得大于1.5%;
检查方法:观察,用小线、垂球量测。
第四节 土方开挖施工
一、开挖要求
(未说明按《建筑施工土石方工程安全技术规范》JGJ180-2009要求执行)
1)基坑土方开挖应分层进行,每一层土方开挖应在其上部的支护体系能够满足设计要求后进行。
2)坑内土方退土应分层、分段、分块、对称、平衡、限时的方法确定开挖顺序,分层高度不宜大于1.0m,基坑开挖过程中应防止碰撞支护结构、工程桩或扰动原状土。分段开挖长度约为20m,以确保开挖过程中土体自身的稳定,同时避免造成已施工的支护结构位移。支护结构砼强度达到设计强度70%后方可进行下一道土方开挖。
3)本工程应采用信息化施工,土方开挖施工单位依据监测信息对土方开挖方案的调整。施工中发现异常情况应及时通知设计单位及其他相关单位。
4)邻近基础边缘的承台超深部分土方开挖时,应严格间隔开挖,并浇筑承台混凝土后,才可以继续进行相邻承台的开挖。
5)土方开挖过程中应对整个支护体系的变形、内力情况进行监测,一旦发现异常情况立即停止开挖,查明原因并采取有效措施后方可继续开挖。
6)土方开挖到设计标高后,应立即浇捣素砼垫层,并进行底板的施工,防止基坑底土体暴露时间过长。
7)土方开挖过程中及地下室施工期间基坑周围不应堆土方或建筑材料,严禁超载;土方开挖过程中,严禁施工机械碰撞、碾压垂直支撑、支护结构及主体结构工程桩。
8)管廊工程防水施工完成后应立即进行基坑周边土方回填,土方回填应满足土建图纸设计要求。
二、土方开挖过程
1、土方开挖降水措施
根据地质资料所反映的地质情况结合多年的施工经验,本工程主要采用挖土过程的自降水方案。在场地内两侧设置排水沟,用潜水泵把水抽出后才继续进行下一节的挖土。在挖土过程中,要随时注意周围的渗水情况,采用明沟及集水坑排水,及时把水抽出。
2、施工顺序:支护桩施工—>截水沟施工—>土方分层开挖—>喷射砼施工—>土方分层开挖 –>排泄水系统的施工。
3、开挖由专人指挥,采取分层分段开挖,结合冠梁位置及开挖总深度进行控制。每层开挖深度不超过2.5m,每段开挖长度小于25m,且应间隔开挖。承台处采用人工开挖。
4、本工程开挖尺寸要求精确,故开挖前首先根据测定的坐标控制网初步放线,并在边坡边加钉坐标控制木桩,依次放出开挖边线。
5、支护施工应与土方开挖密切配合,以达在保证安全的基础上充分利用场地,降低造价,缩短工期的目的。每层土方开挖先挖、排边坡两侧的土方,首先为支护结构施工创造有利条件,然后进行边坡中间部位的土方施工,此时土方、支护可同时施工互不影响。待支护完毕后,再补挖该部分预留土方,使整个工程平稳有序的进行,以达到土方与支护施工的最佳配合状态。
6、在第一层挖完后按土方开挖图标示的位置修筑15%的坡道,以便挖土及运输车辆进出。土方开挖运输车辆都只能在场内行走,严禁在边坡上基平台处行走。土方开挖到边坡底后,立即施工垫层,并且利用垫层作为水平运输通道。
8、修整坡面:开挖后及时对坡面进行覆盖,并采用混凝土喷面,坡面进行修整,坡面平整允许偏差±20mm。
三、土方开挖注意事项
1、机械挖土应避免对工程桩破坏、挖土机械不得直接在工程桩、顶部四周;挖土机械严禁碰撞工程桩。挖至坑底时应预留不少于300mm厚采用人工开挖,承台应采用人工跳挖,禁止采用机械连续开挖,在开挖后应迅速封底,防止水浸和暴露。基底封底后应在24h内砌筑砖模并回填肥槽部分。
2、边坡底板以上采用机械开挖,应采用分层分段均衡开挖,严格做到开挖一层支护一层,上层未支护完,不得开挖下一层。
3、边坡周围应进行防水,排水处理,防止地面水渗入边坡周边土体中。
4、土方开挖过程中,应注意气候,降雨等预报,大雨天气不得开挖,按照施工方案要求,采取相应的措施。
5、边坡开挖前,应熟悉边坡支护图纸,按照设计要求施工,施工前应查明边坡周边的地下管线管网。
6、在施工过程中,有专人作检查观测,发现异常应查明原因,采取相应的防护措施。
7、采用机械开挖时,应采取措施保护边坡侧壁不受破坏,并做好机械上下边坡坡道的支护。
8、挖出的土方应及时当班运走,当班不能运走时应停止开挖,严禁将土方堆放于边坡附近15米范围内,边坡四周附加荷载应小于10Kpa,施工车辆荷载允许值为30Kpa。
四、土方开挖工程的质量检验标准
|
项 |
序 号 |
项 目 |
允许偏差或允许值 |
检验 方法 |
|||
|
边坡 基槽 |
挖方场地平整 |
管沟 |
|||||
|
人工 |
机械 |
||||||
|
主控 项目 |
1 |
标高 |
-50 |
±30 |
±50 |
-50 |
水准仪 |
|
2 |
长度、宽度 |
+200 -50 |
+300 -100 |
+500 -150 |
+100 |
经纬仪,用钢尺量 |
|
|
3 |
边坡 |
设计要求 |
观察或用坡度尺检查 |
||||
|
一般 项目 |
1 |
表面 平整度 |
20 |
20 |
50 |
20 |
用2m靠尺或楔形尺检查 |
|
2 |
基底土性 |
设计要求 |
观察或土样分析 |
五、土方回填
材料要求:
碎石类土、砂土(使用细、粉砂时应取得设计单位同意)和爆破石渣,可用作表层以下填料。其最大粒径不得超过每层铺填厚度的2/3或3/4(使用振动辗压时),含水率应符合规定。粘性土应检验其含水率,必须达到设计及施工规范规定要求方可使用。
主要机具
装运土方机械有:铲土机、自卸汽车、推土机、铲运机、翻半斗车等。
辗压机械有:手辗、羊足辗和振动辗等。
第五节 挂网喷射砼施工
1.放坡及桩间土支护的喷射混凝土墙面厚80mm,砼强度为C20,水泥与砂石的重量比取1:4.5,砂率取55%,水灰取0.45;分层分段铺设钢筋网∅6.5@300*300mm,钢筋网的搭接采用绑扎,左右段之间、上下段之间的搭接长度应大于300mm。边壁上的钢筋网网顶应延伸至地表面,水平包顶长度分别为0.5m.并每隔2.5米布置一根∅12插筋,插筋长度1.0m。
2、 喷射混凝土面层施工应符合下列规定:
(1) 细骨料宜选用中粗砂,含泥量应小于3%;
(2) 粗骨料宜选用粒径不大于20mm的级配砾石;
(3)水泥与砂石的重量比宜取1:4~1:4.5,砂率宜取45%~55%,水灰比宜取0.4~0.45;
(4)使用速凝剂等外掺剂时,应做外加剂与水泥的相容性试验及水泥净浆凝结试验,并应通过试验确定外掺剂掺量及掺入方法;
(5)喷射作业应分段依次进行,同一分段内喷射顺序应自下而上均匀喷射,一次喷射厚度宜为30mm;
(6)喷射混凝土时,喷头与支护桩立面应保持垂直,其距离宜为0.6m~1.0m;
(7)喷射混凝土终凝2h后,应喷水养护,养护时间根据气温确定,宜为3~7d。喷面材料28天龄期无侧限抗压强度不小于20MPa;
(8)钢筋网与坡面的间隙应大于20mm,钢筋网上下搭接长度不应小于300mm;
第六节 质量检验
1 面层喷射混凝土质量检测应符合下列规定:
1)面层喷射、桩身、支撑梁混凝土应进行现场试块强度试验,每500m2喷射混凝土面积试验数量不应少于一组,每组试块不应少于3个;喷射面层应进行厚度检测,全部检测点的面层厚度平均值不应小于厚度设计值,最小厚度不应小于厚度设计值的80%;
2 混凝土灌注桩的质量检测应符合下列规定:
1)应采用低应变动测法检测桩身完整性,检测桩数不宜少于总桩数的20%,且不得少于5根;
2)质量检验应在桩身混凝土强度达到设计强度后进行。
第七节 边坡支护施工监测
本工程监测工作应委托有资质单位进行,且应制定严密、合理、可行的监测方案。提供详细各监测项目测点布置图及各主要项目监测仪器与方法,监测方案须得到业主单位的认可,监测得到的数据必须及时提供给设计单位,设计和总包单位根据监测数据及时调整施工进度和施工工况,以保证本基坑工程的信息化施工。
第二节 安全保证措施
一、安全管理措施
1、安全生产责任制:建立以项目经理为首的项目部安全防火监察执法小组,进行巡回检查和抽查;各施工班组设兼职安全员跟踪普查,对查出的违章及安全隐患要定人、定时、定措施整改。落实各级人员的安全生产责任制,责权明确,严格管理、奖罚分明。
2、建立完善有效的安全管理系统,切实行使安全监察职能。并安排有安全工作经历且熟悉施工工作的同志专门负责安全。各班组要设兼职安全监督检查员,使安全工作随时有人抓、有人管,处于受控状态。
3、坚持“安全第一,预防为主”的方针,把安全当作第一位工作来抓,下大力气增强全员安全意识,落实安全生产责任制,严格执行《安规》以及安全检查和安全奖罚制度,坚决实行安全生产否决权。调查处理事故坚持“三不放过”原则。
4、认真落实施工现场安全防护设施的投入,确保其功能正常发挥,并为现场职工(包括监理人员)提供必要的安全防护和劳动保护用品。加强作业人员的自我保护,使安全生产建立在科学的管理、先进的技术、可靠的安全技术措施及防护设施的基础上。
5、编制施工组织设计或作业设计时,要编制安全技术措施;作业前要认真进行安全技术措施交底并作好记录。大型机械设备应挂牌专人操作,专人指挥,并经常维护保养。
6、严格遵守安全技术操作规程及交通规则。深坑作业、夜间施工和临时占道作业必须具备相应的安全防护措施和警示标志(如安全标志牌及警示牌、安全带、充足的照明、交通疏散提示牌、防护栏、防护棚(板)、限高标志牌等)。加强临边口及施工区的安全防护检查,确保人车安全。严禁违章指挥和野蛮施工,严肃安全纪律和劳保纪律。
7、编制《临时用电施工组织设计》,架设三相五线制电缆线,实行三级漏电保护和“一机一闸一漏电保护”,开关箱要加锁并有防雨措施。
8、风力在五级以上时,严禁高空作业和吊装作业,高空中的对象、施工用料等要采取临时固定措施。台风前,要检查临时用电设施,该断电的要断电;大临及防护设施要采取相应的加固措施。
9、搭设大临设施时要设消防栓和消防水(砂)池并贮满水(砂),按规定挂设灭火器,经验收合格后方可启用。加强用电、明火及易燃易爆物品的使用、防护检查。
10、本公司将建立、健全各级各部门的安全主产责任制,责任落实到人,各项经济承包有明确的安全指标和包括奖惩办法在内的保证措施。
11、新进工地工人需进行公司、项目部和班组的三级教育。工人变换工种,进行新工种的安全技术教育。工人应掌握本工种操作技能,熟悉本工种安全技术操作规程。认真建立“职工劳动保护记录卡”并及时做好记录。
(1)特种作业持证上岗:特种作业人员应经培训考试合格持证上岗,操作证必须按期复审,不得超期使用,名册齐全。
(2)安全检查:作好建立定期安全检查制度。有时间、有要求、明确重点部位、危险岗位。安全检查记录查出的隐患应及时整改,做到定人、定时及定措施。
(3)班组“三上岗、一讲评”活动:班组在班前须进行上岗交底、上岗检查,上岗记录的“三上岗”和每周一次的“一讲评”安全活动。对班组的安全活动,设有考核措施。
(4)遵章守纪、佩戴标记。严禁违章指挥、违章作业。各类人员应戴不同颜色的标记。
(5)工伤事故处理:建立事故档案,按调查分析规则、规定进行处理报告,本着“三不放过”的原则进行处理,查明原因,教育大家,并落实
整改措施。重大事故必须及时地向上级部门及地方有关部门汇报,积极配合和接受有关部门的调查和处理。
(6)安全标牌:在施工工地设安全生产宣传牌。在主要施工部位、作业点、危险区、主要信道口都挂上安全宣传标语或安全警告牌。
三、其他应注意事项
1、险情发生后应立即组织人员疏散,然后组织抢险。
2、降水若引起周围环境的明显影响,应立即停止施工,并采用措施。
四、安全责任人员见下表
|
组别职能 |
责任人 |
联系电话 |
|
指 挥 |
||
|
值班联络组 |
||
|
抢救组 |
||
|
疏散组 |
||
|
救护组 |
第三节 防火安全措施
1、工地建立防火责任制,职责明确。
2、按规定建立义务消防队,派专人负责,制定教育训练计划和管理办法。
3、对重点部位建立有关规定,派专人管理,落实责任。按要求设置警告标志,配置相应的消防器材。
4、建立动用明火审批制,按规定划分级别,明确审批手续,并有监护措施。
5、焊割作业应严格执行“十不烧”使用规定。
第四节 防台风安全措施
一、安全措施
1、成立以公司总经理和项目部项目经理为首的两级应急救援领导小组,项目部服从公司领导,在遇到台风等紧急情况启动该领导小组。
2、每天及时查询当地天气预报和防汛通知,一旦有台风警报,应停止施工,严禁不听招呼野蛮强行作业。
3、做好现场临时设施加固措施,从各活动房的四角成45度角加拉几条铁线,与打入地里的直径50长1800mm锚管相连,使活动房更加牢固,对于有危险的建筑构筑物,应及时加固或拆出。
4、做好现场的排水措施,保证台风来后带来暴雨不对桩孔浸泡。对施工现场的水、电全部切断,防止可能的伤害。
5、做好各种机具保护措施,各种电机具应做好防雷接地,台风到来前应提前断电。
6、做好通讯联系,现场电话等通讯录必须保持24h开通,一旦有事情发生,必须保证找到相关人员。
7、配备相应的急救小分队,小分队必须是素质好,身体好且经验丰富的人员组成,一旦发生事故,小分队应第一时间感到现场进行处理,力争将事故降到最小的损失。做好易潮等物品的防水或转移工作,减少财产损失。
8、配备应急灯、雨衣、雨鞋,各级领导亲自值班安排人员24小时轮流值班,发现险情马上汇报。
9、如有伤亡事故,应尽快向上级汇报,并紧急送往龙岩市第二医院冶疗。
10、做好灾后的重建工作,尽快组织人员投入生产中去。做好灾后统计工作,并向上级汇报受灾情况。做好灾后汇总工作,为以后的抗灾工作积累经验。
第五节 夜间施工安全技术措施
一、夜间施工照明
夜间作业要有足够的照明设备,在主要位置设置照明灯,探照灯尽量选择即满足照明要求又不刺眼的新型灯具或采取措施,使夜间照明只照射施工区域而不影响周围环境。直接用于操作的照明灯采用36V低压防爆工作灯。
二、夜间噪音控制
施工现场提倡文明施工,建立健全控制人为噪声的管理制度,尽量减少人为的在声喧哗,增强全体施工人员防噪声扰民的自觉意识。对噪音污染进行严格的监控。采用低噪音设备,对噪音大的机械设备采取封闭、限时使用等措施,最大限度的降低噪音污染。
三、夜间施工质量控制
加强夜间施工巡检力度,管理人员轮流值班,不因夜间施工而放松质量,对不符要求的坚决返工重做,确保工程质量。
四、夜间施工安全
在夜间施工质量控制的同时,加强安全管理,坚持进行班前安全教育,对工人不搞疲倦战术,合理安排,劳逸结合。
第六节 土方开挖安全技术措施
一、土方开挖安全措施
1、在工程桩密集的区域,应专人指挥挖掘机的行走路线,及时根据现场情况调整开挖顺序和行走路线,避免挖掘机碾压工程桩;
2、土方开挖应采用分层开挖,严禁超挖;
3、边坡周围应进行防水,排水处理,防止地面水渗入边坡周边土体中;
4、边坡开挖前,应熟悉边坡支护图纸,按照设计要求施工,施工前应查明边坡周边的地下管线管网;
5、开挖过程中应采取措施保护边坡侧壁不受破坏,并做好机械上下边坡坡道的支护;
6、挖出的土方应及时当班运走,当班不能运走时应停止开挖,严禁将土方堆放于边坡附近15米范围内,边坡四周附加荷载应小于10Kpa,施工车辆荷载允许值为30Kpa。
第七节 基坑截排水安全技术措施
一、降水管井
1.排水设备选用应满足排水量的要求。
2.由于基坑排水量较大,故管井施工及疏干排水工作必须提前进行,且应保持连续供电抽水。发现停电时,应及时启用备用电源,保持正常降水。
3.基坑降水周期按土建施工图要求进行。
4.如场区地质情况意外变化,应考虑变更基坑降水方案。
5.在实际降水施工前必须做好现场抽水试验,取得精确的水文参数,并修正基坑降水方案。
6.降水井的井深应圆正、竖直。降水井的井深与设计井深偏差宜小于50cm。下置井管应直立于井中心,其倾斜度应不大于1度。
7.虑料形状宜圆形、亚圆形,不应用棱角状石渣料和风化料,严禁用粘土岩,泥灰岩等软质岩石。并保证不均匀系数小于2小于2。
8.管井安装后应进行洗井,可用空压机自上而下洗至水清、井底不存在泥沙为止。洗井后安装水泵并进行单井试抽,试抽水量一般大于设计水量。并做好压力、水位、抽水量的记录。核查抽水量及水位下降值是否与设计相符,若不相符应及时调整降水设计方案。
9.降水井施工后应进行一次群井抽水试验,以验证设计井数、井位是否满足地下室施工需要.如不能满足,应对井数及井位进行调整。
10.降水过程中,应定期取样测试含砂量,保证含砂量不大于0.05%。
11.降水井需进行保护,开挖基坑时不得受损害坏,井中不得掉入杂物,以免影响降水效果。
12.土方开挖进程中,挖土机严禁碰撞井身;
13.单口降水井的排水宜采用镀锌管,并应安装止回阀。局部可采用高压软管连接,同时应作好坑内排水管的支撑工作,支撑应牢固可靠。沿基坑周边应布设排水集水总管,汇集各降水井抽出的的地下水,并由总管排入市政管道,排水总管可采用大口径钢管,塑料管或排水沟等,并保证其流量满足基坑总涌水量的要求。降水井的电缆可沿排水管网的方向布设,并与配电箱连接,配电箱应设有三相五线漏电断路器,应在0.2秒内自动断电,漏电动作电流不超过30mA电路均应有接零或接地装置,确保电路安全。
14.降水期间应对抽水设备和运行状况进行维护检查,每天检查不应少于3次,发现问题及时处理;
15.降水与排水施工质量应符合规范(GB50202-2002)第7.8.6条的要求。
16.地下室底板施工后应依据现场情况适当减少降水深度;上部结构设计单位建议:待四层楼板施工结束方可停止降水。
二、基坑集水井、排水沟
集水明井沿基坑底部周边进行布置,基坑底对角挖600×600(深度应根据实际施工状况适当加深)的集水井,用污水泵抽取集水坑中地下水排入坡顶截水沟并引向小区雨水管道。
基坑坡顶采用挖沟喷射混凝土截排水沟。基坑底四周采用300×300排水沟,延伸至基坑四周导流到集水井;场地中截排水沟应及时清除淤积,保持水流通畅。由于基坑面积较大,施工时结合底板后浇带设置盲沟或盲管,加强基坑排水,防止基坑大面积积水。
三、排水管理
1、如施工过程中遇排水量>300t/d,或暴雨天时,需派专人进行抽水。
第八节 边坡顶部安全防护措施
1、本边坡施工必须进行临边防护且须采用密目式安全网做封闭式防护。
2、防护栏杆采用φ45厚3.5mm钢管、扣件搭设,由上、中、下三道横杆及栏杆柱组成,上杆离地高度为1.2米,下杆离地高度为0.5米,栏杆柱打入地面0.7m,钢管离边坡边0.5m,栏杆柱间距不大于2m,防护栏杆需涂上红白相间的醒目警示色,栏杆外侧自上而下加挂密目安全网进行封闭。边坡边1m以内不得堆土、堆料、停置机具。
3、临边防护栏杆离边坡边口的距离不得小于50cm。
4、基础施工阶段施工人员上下设置专用通道。专用通道采用钢管、扣件搭设,通道兼作运料,宽度不小于1.5m,坡度以1:6(高:长)为宜。搭设通道的立杆、纵向水平杆间距为1.5m,横向水平杆间距为1m。斜坡坡道的脚手板应钉防滑条,防滑条厚度30mm,间距不得大于300mm。之字坡道的转弯处应搭设平台,平台宽度不得小于1.5m,平台应绑剪刀撑。坡道及平台必须绑两道护身栏杆和180mm高度的挡脚板。
第六章 确保安全应急预案
第一节 防台风、暴雨应急预案
一、应急准备
1、项目部根据实际情况配备足够的防汛、消防器材,并将标明防汛、消防器材布置点、安全通道的区域平面图张贴在显眼位置。
2、项目部建立相应的防台风、暴雨领导班子和防台风、暴雨职能班组并进行相应的培训。
3、项目部每月检查一次,确保防汛、消防器材的完好性,并进行合理的维护保养。
4、台风易发季节,联络组注意收听天气预报,如有台风、暴雨来临,要发布紧急通知,六级以上台风要停止施工,八级以上进入紧急防台风、暴雨准备。
5、台风、暴雨来临之前,防台风、暴雨领导班子和防台风、暴雨职能班组要做好防台风、暴雨准备:现场容易扬尘的物质要遮盖,易被风吹走的物质要收拢固定;检查水体排放管道的畅通,清除易堵塞物;周边环境杂物要清除;活动房、机械设备防护棚要加固;施工现场电源要切断,备用照明设备要准备好。
6、项目部所在区域要保持安全通道的畅通。办公室门窗要关闭好。各级防台风、暴雨领导班子和防台风、暴雨职能班组通讯要畅通。
二、应急响应
1、因台风引发火灾,防台风、暴雨抢救组立即组织扑救并报告领导小组启动防火紧急预案。
2、因台风引发倒塌事故,如有人员被困,疏散组根据现场情况确定疏散、逃生通道,组织逃生疏散,并负责维持次序和清点人数。
如有人员伤害,救护小组应立即组织抢救,并报告领导小组后启动意外伤害急救预案。如果暴雨造成水体排放管道的堵塞或环境污染,环保组应立即组织疏通和控制。如有物质需抢救,损管组应立即组织物质抢救,控制损失。
3、防台风、暴雨领导小组要负责现场的指挥、救护、通讯、车辆的使用调度工作。
第二节 触电应急预案
一、职责
1、由 等成立应急小组。
2、现场第一发现事故、事件人员负责切断电源并通知 。
3、 负责组织安排人员抢救伤员。
4、 (应急小组成员)负责与医院联系。
二、应急措施
1、基坑开挖及支护过程中应准备砂袋、木桩、钢管等抢险用物资备用。
2、在现场条件充许的情况下尽量分区分段施工;施工过程中应始终保持各区至少两台挖土机在场。
3、施工过程中应有专人对基坑支护体系及周边道路、建筑物等进行巡查,如发现异常及时通知相关单位处理。
4、基坑开挖过程中,若出现流砂、管涌等现象应及时回填,并查找原因,采取针对性的地下水截水(设置止水帷幕)或降排水(设置降水井、排水沟等)措施。应防止基坑坡顶及坡底存在常流水,雨季应准备大功率抽水设备,防止坑内积水。
5、支护结构及基坑周边如发生超过预警值变形应及时采取坡顶卸载、反压坡脚,增加内支撑或锚索等措施确保基坑支护结构的安全。
6、基坑土方开挖过程中应控制地下水位标高,不得使地下水位降深过大,若周边沉降值超限可采用补打回灌井等方法控制沉降值。
第三节 边坡塌方应急预案
一、职责
1、由 等成立应急小组。
2、负责组织安排人员抢救伤员。
3、负责组织人员进行塌方等施救加固措施。
4、负责现场的调度。
二、应急措施
1、对人员的抢救
(1)立即组织挖掘被掩埋伤员,使其及时脱离危险区。
(2)仔细清除伤员口、鼻内泥沙、凝血块、呕吐物等,对昏迷伤员将舌头拉出以防窒息。
(3)尽可能进行简易的包扎、止血或简易固定骨折。
(4)有呼吸、心跳停止情况的伤员予以应立即进行呼吸心脏复苏。
(5)尽快立即与120急救中心取得联系,电话中应至少详细说明事故地点、严重程度,并派人到路口接应。
2、对边坡坍塌的施救
(1)塌方施救措施:
a、立即观察、分析现场情况,采取如加强排水、降水等措施;
b、立即加强支护如加桩板等,对边坡薄弱环节进行加固处理;
c、如塌方由坑边弃土、堆料或其他机械设备作用所致,则应迅速运走弃土,材料或机械设备;
d、减缓边坡坡度。
(2)滑坡施救措施:
a、立即观察、分析现场情况,采取排水、降水等措施,特别注意要有效地降低滑坡处周围地下水位;
b、加强支挡措施,如增加支撑护、打桩等;
c、迅速为滑坡体减重,如削去部分坡体,运走堆置的土方、材料或设备;
d、加强护坡措施,减缓坡度,注意观察滑坡处临近边坡。
第四节 火灾应急预案
一、职责
1、由项 等成立应急小组。
2、火灾发生现场人员应立即通知应急小组成员。
3、项目部 组织人员进行灭火。
4、 负责医院、公安、消防部门的联络。
二、应急措施
1、火灾发生现场人员应先用湿毛巾捂住口鼻抢救被火围困人员。
2、把被浓烟窒息昏迷者背到空气新鲜畅通处,托起患者的下颌,使病人的头极度后仰,猛压病人上腹部来畅通气道,有必要时,抢救者用手捏闭病人的鼻孔,然后吸足气进行口对口人工呼吸。
3、黄均松拨打急救电话120和火警电话119,详细说明事故地点、事故程度及本部门的联系电话,并派人到路口接应。
4、黄新怡组织人员进行灭火扑救:
(1)冲水冷却法,即将水直接喷射到燃烧物上,以熄灭火焰或将水喷到附近未燃烧的可燃物上,使可燃物免受火焰热力的威肋,避免燃烧;
(2)隔绝空气法即用干粉灭火器或湿棉被等难燃物覆盖,在燃烧物表面,隔绝空气,以将火熄灭;
(3)防止蔓延法,即将火焰附近的易燃物和可燃物从燃烧区转移后,防止正在燃烧的物品飞散,以阻止燃烧蔓延。
5、揭东华负责现场的物资、车辆的调度。
第五节 安全预案责任人员表
安全预案责任人员表
|
组别职能 |
责任人 |
联系电话 |
|
指 挥 |
||
|
值班联络组 |
||
|
抢救组 |
||
|
疏散组 |
第六节 应急预案物资配备表
应急物资配备见下表
|
应急预案物资 |
数量 |
|
应急灯 |
10盏 |
|
雨鞋 |
40双 |
|
雨衣 |
20件 |
|
绝缘鞋 |
10双 |
|
砂袋 |
500袋 |
|
Φ8钢丝绳 |
200m |
|
软梯 |
1个 |
|
担架床 |
2张 |
|
药箱 |
1个 |
|
安全带 |
5条 |
|
绝缘手套 |
20副 |
|
Φ100水泵 |
5台 |
|
安全帽 |
50顶 |
|
防护网 |
500㎡ |
第七章 施工进度计划安排
本着科学性、合理性、积极性的原则组织生产。通过对各分部分项工程量的计算,根据劳动定额,计算各关键工序所需要的工作人数和工作时间,在施工过程中,把工期、劳动力和资金使用进行优化。工作面进行合理的分区,组织有效的流水作业,最终达到预期工期。工期安排详见《施工进度计划横道图》。
第八章 劳动力计划表
劳动力计划表
|
序 号 |
工 种 |
人 数 |
备 注 |
|
1 |
测量人员 |
2 |
负责边坡支护测量工作 |
|
2 |
钢板桩施工人员 |
5 |
负责钢板桩施工 |
|
3 |
钢管支撑人员 |
5 |
负责钢管支撑工作 |
|
2 |
冲(钻)人员 |
4 |
负责冲(钻)灌注桩施工 |
|
3 |
起重工 |
1 |
机械设备的场内运输及就位 |
|
4 |
钢筋工 |
4 |
钢筋制作、钢筋笼、护壁、压顶梁及喷锚网钢筋制作安装 |
|
5 |
砼工 |
5 |
喷锚砼及压顶梁砼的施工 |
|
6 |
喷锚工 |
4 |
喷锚支护施工 |
|
7 |
土方工 |
6 |
土方开挖 |
|
8 |
司机 |
3 |
负责机械进场、材料运输等 |
|
9 |
模板工 |
6 |
孔桩护壁、压顶梁的模板安装 |
|
10 |
电工 |
1 |
施工临设用电 |
|
11 |
电焊工 |
1 |
钢筋及钢管的焊接 |
|
12 |
泥水工 |
6 |
负责泥水施工 |
|
13 |
机操工 |
2 |
负责机械操作 |
|
14 |
普工 |
6 |
抽水、辅助施工及文明施工等杂项事务 |
|
15 |
合计 |
61 |
。。。。。。
内容过多,以下略
| 加入2026《市政路桥实战参考》会员 |
| 2025《市政路桥实战参考》会员资料 |

250341. 钢板桩支护专项施工方案word
资料下载方式

点击关注以下5个实用微信公众号
夜雨聆风