书架旋转开合,插件式更新中学图书室 / 衡建筑



成都树德实验中学图书室的改造,面临着典型的老旧校舍更新困境。项目位于一栋建于上世纪七八十年代的老建筑底层,历经修缮与产权变更,原始结构设计不可考。在这个正交网格的空间内,校方希望满足阅读功能之余,还能兼顾会议、多功能教学、教师备课以及展览等复合需求。

© 刘国威
原室内空间 © 衡建筑
© 刘国威
这样的情况下,我们尝试在解决需求的同时,释放出一个具有流动感、互动性与探索乐趣的校园空间。
我们将视线转向了城市中的“口袋公园”。在这样的场域中,大爷大妈钟爱的健身器材往往是散布在整片场地的——它们不需要依附于建筑主体,而是以一种随性、不设限的状态,鼓励人们自发地参与其中。这些关于玩耍与公共交往的意象,启发了我们将图书室塑造成为一个校园“游乐场”。

© 刘国威

© 刘国威

为了实现这种自由互动,设计上也采用了一种“脱开”的策略:在室内直接置入一套完全自承重的插件系统。这些插件有点像是一组放大版的“健身器材”。它们不借力于原始墙体,尽力规避老建筑不可预知的结构风险。通过“旋转”这一行为,进行简单的组合与切换,来满足不同时段的使用需求。

© 刘国威

© 刘国威

“插件”轴测图 © 衡建筑
在入口处的灵活读书区,旋转书架会成为了改变空间状态的动态“机关”。当书架完全打开时,图书室就像一个向四周延展的广场,偏转的组件打破了老建筑原本刻板的正交秩序,带来灵活地漫游体验;而当需要分区使用时,书架又能闭合并切分空间,有效保障两侧功能区的独立性。

© 刘国威

© 刘国威

© 刘国威

© 刘国威
依靠这套系统,达成一个去中心化、自由穿行的流线。空间中没有使用隔墙做物理分割,而是通过地面材料的颜色变化标示区域划分。学生可以像在公园里散步一样在其中穿梭、取阅书籍,原本消极的走廊空间也由此转化为了富有流动性的公共活动场。

© 刘国威

© 刘国威

© 刘国威

在空间环境上,我们远离了过多的表面装饰,让氛围顺应这套轻质建构逻辑自然“生长”。由钢架与木作组合出的一系列构件,即像散落的“健身器材”,也像是类似是报刊亭、公交车站的构筑物。它们是具体的功能,同时,作为大家习以为常的“生活片段”也代表着某种公共精神的集体记忆符号。

© 刘国威

© 刘国威
真实性,也体现在对剖面尺度的控制上。空调设备布置的区域,我们顺势压低吊顶,在局部营造出强烈的包裹感。而大部分空间则裸露梁柱,以达成开阔效果。室内大面积采用木作书架不做装饰。包裹柱子的木饰面控制在一个高度线,不与楼板和梁柱相接,以醒目的黄色钢架作为过渡。“不贴顶”的处理在垂直方向上拉开了清晰的视觉层次,凸显轻质“插件系统”与老建筑主体之间相互独立的真实关系。

© 刘国威

© 刘国威

© 刘国威
建构系统由内向外延展。在保留原有建筑立面结构的前提下,底层边界被最大程度的打开。外设的可开合雨棚,将内部插件骨架的阵列感延续至室外。原本封闭、沉闷的老旧底层,形成一个相对通透、欢迎的界面,也最大限度地将成都珍贵的阳光引入了室内。

© 刘国威

© 刘国威

老旧教育建筑的改造,是当下城市更新中一个细碎却重要的命题。这类项目往往受限于复杂的现实条件与成本预算,妥协于对功能的实现。我们希望有一种嬉闹放松的态度,四两拨千斤的效果我们用一套高度集成的“插件系统”去回应了项目的种种难题。
这是在底线之上,尝试用建筑学的思考为项目带来更丰富的空间体验——在限制中创造一种公共生活的自由,或许正是这类更新项目最朴素的意义所在。

© 刘国威

© 刘国威


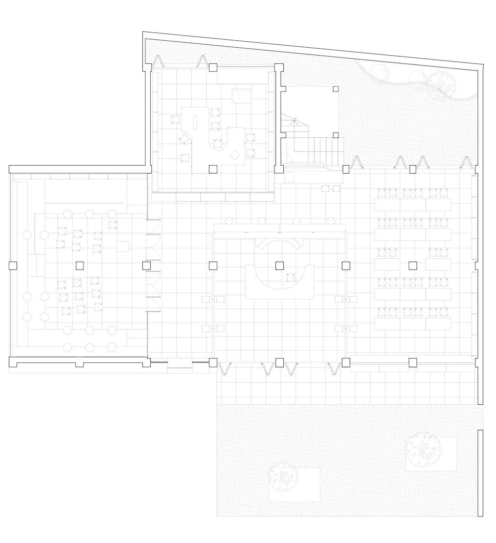
平面图 © 衡建筑

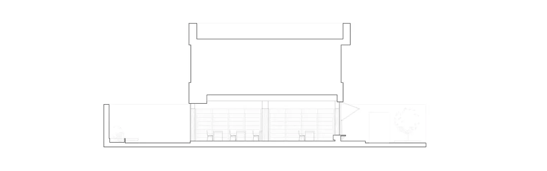
剖面图 © 衡建筑

剖面图 © 衡建筑

剖面图 © 衡建筑

立面图 © 衡建筑

道具轴测图 © 衡建筑

道具轴测图 © 衡建筑

道具轴测图 © 衡建筑

项目名称:成都树德中学东马棚校区图书馆改造
建筑事务所:衡建筑
项目地址:四川省成都市青羊区东马棚街 9 号,中国
项目年份:2025
建筑面积:379 ㎡
主创设计师:周睿哲、杨竣博
设计团队:周睿哲、杨竣博、温必福、廖欣、李鑫儿
施工方:成都天众诚信息科技有限公司
委托方:成都市树德实验中学
摄影师:刘国威
编辑 出木杉
排版 出木杉

*本文内容来自建筑事务所
标题及版式由 ArchDaily 整理
转载与任何形式的引用请联系设计团队









夜雨聆风

